房屋信息
一间寝室套房+书房 at 'Vu'大楼超过 looks 一个安静的庭院,由aspen Ridge 家庭建造.约764 sq.Ft.因为根据建筑商'计划带有sooring 10Ft Ceilt,朱丽叶阳台和超大窗户.约764 sq.Ft.约764 sq.提供伟大生活空间的功能布局。易通唐谷公园道,乔治·布朗学院,加德纳快道,圣詹姆斯公园和圣劳伦斯市场.步入消毒区和金融区。奢华包括:24小时的聚会、活动室、客服等!享受生活方式社区活动时间表。包含一个泊车和一个锁定器。
主要特征
- 朝向: 西

- 睡房: 1+1

- 洗手间: 1

- 车库: 1

- 厨房: 1

重要信息
- 空间: 700-799

- 管理费: $ 640.59

- 地税: $ 3416.02

- C12807388

- Listing contracted with: CITY PLUS REALTY INC.
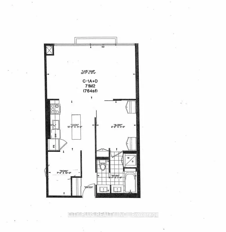
| 房间 | 尺寸(平方米) | 细节描述 | |
|---|---|---|---|
| 客厅 Rm | 3.45x6.27 | , 开放式概念, 壁炉 |
|
| 晚餐室 Rm | 3.45x6.27 | 合并客厅, 复合地板, 大窗 |
|
| 厨房 | 3.18x3.56 | 中心岛, 不锈钢电器 |
|
| Primary B | 2.95x3.56 | , , 半套卫生间 |
|
| 书房 | 2.24x3.12 | 独立房间, 复合地板 |
| 卫生间 | 卫浴件数 | 所在楼层 | |
|---|---|---|---|
| 1间 | 4件套 | 主层 |
房屋简介
房屋位于多伦多市区东部Adelaide St E & Jarvis St交界附近, 这间1房1卫单车库Condo Apt户型朝西向. #S304-112 George St拥有单停车位并带有一个室内储藏空间. 房屋及周边设施包括None等. .Vu South Tower
112 George St是由房地产建筑商Aspen Ridge Homes开发的, 物业年龄16年左右。该公寓大楼大约有24层352个单元。Vu South Tower的设施包括用:健身房,屋顶花园,前台服务,访客停车位,宾客套房,会客厅和AirbnbFriendly。每月物业管理费640.59加元包括用暖气,水和空调. 目前112 George St大约有1间公寓在售0间在出租。学校信息
小学
-
对口学区学校在 3022学校里排名 2677 (分数: 3.7)距离学校11.3公里 (开车大约34分钟)
-
-
-
中学
-
对口学区学校排名: 404/746 (分数: 5.9) 5年平均分: 553/746 (分数: 4.5)距离学校11.3公里 (开车大约34分钟)
-
Bishop Allen Academy (年级: 9-12)
天主教法语沉浸课程学校
排名: 20/746 (分数: 9.0) 5年平均分: 83/746 (分数: 7.7)距离学校2.6公里 (开车大约8分钟) -
Father John Redmond (年级: 9-12)
天主教AP课程学校
排名: 89/746 (分数: 8.0) 5年平均分: 47/746 (分数: 8.0)距离学校2.5公里 (开车大约8分钟)
























