房屋信息
欢迎来到位于多伦多中城中心的两年大的广场公寓这间宽敞的1个卧室+地穴(理想是家用办公室或客房),2个洗手间套房提供700多平方英尺设计良好的生活空间.现代厨房有石英石台面台,陶瓷回放,全尺寸不锈钢电器等特色,包括冰箱,炊具顶,烤箱,内置微波炉,罩风扇,洗碗机等. 9英尺高的天花板和大窗为整个单元提供了丰富的自然光.享受优异的中转通道,有前往公交永宜地铁线和Eglinton跨城轻轨的台阶,目前运营,提供方便的南北和东西接通.靠近商店、餐馆和日常设施包含一个储物柜。
主要特征
- 朝向: 东

- 睡房: 1+1

- 洗手间: 2

- 车库:

- 厨房: 1

重要信息
- 空间: 700-799

- 房龄: 0-5
- 管理费: $ 509.41

- 地税: $ 3129.46

- C12781830

- Listing contracted with: CENTURY 21 MYPRO REALTY
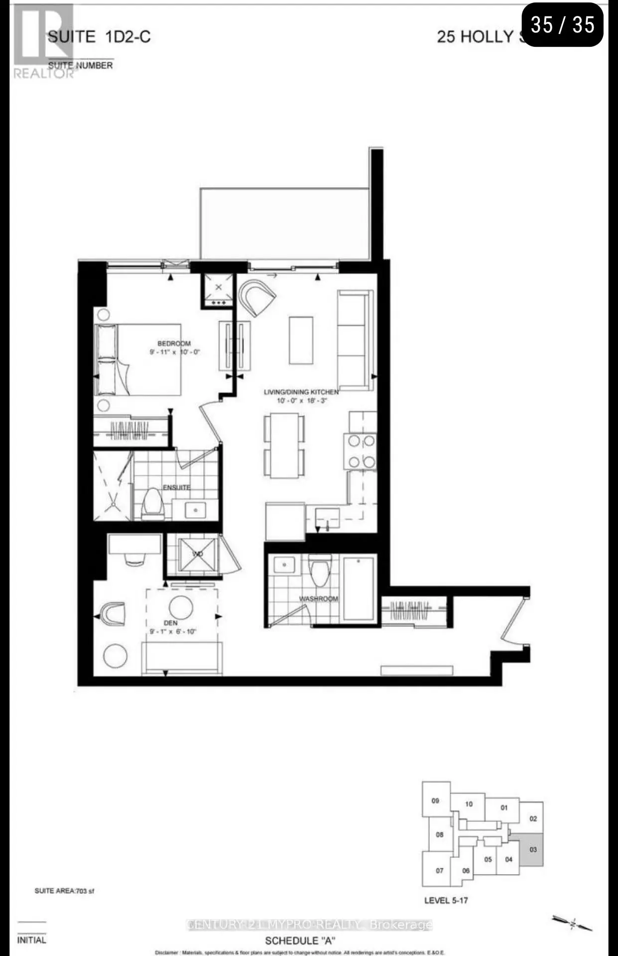
| 房间 | 尺寸(平方米) | 细节描述 | |
|---|---|---|---|
| 客厅 Rm | 5.58x3.05 | 复合地板, 合并餐饮, 走出式阳台 |
|
| 晚餐室 Rm | 5.58x3.05 | 复合地板, 合并厨房 |
|
| 厨房 | 5.58x3.05 | 复合地板, 合并餐饮, 开放式概念 |
|
| Primary B | 3.05x3.01 | 复合地板, 壁橱, 3pcs卫生间套间 |
|
| 书房 | 2.80x2.10 | 复合地板 |
| 卫生间 | 卫浴件数 | 所在楼层 | |
|---|---|---|---|
| 1间 | 4件套 | 主层 |
|
| 1间 | 3件套 | 主层 |
房屋简介
房屋位于Eglinton E & Holly St交界附近, 这间1房2卫车库Condo Apt户型朝东向. #703-25 Holly St带有一个储藏空间. 房屋及周边设施包括CarpetFree和Built-InOven等. .Plaza Midtown
25 Holly St是由房地产建筑商PlazaPure Plaza, also known as Plaza, is one of Toronto's most sophisticated developers, focusing on residential condominiums.
开发的, 物业年龄3年左右。该公寓大楼大约有30层251个单元。Plaza Midtown的设施包括用:前台服务,健身房,会客厅,宾客套房和室外游泳池。目前25 Holly St大约有3间公寓在售8间在出租。 学校信息
小学
-
-
-
-
-
中学
-
对口学区学校排名: 24/746 (分数: 8.9) 5年平均分: 14/746 (分数: 8.8)距离学校0.5公里 (走路大约8分钟)
-
Loretto Abbey (年级: 9-12)
天主教法语沉浸课程学校
排名: 259/746 (分数: 6.8) 5年平均分: 205/746 (分数: 6.9)距离学校4.1公里 (开车大约12分钟) -
Marshall McLuhan (年级: 9-12)
天主教AP课程学校
排名: 291/746 (分数: 6.6) 5年平均分: 222/746 (分数: 6.8)距离学校1.1公里 (走路大约20分钟)

































