房屋信息
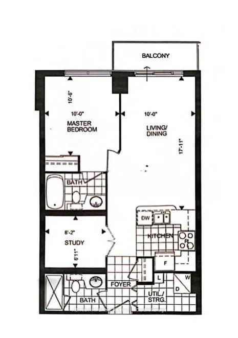
位于Bayview 和 sheppard 的主位置!最佳价值!漂亮和安静的大楼(Handicapped-友善的)拥有近700所.F,非常干净Contition, 1睡房+书房, 2个浴室,现代厨房带有花岗岩顶部/早餐酒吧, Lamint 地板,走出式阳台,书房能作为一个二睡房,主人房睡房带有 4 Pc Ensite,双层封口,步行去湾景村商场,公共图书馆, Banks 和餐馆, 1 分钟步行去湾景地铁站, 1 分钟开车在高速公路401
主要特征
- 朝向: 北

- 睡房: 1+1

- 洗手间: 2

- 车库: 1

- 厨房: 1

重要信息
- 空间: 600-699

- 房龄: 16-30
- 管理费: $ 701.82

- 地税: $ 2389.52

- C12705772

- Listing contracted with: RE/MAX IMPERIAL REALTY INC.
| 卫生间 | 卫浴件数 | 所在楼层 | |
|---|---|---|---|
| 1间 | 4件套 | 主层 |
|
| 1间 | 3件套 | 主层 |
房屋简介
房屋位于北约克东部Bayview Avenue & Sheppard Aven交界附近, 这间1房2卫单车库Condo Apt户型朝北向. #307-19 Barberry Pl拥有单停车位. 房屋及周边设施包括Other等. .The Chelsea
19 Barberry Pl是由房地产建筑商Valfour Developments开发的, 物业年龄22年左右。该公寓大楼大约有8层129个单元。The Chelsea的设施包括用:健身房,前台服务,访客停车位和会客厅。每月物业管理费701.82加元包括用暖气,水和空调. 目前19 Barberry Pl大约有3间公寓在售2间在出租。学校信息
- Crestview 公立小学 (年级: JK-5) 265/3064
- Woodbine 公立初中 (年级: 6-8)
- Georges Vanier 公立中学 (年级: 9-12) 374/739
- St. Gabriel 天主教学校 (年级: JK-8) 2041/3037
- Dallington 公立小学 (年级: JK-5) 359/3064
- Cresthaven 公立小学 (年级: JK-5) 1123/2900
通勤信息
Bayview 地铁站 (0.2公里)Oriole Go 火车站 (1.7公里)




























