房屋信息
经验丰富城市生活著名的2221永。这间精美的1+1卧室,2个完整的浴池住宅夸耀出精致的现代终点,9英尺的天花板,和定制的集成电器,创造了一丝不苟和当代的生活空间.将享受无与伦比的地铁、首选购物、知名餐厅、咖啡馆和文化景点。居民享受世界级的便利设施:一个风景的七楼露台,有室外休息室和烧烤,最先进的健身和瑜伽工作室,优雅的聚会设施,以及24小时的招待所。这是住在该市最理想地址之一的绝好机会
主要特征
- 朝向: 西

- 睡房: 1+1

- 洗手间: 2

- 车库:

- 厨房: 1

重要信息
- 空间: 600-699

- 房龄: 0-5
- 管理费: $ 462.54

- 地税: $ 2722.26

- C12683308

- Listing contracted with: RE/MAX HALLMARK REALTY LTD.
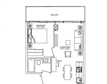
| 房间 | 尺寸(平方米) | 细节描述 | |
|---|---|---|---|
| 客厅 Rm | 2.95x2.44 | 开放式概念, 复合地板, 走出式阳台 |
|
| 晚餐室 Rm | 2.92x3.61 | 开放式概念, 复合地板, 大窗 |
|
| 厨房 | 3.73x2.44 | 智能家电, 复合地板 |
|
| Primary B | 2.92x3.12 | 4pcs卫生间套间, 复合地板 |
|
| 书房 | 2.06x2.27 | 三件套卫生间, 复合地板, 独立房间 |
| 卫生间 | 卫浴件数 | 所在楼层 | |
|---|---|---|---|
| 1间 | 4件套 | 主层 |
|
| 1间 | 3件套 | 主层 |
房屋简介
房屋位于Yonge St and Eglinton Ave交界附近, 这间1房2卫车库Condo Apt户型朝西向. 房屋及周边设施包括None等. 客厅 Rm, 晚餐室 Rm, 厨房, Primary B和 书房在主层.2221 Yonge
2221 Yonge St是由房地产建筑商Tower Hill Development Corporation开发的, 物业年龄7年左右。该公寓大楼大约有58层648个单元。2221 Yonge的设施包括用:健身房,前台服务,桑拿房,会客厅,宾客套房,室内游泳池,商务中心(WIFI)和屋顶花园。目前2221 Yonge St大约有4间公寓在售18间在出租。学校信息
- Eglinton 公立小学 (年级: JK-5) 1764/3064
- Hodgson 公立初中 (年级: 6-8)
- North Toronto 公立高中 (年级: 9-12) 42/739
- St. Monica 天主教学校 (年级: JK-8) 1119/3037
- Glenview 公立初中 (年级: 7-8)
- John Fisher 公立小学 (年级: 0-6)
- Eglinton 公立小学 (年级: JK-5) 1764/3064






































