房屋信息
一种人一种人这个阳光浸透了2个卧室 2个浴室公寓拥有917平方公尺宽敞的室内空间外加一个宽敞的423平方英尺的露台 9'天花板和整个工程硬木。走廊从大厅通向一个开放的办公室-不需要为那些在家工作的人在卧室里工作.厨房特色以欧洲电器,石英石台面台和美丽的陶瓷回放所建造.宽敞而开放的概念家庭大小生活/餐饮室,和两个完整的浴室。超大小的主人卧室后面有洗手间并建造在衣柜组织者-是的,这是国王大小的床旁边的洗手台!而对于真正的一种特质,其他人不能声称:一个423平方英尺的平地。享受你们自己舒适的夏天想象一下在私人院子里接待你的朋友和家人想象一下在天气好的时候在阳台上工作或享受自己厨房里漫长的夏日步子这个公寓真是奢侈的生活!门外有:健身房、瑜伽室、斯堪的纳维亚斯帕与普隆格游泳池、加热石床、休息室、室外露台、派对室、宾客套房和安保。住在极受欢迎的Fairview商场社区. Freshco在隔壁,地铁走出7分钟路程,401号高速公路和404/dVd路程为几分钟. Fairview购物中心在街对面,餐厅,零售,学校,公园,艺术表演中心,图书馆,步行距离也大得多.这个位置是打不赢的!参观这个地区,你会看到它越来越潮流,更多的便利和餐馆总是来-你会想把这个充满活力的社区称为家
主要特征
- 朝向: 西北

- 睡房: 2+1

- 洗手间: 2

- 车库: 1

- 厨房: 1

重要信息
- 空间: 900-999

- 房龄: 6-10
- 管理费: $ 674.69

- 地税: $ 3712.35

- C12675548

- Listing contracted with: CENTURY 21 PERCY FULTON LTD.
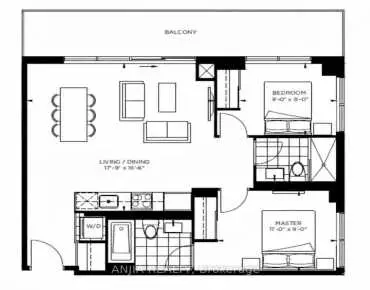
| 房间 | 尺寸(平方米) | 细节描述 | |
|---|---|---|---|
| 客厅 Rm | 4.65x5.87 | 开放式概念, 走出式露台, 硬木地板 |
|
| 晚餐室 Rm | 4.65x5.87 | 开放式概念, , 硬木地板 |
|
| 厨房 | 4.65x5.87 | 开放式概念, 走出式露台, 硬木地板 |
|
| Primary B | 2.89x3.81 | 橱柜架, , 硬木地板 |
|
| 第二间卧室 | 3.05x2.82 | 壁橱, , 硬木地板 |
|
| Media Rm | 2.74x2.36 | 开放式概念, 硬木地板 |
| 卫生间 | 卫浴件数 | 所在楼层 | |
|---|---|---|---|
| 2间 | 5件套 | 主层 |
房屋简介
房屋位于北约克东部DON MILLS and SHEPPARD交界附近, 这间2房2卫单车库Condo Apt户型朝西北向. #308-56 Forest Manor Rd拥有单停车位并带有一个室内储藏空间. 房屋及周边设施包括CountertopRange,CarpetFree和Built-InOven等. 客厅 Rm, 晚餐室 Rm, 厨房, Primary B, 第二间卧室和 Media Rm在主层.Emerald City Park Club
56 Forest Manor Rd是由房地产建筑商Elad Canada开发的, 物业年龄8年左右。该公寓大楼大约有33层344个单元。Emerald City Park Club的设施包括用:健身房,前台服务,会客厅,宾客套房,访客停车位和室内游泳池。每月物业管理费674.69加元包括用暖气和空调. 目前56 Forest Manor Rd大约有4间公寓在售15间在出租。学校信息
- Forest Manor 公立小学 (年级: JK-5) 404/3064
- Woodbine 公立初中 (年级: 6-8)
- A Y Jackson 公立中学 (年级: 9-12) 52/739
- George S Henry Academy (年级: 9-12) 690/739
- St. Timothy 天主教学校 (年级: JK-8) 1409/3037
- Rene Gordon Health and Wellness Academy (年级: JK-5)
- Dallington 公立小学 (年级: JK-5) 359/3064
通勤信息
Don Mills 地铁站 (0.3公里)Oriole Go 火车站 (1.8公里)
















































