房屋信息
1720 Eglinton ave东向的这个明亮而宽敞的角落套房提供了舒适、简洁和生活方式的理想组合不牺牲空间位于三楼,大约1000平方英尺的布局在智能分层的平面图上有两间卧室和两间浴室,为来宾提供隐私或一个安静的家庭办公室,再加上舒适的东北暴露,使家里充满了温和的晨光.开放的观念生活和餐饮区是容易移动的,并且是为日常舒适而设计的,无论你是在娱乐,放风,还是只是在家里享受平静的一天.最重要的是,公寓费包括所有水电费、水费、水费、空调费、建筑保险费、停车费、共同费用、真正的心灵安定费和可预测的每月费用。居民享有一整套便利设施,包括现场网球场、健身设施、户外游泳池、客房和警卫服务。随着附近的高尔夫球场,医院和医疗服务的接近,以及连接主要中转路线的优异,你所需要的一切就在你的门前.这是无忧无虑的公寓,生活得非常温和、安全,非常适合一种精致、低保的生活方式
主要特征
- 朝向: 东北

- 睡房: 2

- 洗手间: 2

- 车库: 1

- 厨房: 1

重要信息
- 空间: 900-999

- 管理费: $ 1320.23

- 地税: $ 2435.70

- C12647226

- Listing contracted with: RE/MAX WEALTH BUILDERS REAL ESTATE
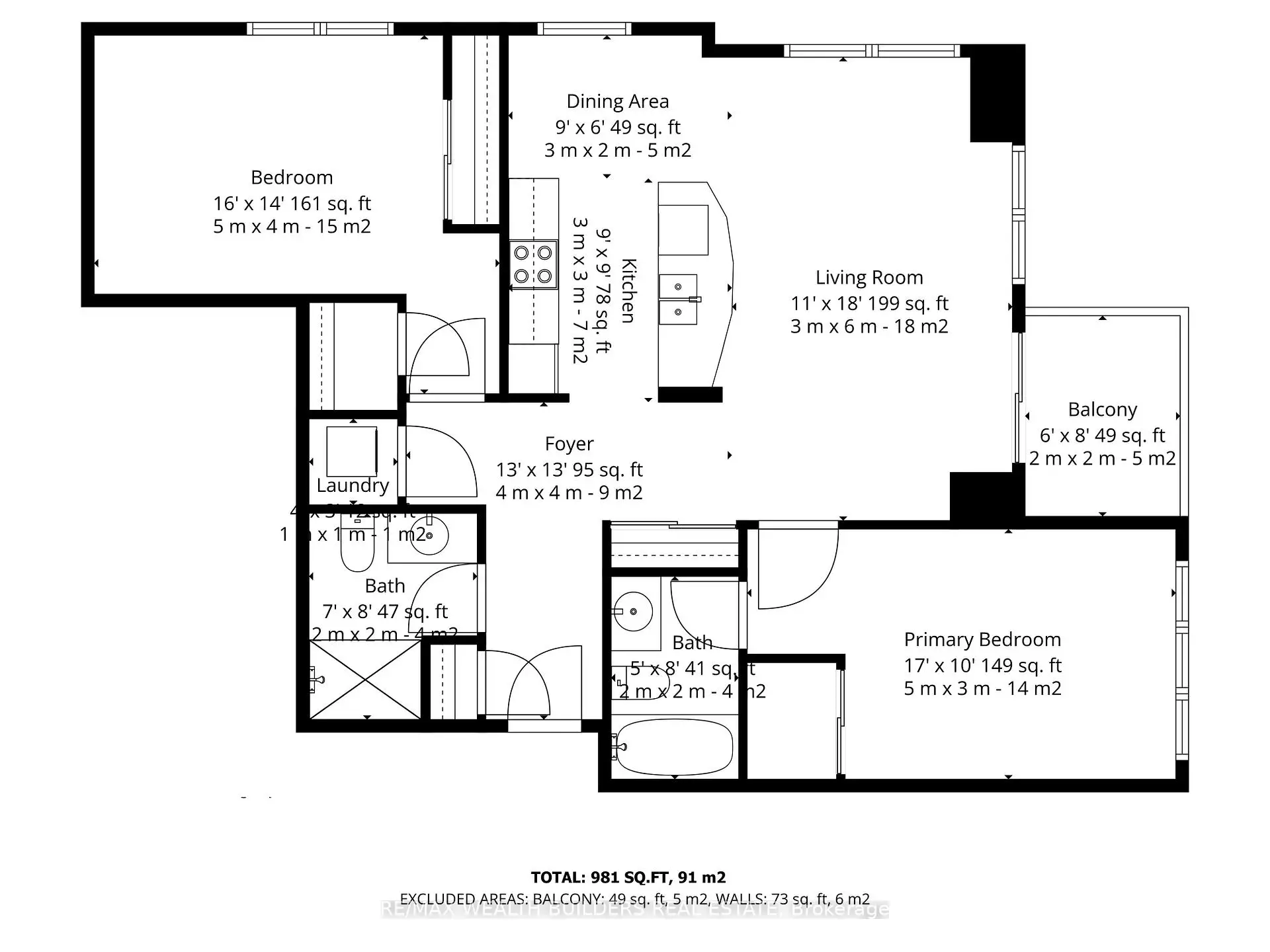
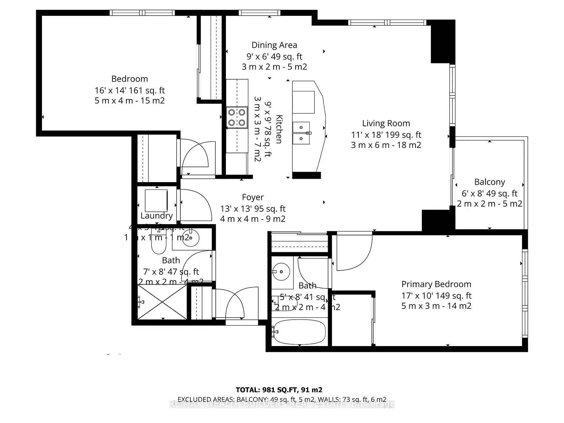
| 房间 | 尺寸(平方米) | 细节描述 | |
|---|---|---|---|
| Primary B | 5.00x3.00 | 4pcs卫生间套间 |
|
| 第二间卧室 | 5.00x4.00 | ||
| 客厅 Rm | 3.00x6.00 | 走出式阳台 |
|
| 晚餐室 Rm | 3.00x2.00 | 大窗 |
|
| 厨房 | 3.00x3.00 | ||
| 门厅 | 4.00x4.00 |
| 卫生间 | 卫浴件数 | 所在楼层 | |
|---|---|---|---|
| 1间 | 4件套 | ||
| 1间 | 3件套 |
房屋简介
房屋位于北约克C13社区Eglinton Ave East & Don Valley交界附近, 这间2房2卫单车库Condo Apt户型朝东北向. #305-1720 Eglinton Ave E拥有单停车位并带有一个室内储藏空间. 房屋及周边设施包括None等. Primary B, 第二间卧室, 客厅 Rm, 晚餐室 Rm, 厨房和 门厅在主层.Paradise at The Oasis
1720 Eglinton Ave E是由房地产建筑商Evergreen Villa Homes开发的, 物业年龄23年左右。该公寓大楼大约有9层190个单元。Paradise at The Oasis的设施包括用:健身房,前台服务,会客厅,网球场,桑拿房,访客停车位,室外游泳池和宾客套房。每月物业管理费1320.23加元包括用暖气,水,电和空调. 目前1720 Eglinton Ave E大约有8间公寓在售3间在出租。学校信息
- Sloane 公立小学 (年级: JK-5)
- Milne Valley 公立初中 (年级: 6-8)
- Don Mills 公立高中 (年级: 9-12) 352/739
- Victoria Park 公立高中 (年级: 9-12) 420/739
- Precious Blood 天主教学校 (年级: JK-8) 1991/3037
- Broadlands 公立小学 (年级: 0-5)
- Cassandra 公立小学 (年级: JK-5)


































