80 Antibes Dr 2502

主要路口Westminster-Branson, Toronto
$749K 出售价格

房屋信息

豪华生活令人惊叹的景色在这个移动准备,完全翻新 3个卧室, 2 -洗手间角住所。这个令人惊叹的家呈现出一个理想的开放概念布局,全新的高地,一个明亮的客厅,一个宽敞的餐厅。享受额外的多功能生活区没有太阳能。全新的厨师厨房真正令人印象深刻,提供早餐区,花岗岩柜台,花岗岩现代白色柜台,新的不锈钢电器,以及有风格的回放.之后的洗衣房增加了日常的便利.主要卧室拥有一个完全升级的3个接后浴室,另外还有两个宽敞的卧室。包括1个地下停车位和充足的后续储存地。特别的建筑设施包括运动室、桑拿、网球场、游客停车和客房。维修费包括水利费、水费和热费、增加值和安心的有线电视费

主要特征

  • 朝向: 西北
  • 睡房: 3
  • 洗手间: 2
  • 车库: 1
  • 厨房: 1

重要信息

  • 空间: 1200-1399
  • 房龄: 31-50
  • 管理费: $ 935.64
  • 地税: $ 2451.00
  • C12640212
  • Listing contracted with: TERRA REALTY INC.
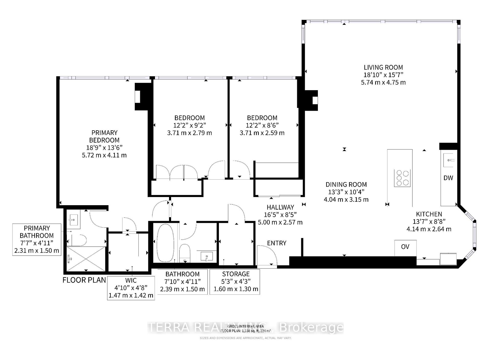
房间 尺寸(平方米) 细节描述
晚餐室 Rm4.04x3.15

合并厨房, 乙烯塑胶地板

客厅 Rm5.74x4.75

合并厨房, 大窗, 乙烯塑胶地板

厨房4.13x3.15

中心岛, 不锈钢电器,

Primary B5.72x4.11

3pcs卫生间套间, , 乙烯塑胶地板

第二间卧室3.71x2.79

大衣橱, 乙烯塑胶地板, 大窗

第三间卧室3.71x2.59

大衣橱, 大窗, 乙烯塑胶地板



卫生间 卫浴件数 所在楼层
1间4件套

主层

1间3件套

主层



房屋简介

房屋位于北约克央街西侧Bathurst and Drewry Ave交界附近, 这间3房2卫单车库Condo Apt户型朝西北向. #2502-80 Antibes Dr拥有单停车位. 房屋及周边设施包括Storage,PrimaryBedroom-Main,Built-InOven,CountertopRange和CarpetFree等. 晚餐室 Rm, 客厅 Rm, 厨房, Primary B, 第二间卧室和 第三间卧室在主层.

80 Antibes Drive Condos

80 Antibes Dr是由房地产建筑商
MenkesMenkes was founded by entrepreneur Murray Menkes more than 60 years ago.
开发的, 物业年龄47年左右。该公寓大楼大约有28层219个单元。80 Antibes Drive Condos的设施包括用:安全系统,访客停车位,会客厅,桑拿房,室外游泳池,健身房和网球场。每月物业管理费935.64加元包括用暖气,水,电和空调. 目前80 Antibes Dr大约有3间公寓在售0间在出租。


学校信息

  • 小学

  • Level
    对口学区学校
    在 3022学校里排名 1934 (分数: 5.5)
    距离学校0.8公里 (走路大约14分钟)
  • Level
    对口学区学校
    距离学校0.7公里 (走路大约13分钟)
  • Level
    ST ANTOINE DANIEL (年级: JK - 8)
    天主教学校法语沉浸课程 天主教法语沉浸课程学校
    在 3022学校里排名 1300 (分数: 6.4)
    距离学校8.5公里 (开车大约25分钟)
  • Level
    ST CYRIL (年级: JK - 8)
    天主教学校法语沉浸课程 天主教法语沉浸课程学校
    距离学校2.5公里 (开车大约8分钟)
  • Level
    ST MARGARET (年级: 5 - 8)
    天主教学校法语沉浸课程 天主教法语沉浸课程学校
    在 3022学校里排名 687 (分数: 7.3)
    距离学校5.2公里 (开车大约16分钟)
  • 中学

  • Level
    对口学区学校
    排名: 219/746 (分数: 7.0)   5年平均分: 191/746 (分数: 7.0)
    距离学校0.8公里 (走路大约14分钟)
  • Level
    Cardinal Carter-Arts (年级: 9-12)
    天主教学校 天主教学校
    距离学校3.6公里 (开车大约11分钟)
  • Level
    James Cardinal McGuigan (年级: 9-12)
    天主教学校 天主教学校
    排名: 313/746 (分数: 6.4)   5年平均分: 446/746 (分数: 5.5)
    距离学校4.1公里 (开车大约12分钟)


通勤信息

York University Go 火车站 (2.8公里)

地图位置



>