房屋信息
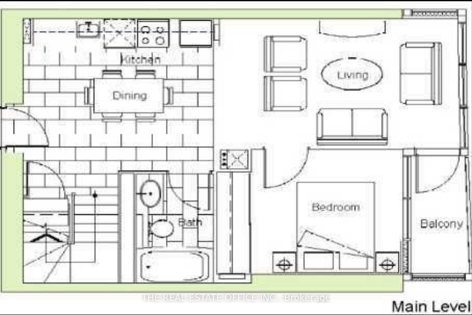
多伦多市中心的特有两层楼阁楼,直接取道罗杰斯中心和标志性的CN塔.这座明亮而宽敞的住宅有两间卧室,两间完整的浴室,高耸起的天花板,从地到地的窗户,以及现代城市生活的开放概念生活空间理想.享受无与伦比的可步行性,可立即进入世界级娱乐、餐馆、水边小道和过境。主要通勤便利,与加地纳快道,滨湖通勤快道,以及主要的公交线路无心连接.拥有充满活力的市中心阁楼的难得机会
主要特征
- 朝向: 东

- 睡房: 2+1

- 洗手间: 2

- 车库: 1

- 厨房: 1

重要信息
- 空间: 1000-1199

- 管理费: $ 766.64

- 地税: $ 3982.00

- C12611680

- Listing contracted with: THE REAL ESTATE OFFICE INC.
| 卫生间 | 卫浴件数 | 所在楼层 | |
|---|---|---|---|
| 1间 | 3件套 | 主层 |
|
| 1间 | 3件套 | Second |
房屋简介
房屋位于多伦多市区中心Spadina & Fort York Blvd交界附近, 这间2房2卫单车库两层共管公寓户型朝东向. #2808-15 Fort York Blvd拥有单停车位并带有一个室内储藏空间. 房屋及周边设施包括StorageAreaLockers和CarpetFree等. .Cityplace N2
15 Fort York Blvd是由房地产建筑商ConcordConcord Adex Development Co., Ltd. (Concord Adex) is a subsidiary of Concord Adex Pacific Group Inc. Concord World Expo was established in 1987 and headquartered in Vancouver.
开发的, 物业年龄17年左右。Cityplace N2的设施包括用:健身房,前台服务,会客厅,宾客套房,室内游泳池,桑拿房和访客停车位。每月物业管理费766.64加元包括用水,暖气和空调. 学校信息
- Ryerson Community School (年级: JK-8) 2413/3037
- Harbord 公立高中 (年级: 9-12) 163/739
- Lord Lansdowne 公立小学 (年级: 0-6) 548/3037
- King Edward Junior and 公立初中 (年级: JK-8) 1119/3037
- Ryerson Community School (年级: JK-8) 2413/3037
通勤信息
St. Andrew 地铁站 (1.1公里)Union Go 火车站 (1.2公里)

































