房屋信息
你的餐厅成为全市最好的餐厅安大略湖和多伦多市中心的全景天花板到天花板,墙到墙窗东南暴露充满了自然光内部提供950平方英尺设计良好的生活空间.这种开放的概念布局展现出宏伟的湖景——真正绝对的出场地!设计出两个分出卧室和一个可以用作办公室或额外卧室的大型地穴.享受顶级生活设施,包括室内游泳池,健身房,聚会室,室外休息室有烧烤,攀岩墙等.还有24小时客房和游客停车从娱乐区到金融区步入餐厅、酒吧、咖啡馆、杂货店和图书馆。方便地进入公交,加地纳快道,或到港口的出道. 8英亩的公园、新学校和娱乐中心就在街对面
主要特征
- 朝向: 东南

- 睡房: 2+1

- 洗手间: 2

- 车库: 1

- 厨房: 1

重要信息
- 空间: 900-999

- 管理费: $ 763.00

- 地税: $ 3554.00

- C12601774

- Listing contracted with: PROPERTY.CA INC.
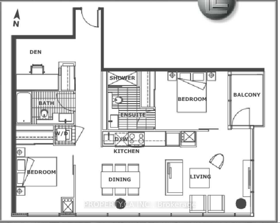
| 房间 | 尺寸(平方米) | 细节描述 | |
|---|---|---|---|
| 客厅 Rm | 5.46x3.73 | 复合地板, 合并厨房, 南向 |
|
| 晚餐室 Rm | 3.71x2.64 | 复合地板, 合并客厅, |
|
| 厨房 | 5.46x3.73 | 复合地板, 不锈钢电器, |
|
| Primary B | 3.38x2.72 | 复合地板, 4pcs卫生间套间, 双壁橱 |
|
| 第二间卧室 | 3.02x2.69 | 复合地板, 壁橱, 窗户 |
|
| 书房 | 2.32x2.02 | 复合地板, 独立房间, |
| 卫生间 | 卫浴件数 | 所在楼层 | |
|---|---|---|---|
| 1间 | 4件套 | 主层 |
|
| 1间 | 4件套 | 主层 |
房屋简介
房屋位于多伦多市区中心Front & Spadina交界附近, 这间2房2卫单车库Condo Apt户型朝东南向. #3606-25 Telegram Mews拥有单停车位. 房屋及周边设施包括None等. .Montage
25 Telegram Mews是由房地产建筑商ConcordConcord Adex Development Co., Ltd. (Concord Adex) is a subsidiary of Concord Adex Pacific Group Inc. Concord World Expo was established in 1987 and headquartered in Vancouver.
开发的, 物业年龄16年左右。该公寓大楼大约有47层529个单元。Montage的设施包括用:健身房,前台服务,会客厅,宾客套房,室内游泳池和访客停车位。每月物业管理费763.00加元包括用水,暖气和空调. 目前25 Telegram Mews大约有13间公寓在售6间在出租。 学校信息
- Ryerson Community School (年级: JK-8) 2413/3037
- Harbord 公立高中 (年级: 9-12) 163/739
- Lord Lansdowne 公立小学 (年级: 0-6) 548/3037
- King Edward Junior and 公立初中 (年级: JK-8) 1119/3037
- Ryerson Community School (年级: JK-8) 2413/3037
通勤信息
St. Andrew 地铁站 (1.1公里)Union Go 火车站 (1.2公里)









































