房屋信息
纽约大区!莲花孔多斯大厦! 715 sq/Ft 生活区域和 Lige 276 sq Ftt阳台,宽敞的2睡房/2Bath 单元,开放式的公寓仅步行至Bayview 地铁站站台出入口站台.在"美丽湾景村之心"( Heart 尊贵的Bayview 社区夜晚bome)中,"你所希望的一切只是出行:湾景村购物中心,高米食品和美食店,Ymca,轻松可至401, 404 和央街.,游乐场,学校和图书馆.
主要特征
- 朝向: 北

- 睡房: 2

- 洗手间: 2

- 车库: 1

- 厨房: 1

重要信息
- 空间: 700-799

- 管理费: $ 629.12

- 地税: $ 3404.78

- C12502662

- Listing contracted with: FOREST HILL REAL ESTATE INC.
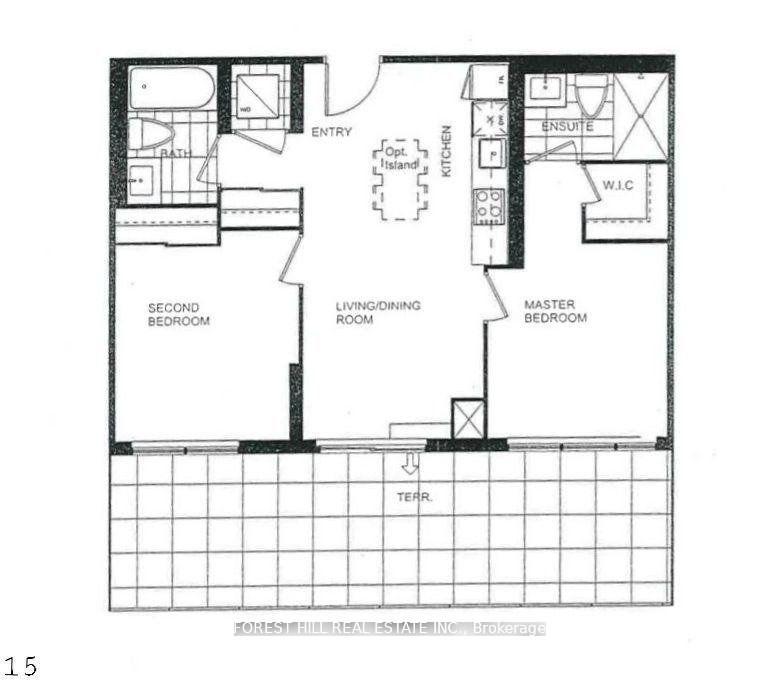
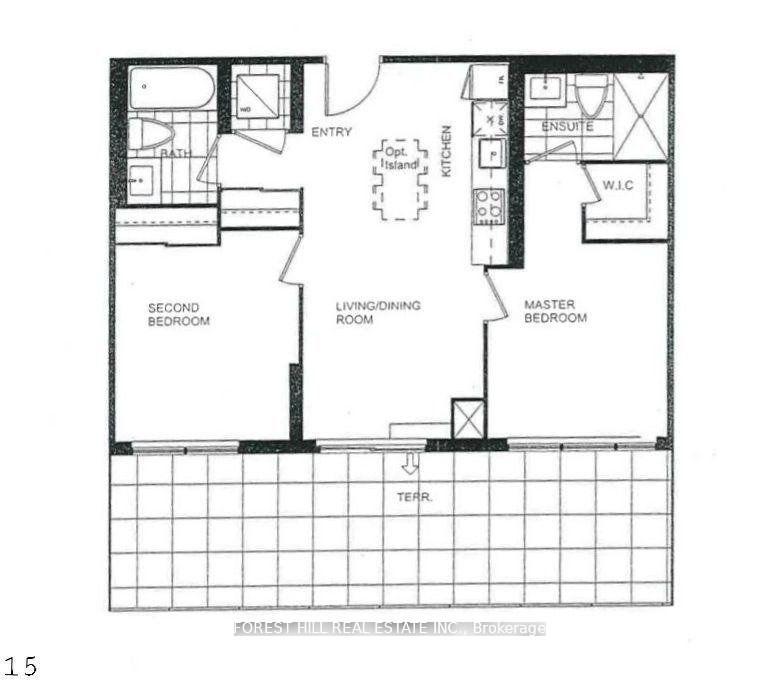
| 房间 | 尺寸(平方米) | 细节描述 | |
|---|---|---|---|
| 客厅 Rm | 6.52x3.08 | 复合地板, 走出式阳台 |
|
| 晚餐室 Rm | 6.52x3.08 | 复合地板, 合并客厅 |
|
| 厨房 | 6.52x3.08 | 复合地板, 合并餐饮, 不锈钢电器 |
|
| 卧室 | 3.35x3.05 | 地毯, 3pcs卫生间套间, |
|
| 第二间卧室 | 3.35x3.14 | 地毯, 壁橱, 4 件套卫生间 |
| 卫生间 | 卫浴件数 | 所在楼层 | |
|---|---|---|---|
| 1间 | 4件套 | 主层 |
|
| 1间 | 3件套 | 主层 |
房屋简介
房屋位于北约克东部Bayview and Sheppard交界附近, 这间2房2卫单车库Condo Apt户型朝北向. #716-7 Kenaston Garden拥有单停车位并带有一个室内储藏空间. 房屋及周边设施包括Other等. .Lotus Condo
7 Kenaston Garden是由房地产建筑商Chestnut Hill Developments开发的, 物业年龄7年左右。该公寓大楼大约有12层241个单元。Lotus Condo的设施包括用:健身房,前台服务,宾客套房,会客厅,访客停车位和屋顶花园。每月物业管理费629.12加元包括用暖气和空调. 目前7 Kenaston Garden大约有6间公寓在售3间在出租。学校信息
- Crestview 公立小学 (年级: JK-5) 265/3064
- Woodbine 公立初中 (年级: 6-8)
- Georges Vanier 公立中学 (年级: 9-12) 374/739
- St. Gabriel 天主教学校 (年级: JK-8) 2041/3037
- Dallington 公立小学 (年级: JK-5) 359/3064
- Cresthaven 公立小学 (年级: JK-5) 1123/2900
通勤信息
Bayview 地铁站 (0.1公里)Oriole Go 火车站 (1.7公里)
































