160 Vanderhoof Ave 711

主要路口Thorncliffe Park, Toronto
$425K 出售价格

房屋信息

景德镇三中.伟大的价值单位与停车和两个洛克尔斯!相去相去 1 睡房套间带有超大77 sf阳台相去相去(原始内容存档于2017-10-12).现代化城市生活风格在 Conferent位置. T C、L R T 购物(智能Crt、homesense、住宅 depot、等等)学校与公园. dV P 软件

主要特征

  • 朝向: 南
  • 睡房: 1
  • 洗手间: 1
  • 车库: 1
  • 厨房: 1

重要信息

  • 空间: 0-499
  • 管理费: $ 507.28
  • 地税: $ 2028.50
  • C12475269
  • Listing contracted with: RE/MAX EXCEL REALTY LTD.
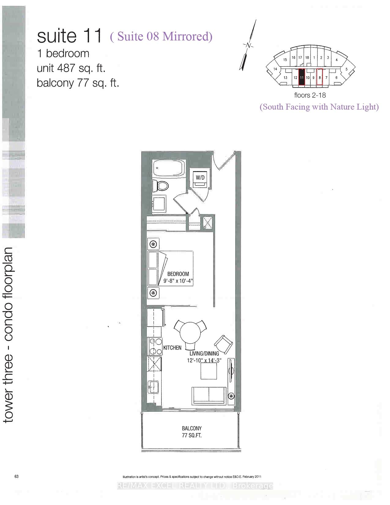
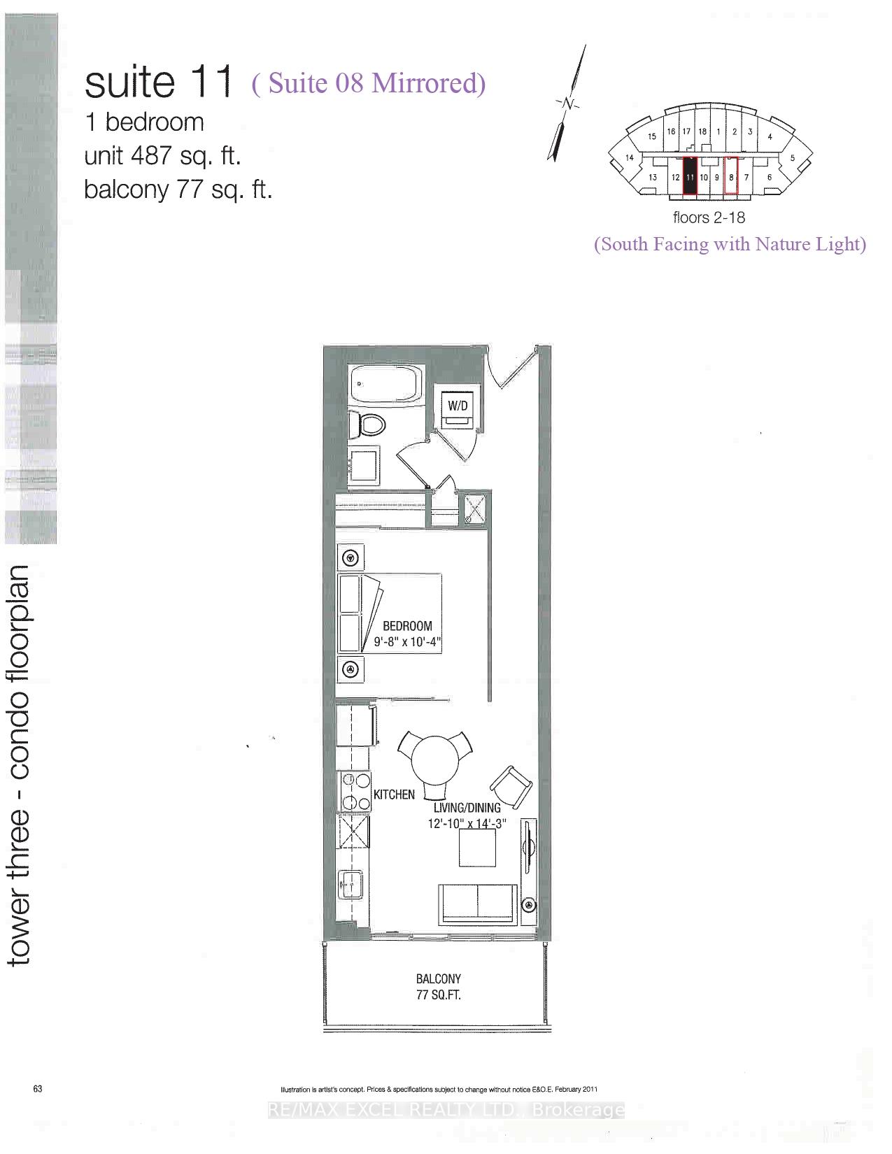
房间 尺寸(平方米) 细节描述
客厅 Rm4.34x3.91

合并餐饮, 走出式阳台, 复合地板

晚餐室 Rm4.34x3.91

合并客厅, 开放式概念, 复合地板

厨房0.01x0.01

, 复合地板

Primary B3.15x2.95

大衣橱, 滑动门, 独立房间



卫生间 卫浴件数 所在楼层
1间4件套

主层



房屋简介

房屋位于Eglinton and Lesile交界附近, 这间1房1卫单车库Condo Apt户型朝南向. #711-160 Vanderhoof Ave拥有单停车位并带有一个室内储藏空间. 房屋及周边设施包括None等. 客厅 Rm, 晚餐室 Rm, 厨房和 Primary B在一层.

Scenic on Eglinton III

160 Vanderhoof Ave是由房地产建筑商Aspen Ridge Homes开发的, 物业年龄9年左右。该公寓大楼大约有18层316个单元。Scenic on Eglinton III的设施包括用:会客厅,前台服务,访客停车位,健身房,桑拿房,室内游泳池和宾客套房。每月物业管理费507.28加元包括用暖气和空调. 目前160 Vanderhoof Ave大约有7间公寓在售9间在出租。


学校信息

  • elementary schools
    Bessborough Drive Elementary and 公立初中 (年级: 7-8) 228/3037
  • secondary schools
    Leaside 公立高中 (年级: 9-12) 18/739
  • secondary schools
    Northern 公立中学 (年级: 9-12) 209/739
  • elementary schools
    Canadian Martyrs 天主教学校 (年级: JK-8) 513/3037
  • elementary schools
    Bedford Park 公立小学 (年级: JK-8) 267/3037
  • elementary schools
    Chester 公立小学 (年级: JK-5)
  • elementary schools
    Northlea Elementary and 公立初中 (年级: JK-8) 301/3037


房屋位置