房屋信息
在这座惊人的1,086平方英尺2平方英尺的卧室里住着经验丰富的现代城市,在西国王的心脏有2间浴室套房。以9-ft曝光的混凝土天花板和从地上到上层的窗户来设计,这所住宅将现代风格与功能舒适相融合.开放概念的厨房包括一个外宽的大理石铺地岛,不锈钢电器,以及丰富的储存理想的日常烹饪和无劳娱乐.开放式概念生活和餐饮区无缝地延伸至明亮的阳台上,适合户外用餐或与庭院上方的风景相通.国王大小的初级套房提供宁静的休憩空间,并设有走入的衣柜和一回相机玻璃封闭的套房.第二间卧室为来宾提供灵活性,家用办公室或创意空间,并配有完整的第二间浴室.其他重点包括套间洗衣和在整个过程中的慷慨储存。这座宠物友好建筑提供高贵的便利设施,包括一个24小时的客厅,一个设备齐全的健身房,以及一个内院绿地.列入1个重点停车位.从国王街车站、即将到来的安大略线、公园、餐馆、咖啡馆、美术馆和商店的台阶上,这是在多伦多最生机勃勃的街区之一拥有分块布局公寓的难得机会
主要特征
- 朝向: 西北

- 睡房: 2

- 洗手间: 2

- 车库: 1

- 厨房: 1

重要信息
- 空间: 900-999

- 房龄: 11-15
- 管理费: $ 739.58

- 地税: $ 4373.71

- C12468368

- Listing contracted with: RE/MAX ULTIMATE REALTY INC.
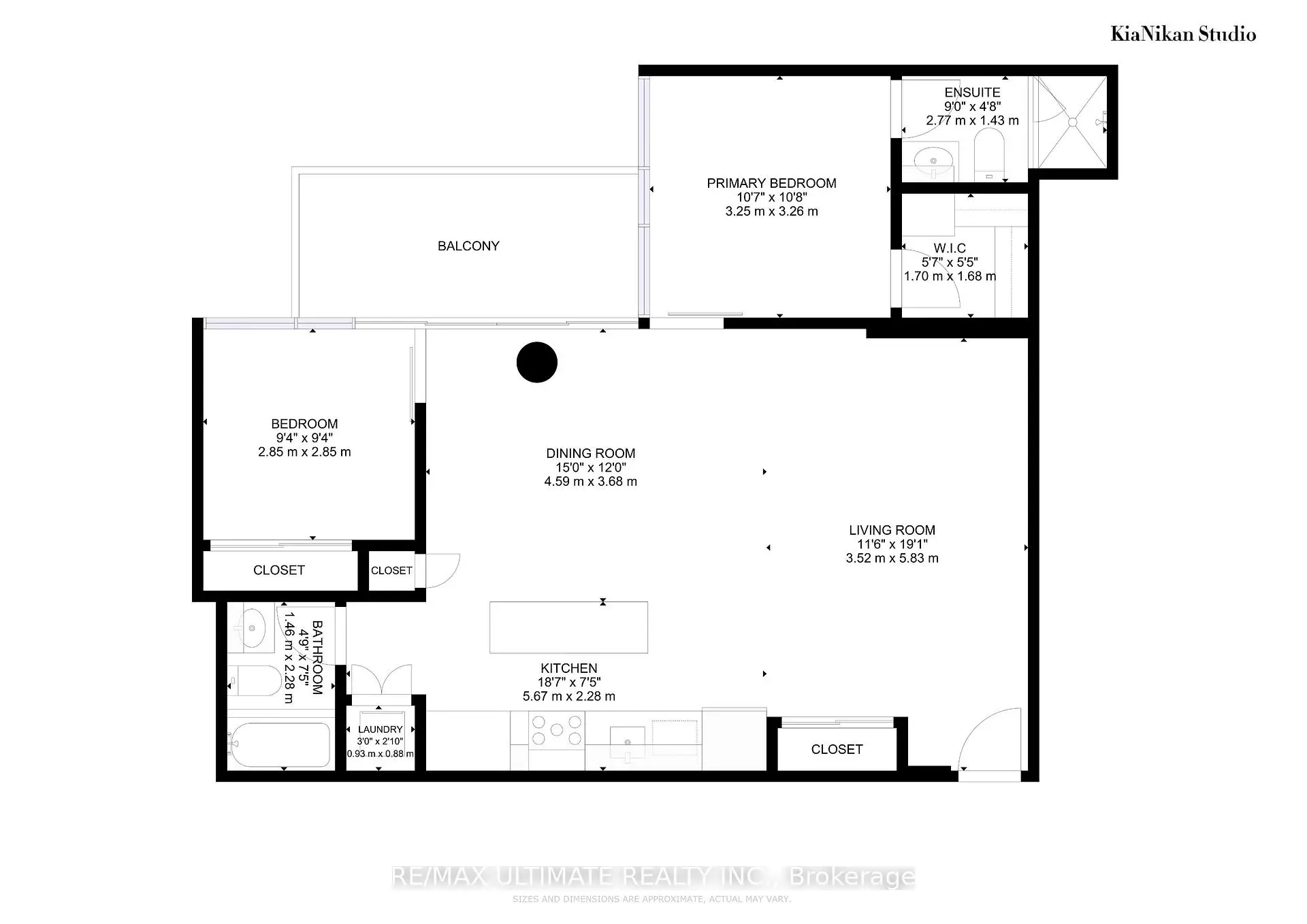
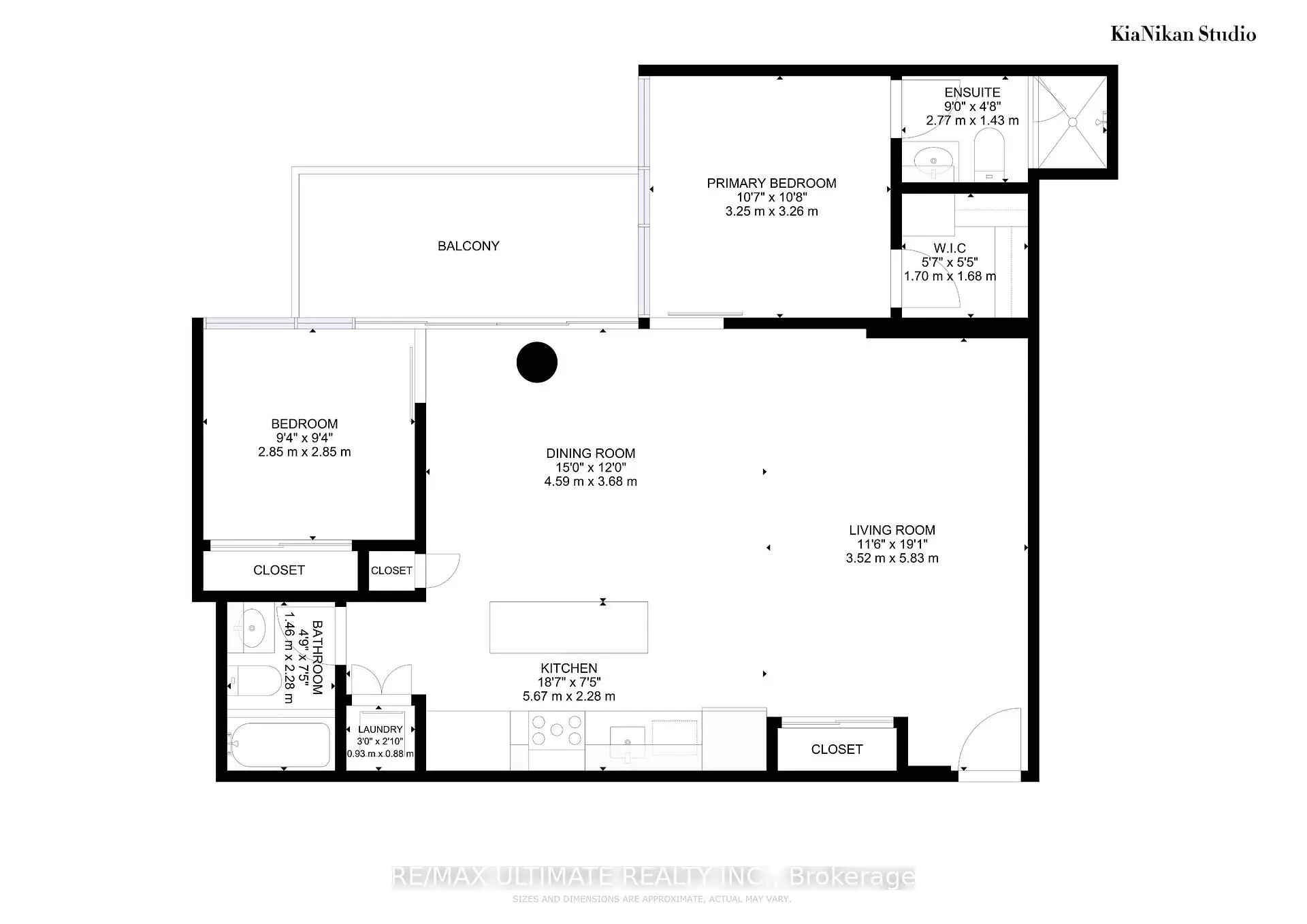
| 房间 | 尺寸(平方米) | 细节描述 | |
|---|---|---|---|
| 客厅 Rm | 3.60x5.90 | 合并餐饮, 硬木地板 |
|
| 厨房 | 5.70x2.30 | 开放式概念, 中心岛 |
|
| 晚餐室 Rm | 4.60x3.70 | 合并客厅, 硬木地板 |
|
| Primary B | 3.30x3.90 | , 硬木地板 |
|
| 第二间卧室 | 2.90x2.90 | 智能衣橱, 滑动门, 硬木地板 |
|
| Bath | 2.80x1.50 | 3pcs卫生间套间, 步入式浴缸 |
|
| Bath | 2.30x1.50 | 3pcs卫生间套间, 套间浴室 |
|
| 其他 | 4.70x1.80 | 阳台 |
|
| 其他 | 1.70x1.70 |
| 卫生间 | 卫浴件数 | 所在楼层 | |
|---|---|---|---|
| 1间 | 3件套 | 主层 |
|
| 1间 | 3件套 | 主层 |
房屋简介
房屋位于多伦多市区中心King ST. W and Bathurst交界附近, 这间2房2卫单车库Condo Apt户型朝西北向. #315-650 King St W拥有单停车位. 房屋及周边设施包括None和CarpetFree等. 客厅 Rm, 厨房, 晚餐室 Rm, Primary B, 第二间卧室, Bath, Bath, 其他和 其他在主层.Six50 King
650 King St W是由房地产建筑商Freed Developments开发的, 物业年龄14年左右。该公寓大楼大约有10层96个单元。Six50 King的设施包括用:健身房,前台服务,屋顶花园,会客厅,健身房和访客停车位。每月物业管理费739.58加元包括用暖气,水和空调. 目前650 King St W大约有5间公寓在售3间在出租。通勤信息
Osgoode 地铁站 (1.4公里)Exhibition Go 火车站 (1.6公里)

















































