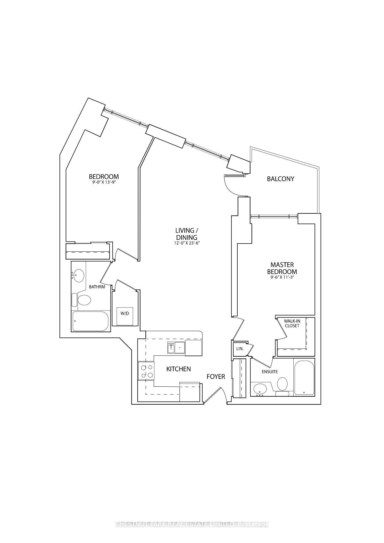
房屋信息
你准备好在令人愉快的公寓里翻出新的一页了吗?需要改变生活方式并不意味着"牺牲"当你的新空间提供你需要的更多东西。位于劳伦斯公园中心地带的这个位置被美丽的公园和顶级学校所包围,提供了宁静而丰富的环境.当你有心情过一些城市生活时,短短的步行会直接带你到多伦多的活泼的文化场景。挥手告别院子工作和铲雪!相反,享受在阳光照亮的南向阳台上喝你的晨饮吧,因为大窗和高天花板在丰富的自然光下吸引,创造了一种升华的气氛。初级卧室提供一个走入的衣柜,后续的洗手间,以及额外的亚麻储藏所,非常适合安排你的空间或沉浸在一点零售疗法中.智能分房布局既能提供隐私又能提供舒适,第二间卧室方便地位于一个完整的浴室附近.加入一个温暖,欢迎的社区在这个管理良好,低楼层的建筑,提供24小时的客房服务在相邻的大厅。明知家境安全,您可以静静地出行。
主要特征
- 朝向: 南

- 睡房: 2

- 洗手间: 2

- 车库: 1

- 厨房: 1

重要信息
- 空间: 900-999

- 管理费: $ 940.76

- 地税: $ 3687.00

- C12460916

- Listing contracted with: CHESTNUT PARK REAL ESTATE LIMITED
| 房间 | 尺寸(平方米) | 细节描述 | |
|---|---|---|---|
| 客厅 Rm | 6.20x3.70 | 走出式阳台, 复合地板, 合并餐饮 |
|
| 晚餐室 Rm | 6.20x3.70 | 复合地板, 合并客厅 |
|
| Primary B | 4.20x3.20 | 4pcs卫生间套间, , 复合地板 |
|
| 第二间卧室 | 4.10x2.80 | 4 件套卫生间, 大衣橱, 大窗 |
|
| 厨房 | 3.10x2.40 | , 早餐台, 瓷砖地板 |
| 卫生间 | 卫浴件数 | 所在楼层 | |
|---|---|---|---|
| 1间 | 4件套 | 主层 |
|
| 1间 | 4件套 | 主层 |














































