2 Clairtrell Rd 208

主要路口Willowdale East, Toronto
$525K 出售价格

房屋信息

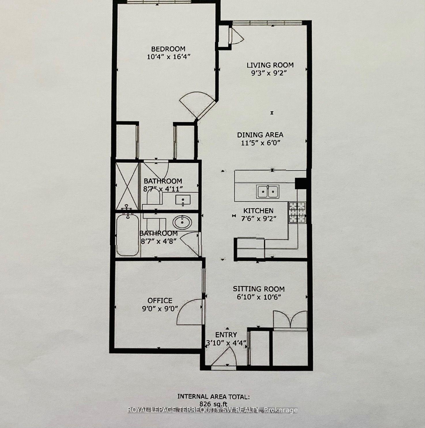
生活在北约克的好生活在湾景庄园!这个精致和风格的826 sq Ft楼层计划是大楼中独一无二的,也是其中的一个。登罐头容易成为内政部的第二寝室和坐床区。由原拥有者美丽地维护,这个无暇,额外的Lige 和 sspocious 一睡房加上书房有两间完整的浴室可用作"双卧室"+"书房"(见附下楼平面图).味觉内地包括9个脚盖、拉平地上和Crown Molding,主要生活区+加利福尼亚带有亮光和阳光南照的百叶窗。在Bayview 村你需要的一切的台阶中拥有许多奢侈品店餐馆咖啡馆和市场再加上一块石头扔到Bayview 地铁站以及401号高速公路的方便通道这是拥有和享受百万富翁住宅区中最牢固的住宅区中的关键公寓生活方式的罕见机会。时间到了,今天是你的!此一个+属性显示非常 Wel

主要特征

  • 朝向: 南
  • 睡房: 1+1
  • 洗手间: 2
  • 车库: 1
  • 厨房: 1

重要信息

  • 空间: 800-899
  • 管理费: $ 855.54
  • 地税: $ 2556.35
  • C12438800
  • Listing contracted with: ROYAL LEPAGE TERREQUITY SW REALTY
房间 尺寸(平方米) 细节描述
客厅 Rm2.82x2.79

复合地板, 合并餐饮, 皇冠顶饰

晚餐室 Rm3.48x1.83

合并客厅, 皇冠顶饰, 复合地板

厨房2.79x2.29

早餐台, 陶瓷地板,

卧室4.98x3.15

3pcs卫生间套间, 双壁橱, 大窗

书房2.74x2.74

复合地板, 独立房间, 窗户

小房间3.20x2.08

开放式概念, 复合地板, 合并办公室



卫生间 卫浴件数 所在楼层
1间3件套

主层

1间4件套

主层



房屋简介

房屋位于北约克央街东侧Bayview Village交界附近, 这间1房2卫单车库Condo Apt户型朝南向. #208-2 Clairtrell Rd拥有单停车位并带有一个室内储藏空间. 房屋及周边设施包括StorageAreaLockers等. 客厅 Rm, 晚餐室 Rm, 厨房, 卧室, 书房和 小房间在主层.

Bayview Mansions

2 Clairtrell Rd是由房地产建筑商Times Group Corporation开发的, 物业年龄22年左右。该公寓大楼大约有14层137个单元。Bayview Mansions的设施包括用:健身房,前台服务,娱乐室,会客厅,访客停车位,桑拿房和宾客套房。每月物业管理费855.54加元包括用暖气,水和空调. 目前2 Clairtrell Rd大约有3间公寓在售1间在出租。


学校信息

  • elementary schools
    Hollywood 公立小学 (年级: JK-5) 1/3064
  • elementary schools
    Bayview 公立初中 (年级: 6-8)
  • secondary schools
    A Y Jackson 公立中学 (年级: 9-12) 52/739
  • secondary schools
    Georges Vanier 公立中学 (年级: 9-12) 374/739
  • elementary schools
    St. Gabriel 天主教学校 (年级: JK-8) 2041/3037
  • elementary schools
    St. Cyril 天主教学校 (年级: JK-8)
  • elementary schools
    Pleasant 公立小学 (年级: JK-6) 577/3037
  • elementary schools
    Lester B Pearson 公立小学 (年级: 0-8)


通勤信息

Bayview 地铁站 (0.3公里)
Oriole Go 火车站 (2.1公里)

房屋位置