房屋信息
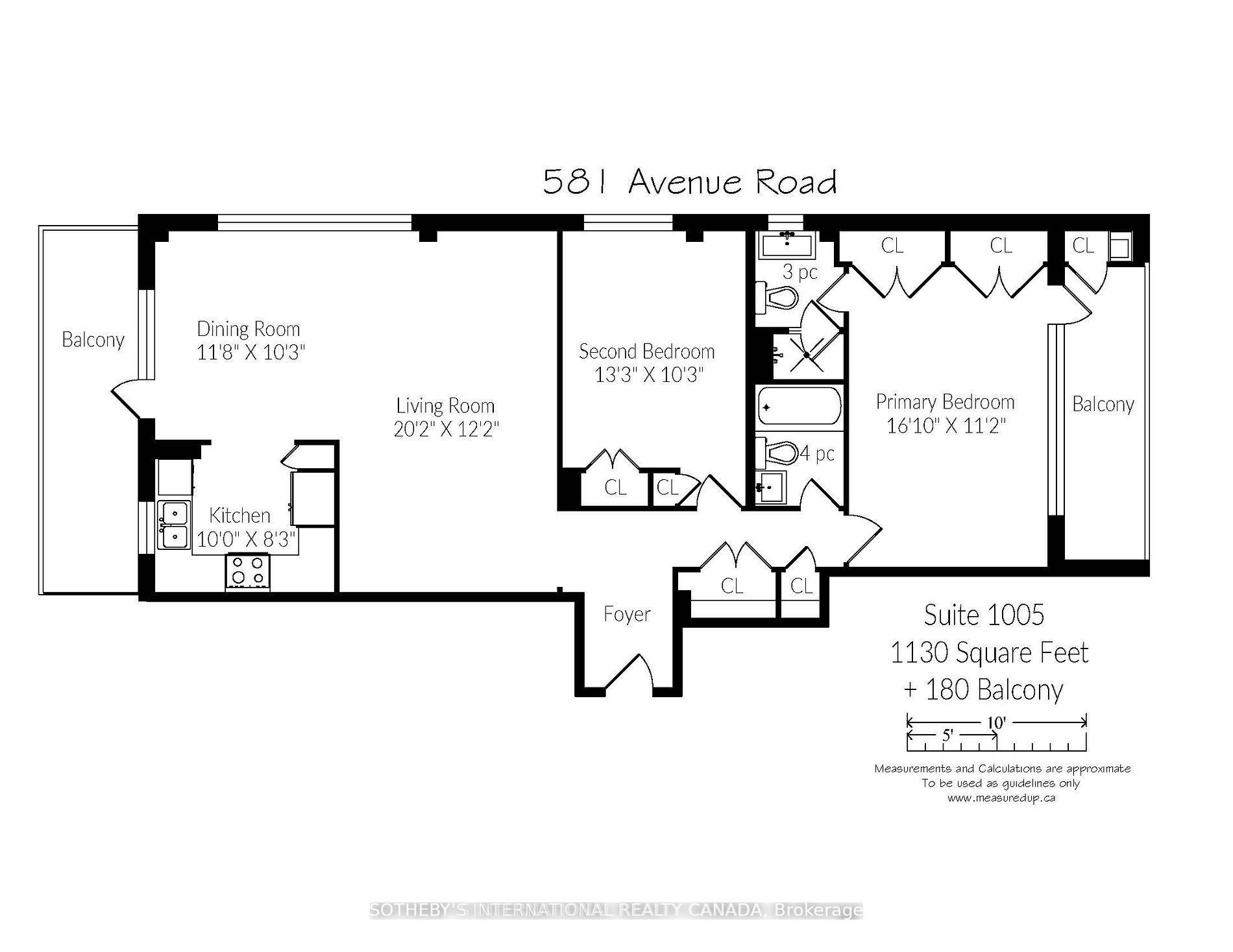
你准备好迎接这个少有的,宽敞的,完全改造的,两间卧室,现代的中世纪私人"aven热暖h"私人Co-op公寓了吗?提供中城生活的生活方式福利?这座独家建筑是"四季"开发商伊西·夏普(英语:issy sharp (film))早期的项目之一,在雷达下飞行. NB:共计1800.21个月的维修和地产税合并,包括:市政税、热能、常识、1个停车站、1个储物柜、高速Rogers Ignite互联网和BulkVIP电视包、建筑保险、现场监督。步入永和圣K莱尔,森林山村和贝尔特莱.方便进入市中心。明亮明亮,有永远的取景地,图片窗,和两道花厅,公寓有北/东/南取景地,忽略了"鹿园",并有两道新装修的浴室和一道新厨房,新电器,新装修的硬木地板;全新门,修饰和硬件;多道双层壁橱有定制的"加州衣橱"内部.享受两个新的,安静的,三菱空调单位让你在夏天凉爽。这是一个低调,安静,贪婪,自有的股东大楼.没有宠物。租金受到限制。实际已上演.设有更新的大厅、走廊和现场维护/监督。底层洗衣房和柜子***你想避免提交多伦多空闲家庭税报告吗?作为这个私人合作住所的股东,个人股东可以免去向本市提交这份报告.这为多伦多兼职居民提供了一个理想的情况,因为公司作为一个实体纳税,免征空缺税。***平方英寸
主要特征
- 朝向: 东

- 睡房: 2

- 洗手间: 2

- 车库: 1

- 厨房: 1

重要信息
- 空间: 1000-1199

- 房龄: 51-99
- 管理费: $ 1530.21

- 地税: $ 3233.03

- C12389730

- Listing contracted with: SOTHEBY'S INTERNATIONAL REALTY CANADA
| 房间 | 尺寸(平方米) | 细节描述 | |
|---|---|---|---|
| 门厅 | 2.03x1.52 | 双壁橱, 花岗岩地板, 亚麻壁橱 |
|
| 客厅 Rm | 6.15x3.71 | 硬木地板, 风景窗 |
|
| 晚餐室 Rm | 3.56x3.12 | 风景窗, 走出式阳台, 硬木地板 |
|
| 厨房 | 3.05x2.51 | 不锈钢电器, 瓷砖地板, 窗户 |
|
| Primary B | 5.13x3.40 | 双壁橱, 硬木地板, 走出式阳台 |
|
| Bath | 0.00x0.00 | 3pcs卫生间套间, 瓷砖地板, 窗户 |
|
| 第二间卧室 | 4.04x3.12 | 双壁橱, 窗户, 硬木地板 |
|
| Bath | 0.00x0.00 | 4 件套卫生间, 瓷砖地板, |
| 卫生间 | 卫浴件数 | 所在楼层 | |
|---|---|---|---|
| 1间 | 4件套 | 主层 |
|
| 1间 | 3件套 | 主层 |


































