房屋信息
欢迎来到糖瓦夫西塔门克斯-一个豪华的东南高地套房这间2个卧室,2个浴室,共计954英尺(位于847 sq.ft.+107 sq.ft.阳台外),提供客厅和卧室的自然光和全景水景.享受升起的收尾,包括:开放式概念布局,有地上至上层的窗户,9'天花板,宽平板层地板,Miele内置电器,以及一个设计师厨房.包括一个停车位。还包括高速互联网和团结健身会员(2个通过).位于多伦多斯活泼的滨水区,到联合站,糖滩,圣劳伦斯市场,以及金融区.居民享有世界级的便利设施:健身房、室内/室外游泳池、屋顶休息室和24小时招待所。不要错过这个机会,在多伦多第一社区之一拥有无与伦比的湖景。
主要特征
- 朝向: 南

- 睡房: 2

- 洗手间: 2

- 车库: 1

- 厨房: 1

重要信息
- 空间: 900-999

- 房龄: New
- 管理费: $ 858.83

- 地税: $ 5252.56

- C12276788

- Listing contracted with: MEHOME REALTY (ONTARIO) INC.
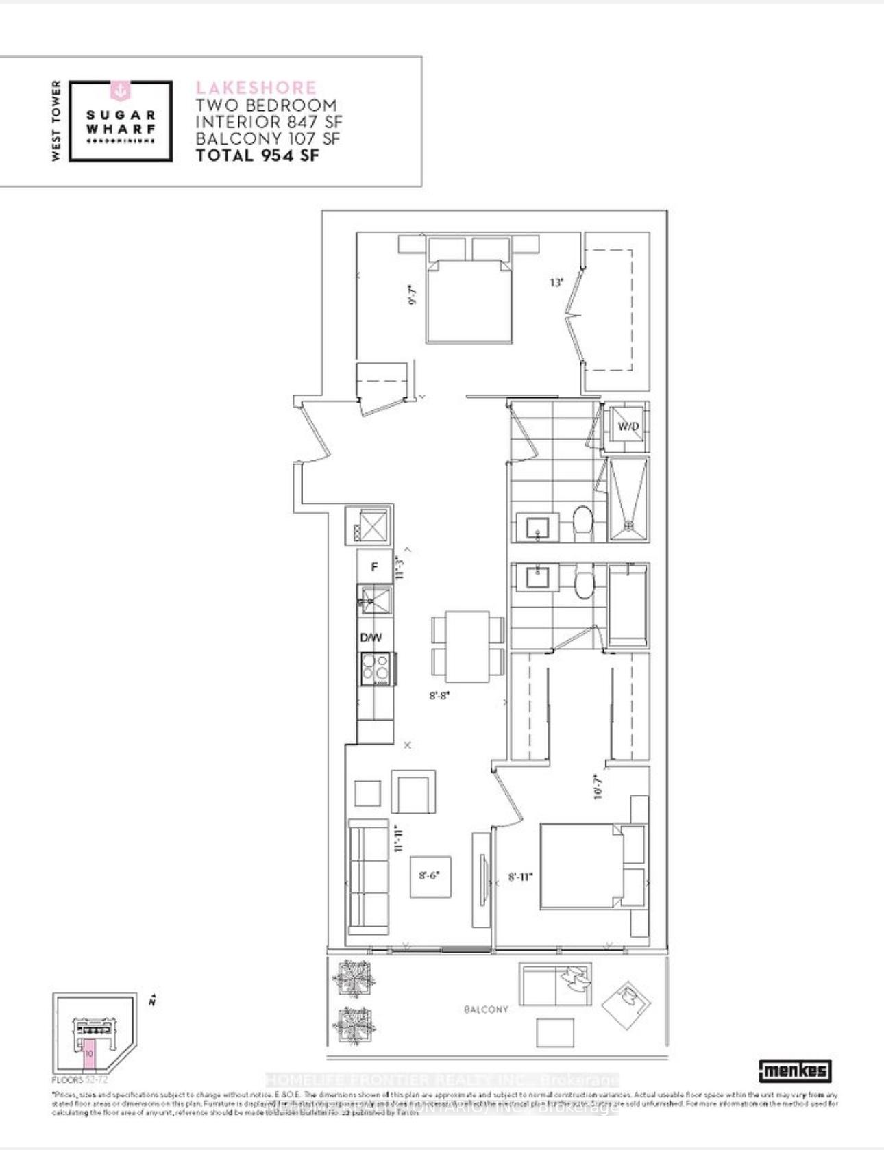
| 房间 | 尺寸(平方米) | 细节描述 | |
|---|---|---|---|
| 客厅 Rm | 3.38x2.62 | 走出式阳台, 合并厨房, 开放式概念 |
|
| 晚餐室 Rm | 3.44x2.68 | 合并厨房, 开放式概念, 合并客厅 |
|
| Primary B | 3.26x2.47 | 3pcs卫生间套间, , 大窗 |
|
| 第二间卧室 | 3.96x2.95 | 大衣橱, 滑动门, 复合地板 |
|
| 厨房 | 3.44x2.68 | 合并餐饮, 现代厨房, 智能家电 |
| 卫生间 | 卫浴件数 | 所在楼层 | |
|---|---|---|---|
| 1间 | 3件套 | 主层 |
|
| 1间 | 3件套 | 主层 |
房屋简介
房屋位于多伦多市区东部Yonge & Queens Quay East交界附近, 这间2房2卫单车库Condo Apt户型朝南向. #6210-55 Cooper St S拥有单停车位. 房屋及周边设施包括None等. .Suger Wharf West Tower
55 Cooper St S是由房地产建筑商Menkes Developments开发的, 物业年龄1年左右。该公寓大楼大约有79层1927个单元。Suger Wharf West Tower的设施包括用:健身房,前台服务,会客厅,篮球场,宾客套房,T暖气er,室内游泳池,PATH和PATH。目前55 Cooper St S大约有10间公寓在售12间在出租。通勤信息
King 地铁站 (0.7公里)Union Go 火车站 (0.7公里)

















































