房屋信息
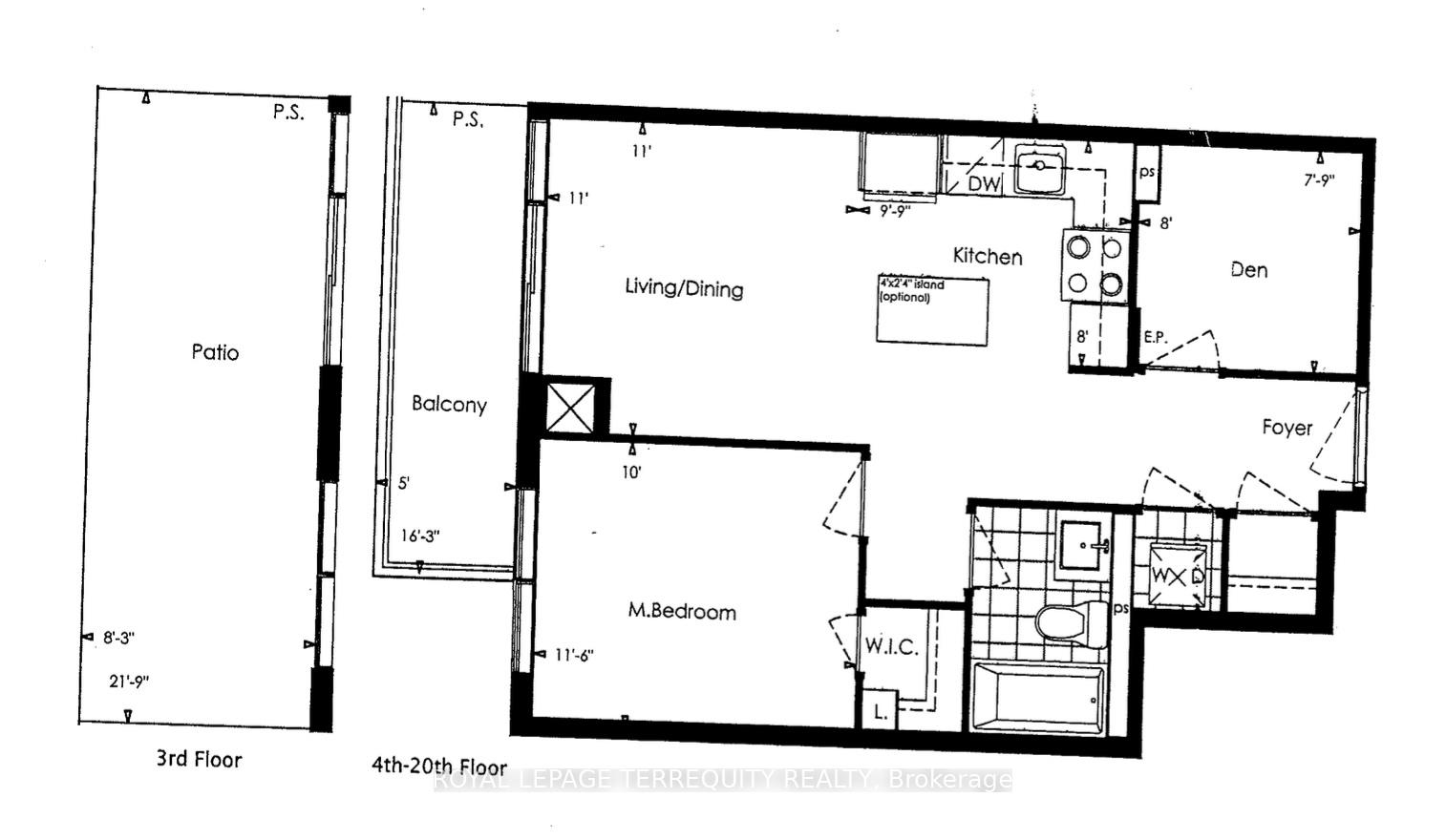
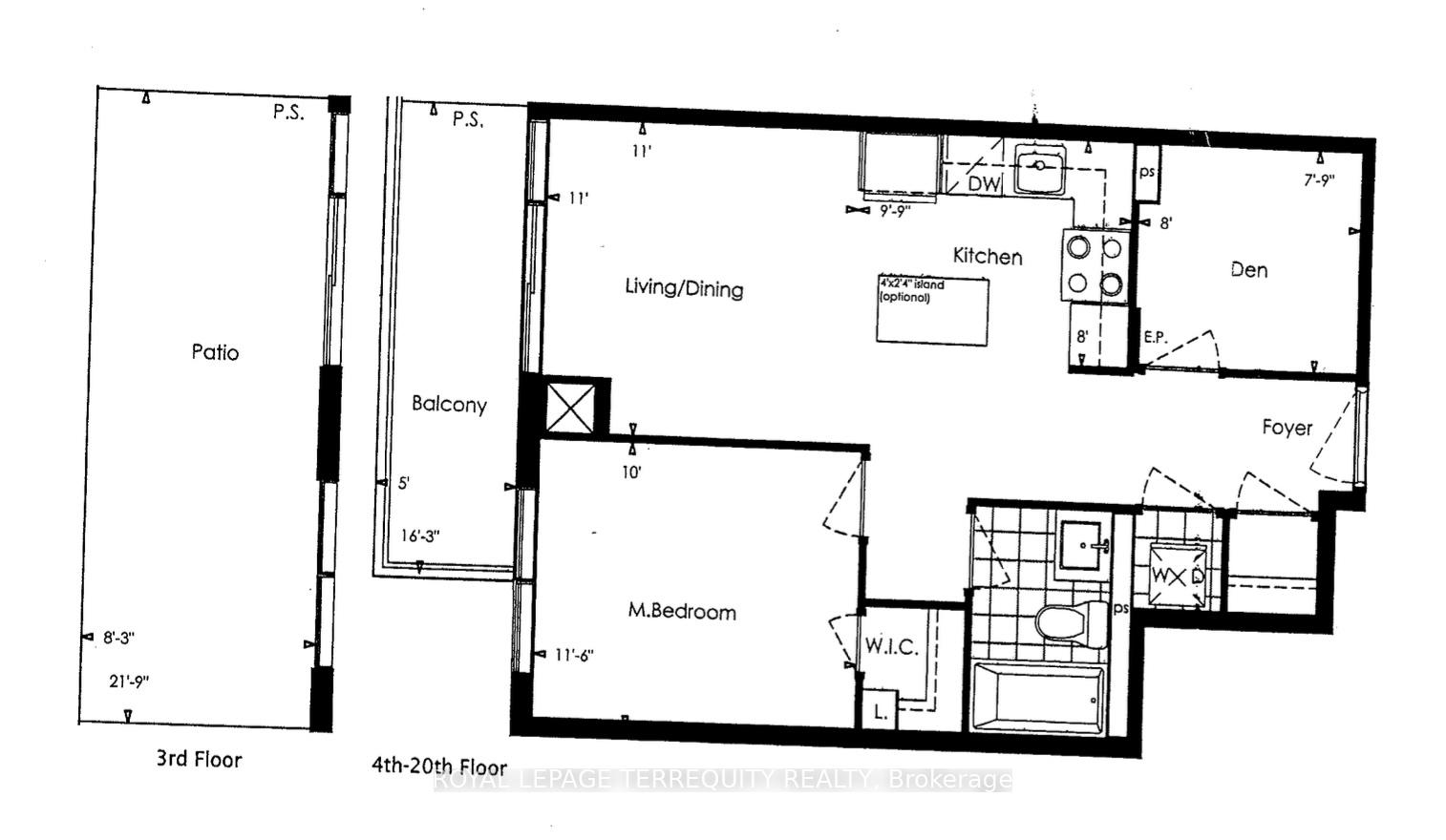
卢K西瑞斯·永·帕K 二号公寓由Pemberton建造,年仅两多岁,明亮而宽敞的一间卧室有地穴(密度足够大,可作第二间卧室并作为一个单独的房间),635平方英尺的室内空间外加180平方英尺的露台空间,无所阻碍,阳光明媚的西方取景.厨房提供不锈钢电器、石英柜台、站台灯光下、玻璃瓦倒斜、铺平地上、9英尺平整的天花板和在卧室的壁橱中行走、从地上到天花板的窗户、露台的户外水龙头、地下停车场和储物柜。大楼提供24个客房,游客停车,健身房,聚会室,户外露台和烧烤区,宠物洗站,客房和现场管理.快速步行至Langstaff GO站,步行距离至永爱街,公园,社区中心,学校,购物,娱乐,杂货,快速行驶至高速公路 7/407/404/400.(中文(简体))
主要特征
- 朝向: 西

- 睡房: 1+1

- 洗手间: 1

- 车库: 1

- 厨房: 1

重要信息
- 空间: 600-699

- 房龄: 0-5
- 管理费: $ 536.05

- 地税: $ 2154.06

- N12353030

- Listing contracted with: ROYAL LEPAGE TERREQUITY REALTY
| 房间 | 尺寸(平方米) | 细节描述 | |
|---|---|---|---|
| 厨房 | 3.00x2.36 | 石英台面, 不锈钢电器, 开放式概念 |
|
| 客厅 Rm | 3.48x3.32 | 合并餐饮, 复合地板, 走出式露台 |
|
| 晚餐室 Rm | 3.48x3.32 | 合并客厅, 复合地板, 西向 |
|
| 卧室 | 3.44x2.99 | , 复合地板, |
|
| 书房 | 2.31x2.00 | 独立房间, 复合地板, 平开门 |
| 卫生间 | 卫浴件数 | 所在楼层 | |
|---|---|---|---|
| 1间 | 4件套 | 主层 |
房屋简介
房屋位于YONGE AND HWY 7交界附近, 这间1房1卫单车库Condo Apt户型朝西向. #302-85 Oneida Cres拥有单停车位并带有一个室内储藏空间. 房屋及周边设施包括PrimaryBedroom-Main和CarpetFree等. .YongeParc Condos
85 Oneida Cres是由房地产建筑商Pemberton GroupPemberton Group has more than 50 years of rich experience in the real estate development field.
开发的, 物业年龄3年左右。该公寓大楼大约有19层202个单元。YongeParc Condos的设施包括用:前台服务,会客厅,桑拿房,宾客套房,健身房和访客停车位。每月物业管理费536.05加元包括用暖气,水和空调. 目前85 Oneida Cres大约有4间公寓在售2间在出租。 
















































