房屋信息
这座稀有宝石位于位于万锦历史村镇北主街68号的一幢神奇大厦内。这个北面的宽敞的2个床位加研究套房大约有9英尺的天花板,大约1,106 sF的奢侈品,地板到天花板的窗户,白色厨房还有2个步行出一个大阳台从生活室和餐厅。看起来像一个模范家和提供安乐:一个屋顶的帕提奥为那些惊人的烧烤',一个锻炼室,党室,和美妙的客服。这个9英尺天花板的小屋,非常安静的建筑群,走去购物,咖啡馆和美妙的餐厅。步行去GO火车站到多伦多,分钟从407ETR,公园,学校和更多!享受安大略省历史最悠久的社区之一的魅力和特点,同时远离现代的安逸。不要错过出局! span >
主要特征
- 朝向: 北

- 睡房: 2+1

- 洗手间: 2

- 车库: 1

- 厨房: 1

重要信息
- 空间: 1000-1199

- 房龄: New
- 管理费: $ 882.71

- 地税: $ 3435.90

- N12567658

- Listing contracted with: CENTURY 21 LEADING EDGE REALTY INC.
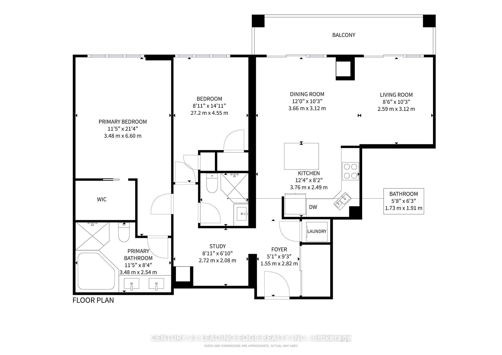
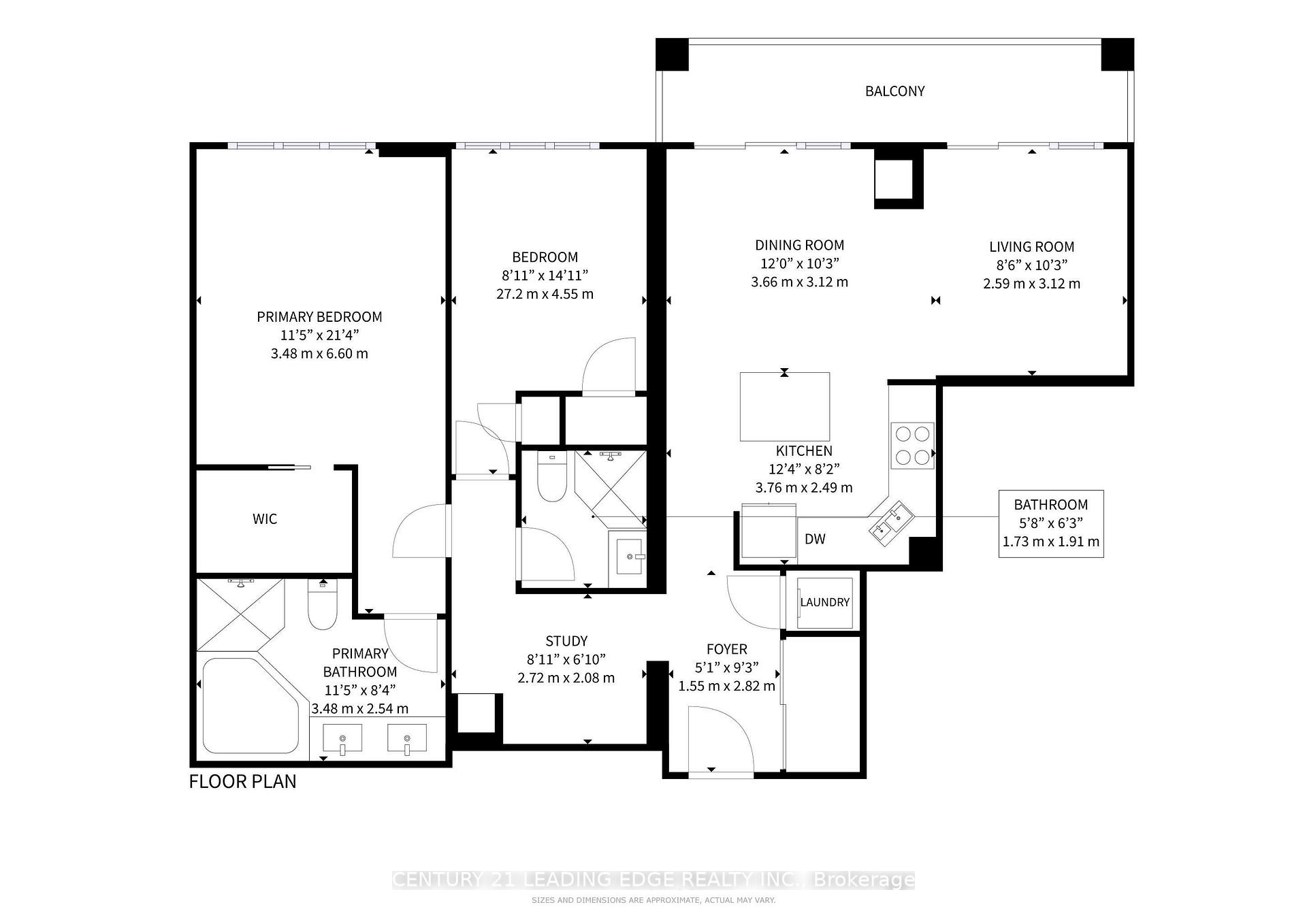
| 房间 | 尺寸(平方米) | 细节描述 | |
|---|---|---|---|
| 客厅 Rm | 3.12x2.59 | 合并餐饮, 硬木地板, 走出式阳台 |
|
| 晚餐室 Rm | 3.66x3.12 | 合并客厅, 硬木地板, 走出式阳台 |
|
| 厨房 | 2.49x3.76 | 开放式概念, 不锈钢电器, 中心岛 |
|
| Primary B | 6.60x3.48 | 5pcs卫生间套间, , 北向 |
|
| 第二间卧室 | 4.55x2.72 | 壁橱, 窗户, 北向 |
|
| 学习室 | 2.72x2.08 | 开放式概念, 硬木地板 |
| 卫生间 | 卫浴件数 | 所在楼层 | |
|---|---|---|---|
| 1间 | 3件套 | 主层 |
|
| 1间 | 5件套 | 主层 |
房屋简介
房屋位于Hwy.7 and Markham Rd.交界附近, 这间2房2卫单车库Condo Apt户型朝北向. #232-68 Main St N拥有单停车位. 房屋及周边设施包括CarpetFree等. 客厅 Rm, 晚餐室 Rm, 厨房, Primary B, 第二间卧室和 学习室在一层.68 Main Street North Condos
68 Main St N是由房地产建筑商Sierra Building Group开发的, 物业年龄11年左右。该公寓大楼大约有6层143个单元。68 Main Street North Condos的设施包括用:宾客套房,前台服务,会客厅,访客停车位和屋顶花园。每月物业管理费882.71加元包括用暖气,水和空调. 目前68 Main St N大约有5间公寓在售2间在出租。学校信息
- Franklin Street 公立小学 (年级: 3-8) 97/3037
- Markham District 公立高中 (年级: 9-12) 130/739
- Milliken Mills 公立高中 (年级: 9-12) 16/746
- 於人村中学 (年级: 9-12) 12/739
- St. Patrick (Markham) 天主教小学 (年级: JK-8) 766/3037
- St. Justin Martyr 天主教小学 (年级: JK-8) 1/3037
- St. Brother Andre 天主教 公立高中 (年级: 9-12) 281/739
- Reesor Park 公立小学 (年级: 1-2) 766/3037
- Bill Hogarth 公立中学 (年级: 9-11) 42/739
- St. Edward 天主教小学 (年级: 1-8) 796/3037

















































