房屋信息
豪华的河道上镇公寓在主要万锦於人村/万锦中心,例外的一卧室+媒体/研究布局,提供两种功能还有风格。位于曼联维尔的心脏。世界级的安乐设施包括24Hour安保,室内游泳池,健身中心,精英会所等.无敌位置与方便进入高速公路 7,407,404公共中转。第一万锦地点,顶尖学校,全食,超级市场,银行,美食,公园,Cineplex,商店和更多,必须看到...
主要特征
- 朝向: 东

- 睡房: 1+1

- 洗手间: 1

- 车库: 1

- 厨房: 1

重要信息
- 空间: 600-699

- 房龄: 6-10
- 管理费: $ 499.74

- 地税: $ 2203.00

- N12415000

- Listing contracted with: VIP BAY REALTY INC.
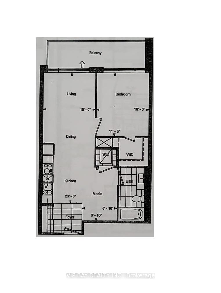
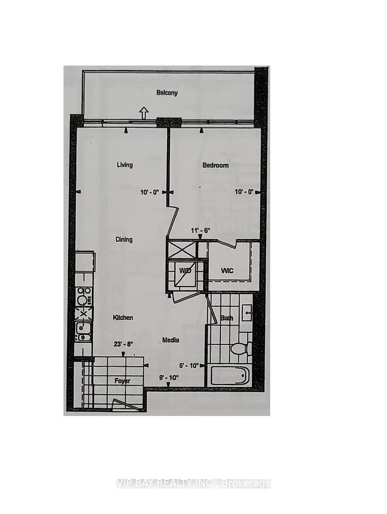
| 房间 | 尺寸(平方米) | 细节描述 | |
|---|---|---|---|
| 客厅 Rm | x | 复合地板, 合并餐饮, 走出式阳台 |
|
| 晚餐室 Rm | x | 复合地板, 合并客厅, 开放式概念 |
|
| 厨房 | x | 复合地板, 现代厨房, 不锈钢电器 |
|
| Primary B | x | 复合地板, , 大窗 |
|
| Media Rm | x | 复合地板, 开放式概念 |
| 卫生间 | 卫浴件数 | 所在楼层 | |
|---|---|---|---|
| 1间 | 4件套 | 主层 |
房屋简介
房屋位于Hwy 7 and Warden交界附近, 这间1房1卫单车库Condo Apt户型朝东向. #1103-18 Uptown Dr拥有单停车位并带有一个室内储藏空间. 房屋及周边设施包括CarpetFree和Storage等. .Uptown Markham River Walk Building A
18 Uptown Dr是由房地产建筑商Times GroupFounded in 1985, Times Group is a real estate developer with a long history.
开发的, 物业年龄10年左右。该公寓大楼大约有20层312个单元。Uptown Markham River Walk Building A的设施包括用:健身房,24/7前台服务&保安,室内游泳池,会客厅,访客停车位,宾客套房和台球室。每月物业管理费499.74加元包括用暖气和空调. 目前18 Uptown Dr大约有7间公寓在售3间在出租。 学校信息
- James Robinson 公立小学 (年级: JK-8) 1195/3037
- Markville 公立中学 (年级: 9-12) 2/739
- St. John XXIII 天主教小学 (年级: 1-8) 70/3037
- St. Augustine 天主教 公立高中 (年级: 9-12) 12/739
- Coppard Glen 公立小学 (年级: 1-1) 766/3037
- Milliken Mills 公立小学 (年级: 2-8) 392/3037
- Pierre Elliott Trudeau 公立高中 (年级: 9-12) 12/739

















































