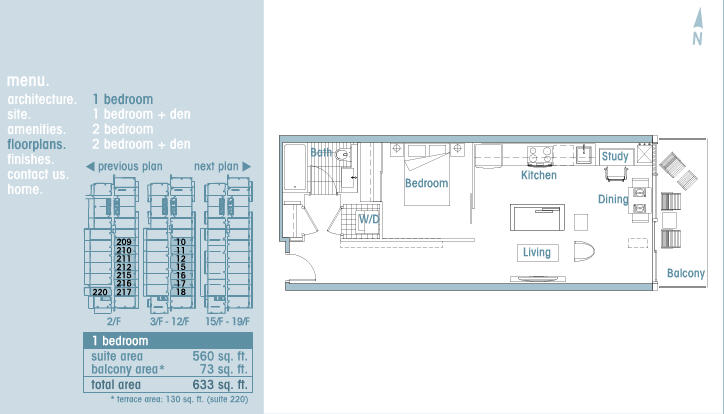
Features
- Facing: East

- Bedrooms: 1

- Bathrooms: 1

- Space:500-599

Details
- Garages: 0

- Lockers:None

- C12986268

Available Floor Plan
Neo
Built Year: 2008Developer:
ConcordConcord Adex Development Co., Ltd. (Concord Adex) is a subsidiary of Concord Adex Pacific Group Inc. Concord World Expo was established in 1987 and headquartered in Vancouver.
Condo fee includes: Water, Heat, Air Conditioning
Amenities include: Gym, Concierge, Party/Meeting Room, Guest Suite, Indoor Pool, Visitor Parking

