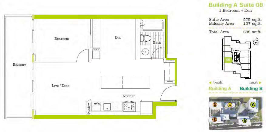
Features
- Facing: West

- Bedrooms: 1+1

- Bathrooms: 1

- Space:500-599

Details
- Garages: 1

- Lockers:Owned

- Possession: 2026-01-25 05:00:00
- C12660774

Available Floor Plan
Discovery
Built Year: 2011Developer:
ConcordConcord Adex Development Co., Ltd. (Concord Adex) is a subsidiary of Concord Adex Pacific Group Inc. Concord World Expo was established in 1987 and headquartered in Vancouver.
Condo fee includes: Heat, Water, CAC
Amenities include: Gym, Concierge, Guest Suite, Party/Meeting Room, Visitor Parking, Rooftop Deck/Garden, Indoor Pool, Sauna, Basketball Court

