Features
- Facing: West

- Bedrooms: 2

- Bathrooms: 2

- Space:700-799

Details
- Garages: 1

- Lockers:Owned

- Possession: 2025-10-01 04:00:00
- C12418213

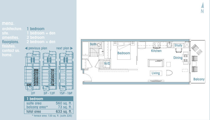
Available Floor Plan
Neo
Built Year: 2008Developer:
ConcordConcord Adex Development Co., Ltd. (Concord Adex) is a subsidiary of Concord Adex Pacific Group Inc. Concord World Expo was established in 1987 and headquartered in Vancouver.
Condo fee includes: Water, Heat, Air Conditioning
Amenities include: Gym, Concierge, Party/Meeting Room, Guest Suite, Indoor Pool, Visitor Parking

