Features
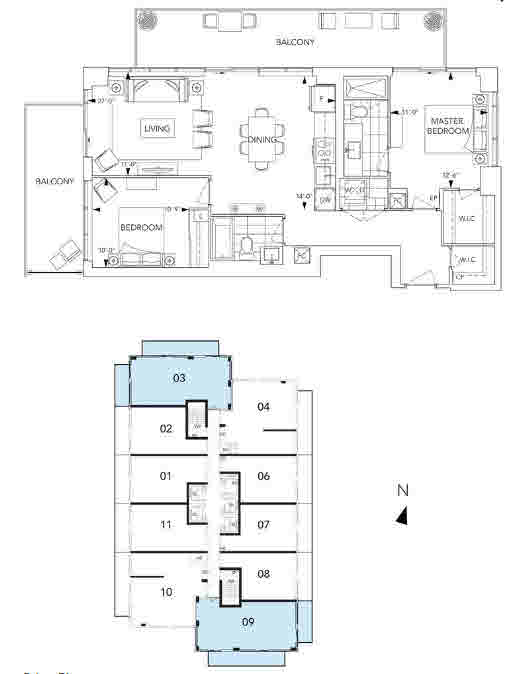
- Facing: South East

- Bedrooms: 2

- Bathrooms: 2

- Space:1000-1199

Details
- Garages: 1

- Lockers:None

- C12299523

Available Floor Plan
Auberge On The Park Tower 1
Built Year: 2024Developer:
TridelRecognized as the number one high-rise condo builder in the Greater Toronto Area, Tridel's design, quality, scale, capital, and service are considered top-notch.
Condo fee includes:
Amenities include: Concierge, Gym, Media Room, Outdoor Pool, Party/Meeting Room

