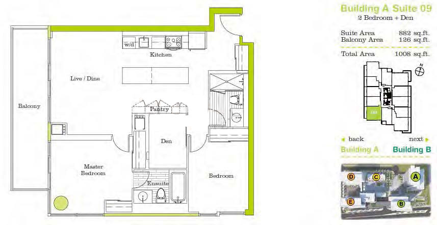
Features
- Facing: South West

- Bedrooms: 2+1

- Bathrooms: 2

- Space:1000-1199

Details
- Garages: 1

- Lockers:Owned

- Possession: 2025-07-03 04:00:00
- C12259927

Available Floor Plan
Discovery
Built Year: 2011Developer:
ConcordConcord Adex Development Co., Ltd. (Concord Adex) is a subsidiary of Concord Adex Pacific Group Inc. Concord World Expo was established in 1987 and headquartered in Vancouver.
Condo fee includes: Heat, Water, CAC
Amenities include: Gym, Concierge, Guest Suite, Party/Meeting Room, Visitor Parking, Rooftop Deck/Garden, Indoor Pool, Sauna, Basketball Court

