Description
Rarely offered, this 3-bedroom, 3-bathroom freehold townhome offers nearly 2,000 sq. ft. of contemporary living space with parking. Step into an elegant home featuring 9 ft ceilings in the living room, hardwood floors, and a gas fireplace. The modern S/S appliances, granite countertops, designer cabinetry, and a custom backsplash. The primary retreat impresses with a private balcony, custom walk-in closet, and a spa-like 5-piece ensuite with double sinks, glass shower, and soaker tub. Additional highlights include a second-floor laundry with utility sink, granite vanities, and a bright south-facing terrace perfect for relaxation. This desirable unit offers direct access to the community playground and is ideally located near subway, plazas, banks, restaurants, top-rated schools, and major highways.
Features
- Facing: South

- Bedrooms: 3

- Bathrooms: 3

- Garages: 1

- Kitchens: 1

Details
- Lot size: 14.99 x 50.33 Feet

- Space: 1500-2000

- Tax: $ 6289.09

- C12817714

- Listing contracted with: CENTURY 21 MYPRO REALTY
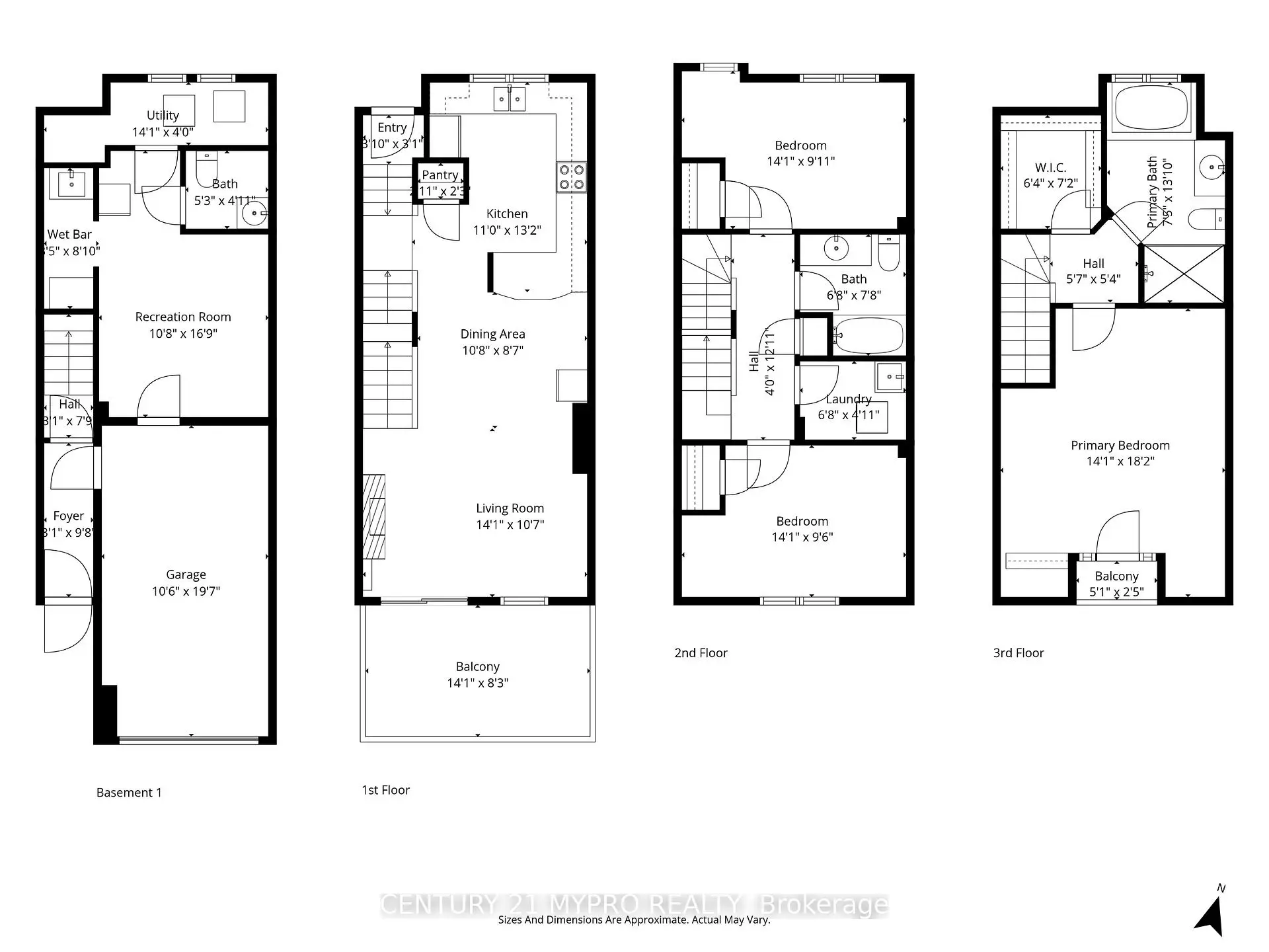
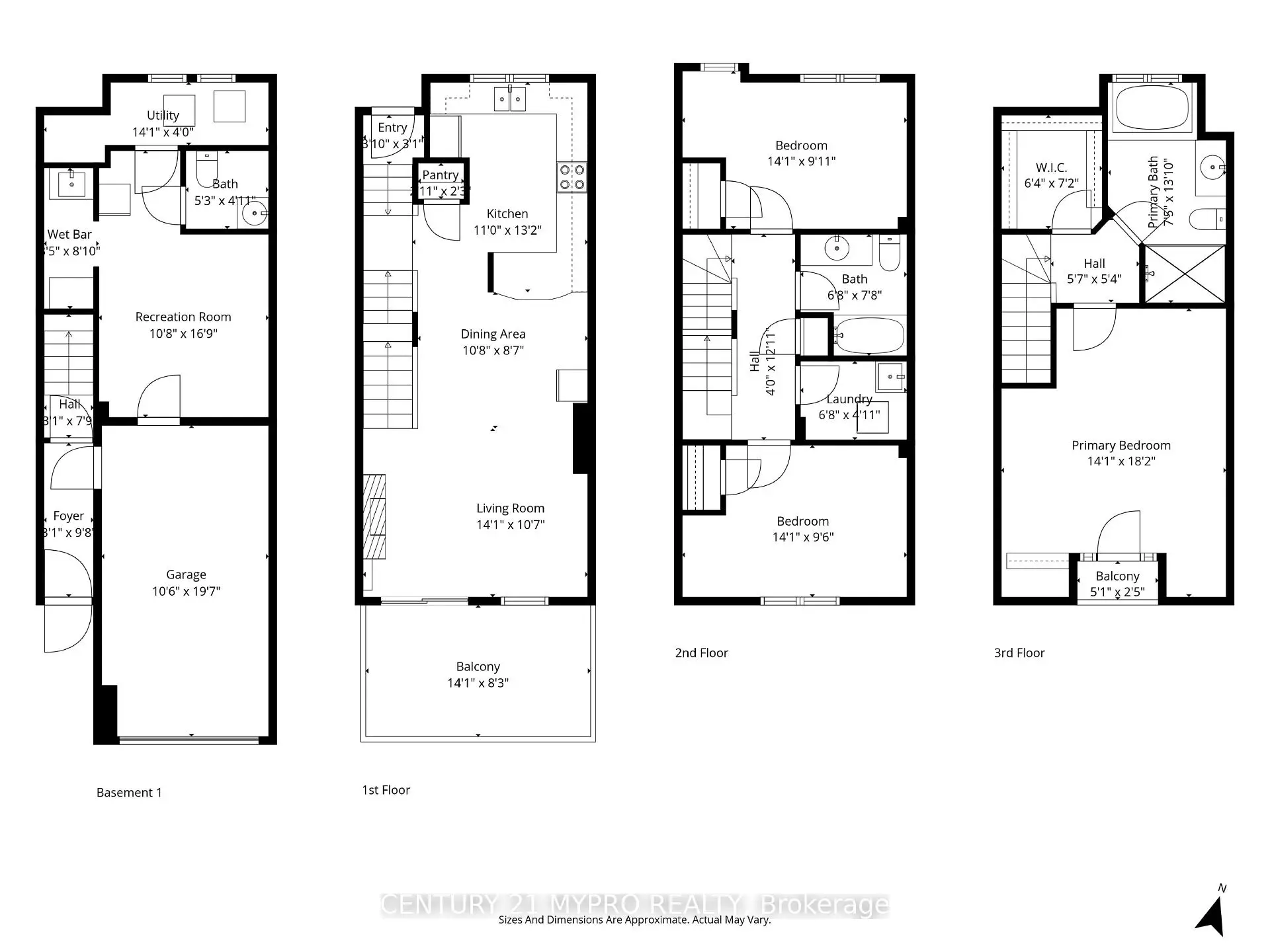
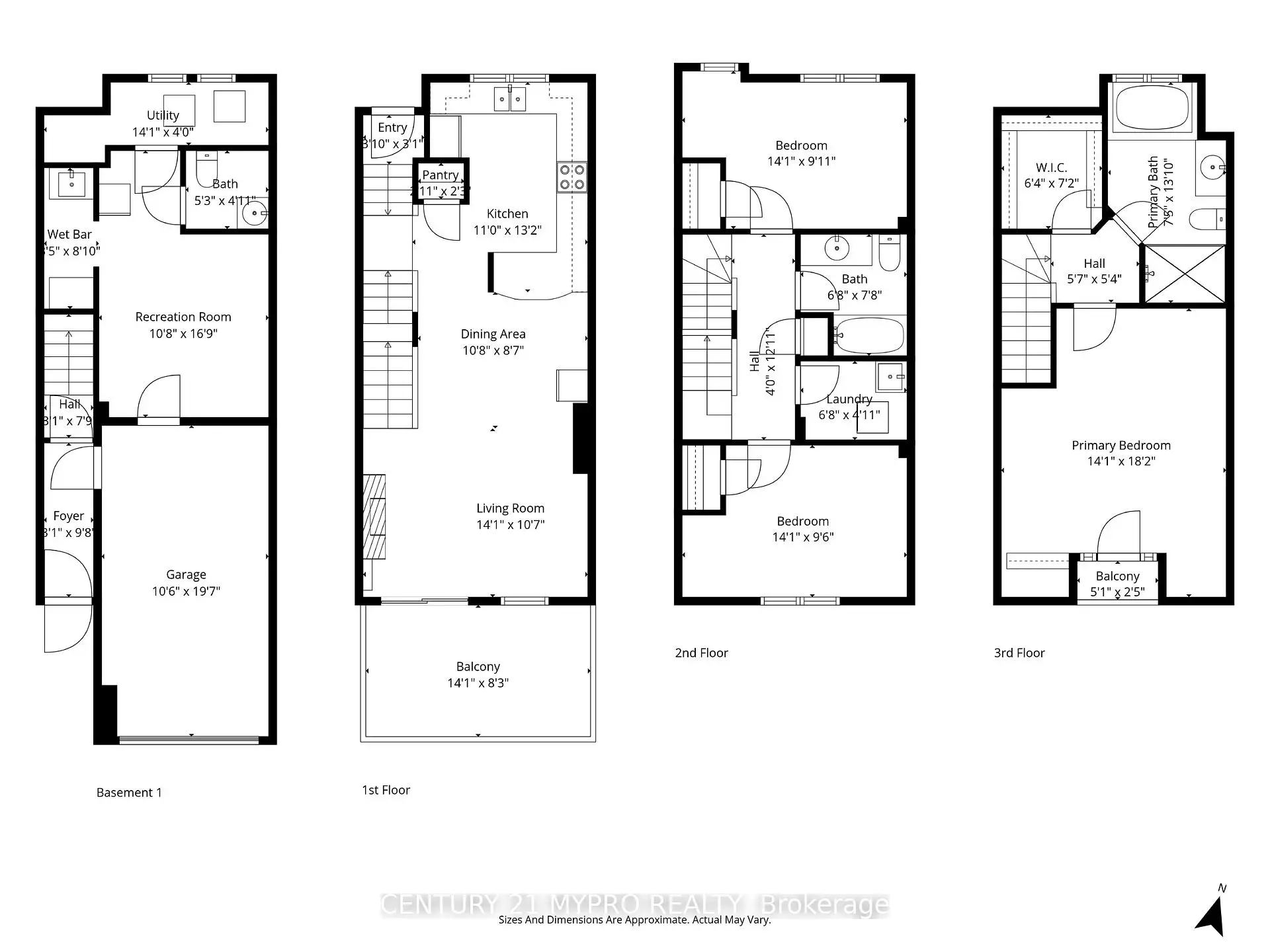
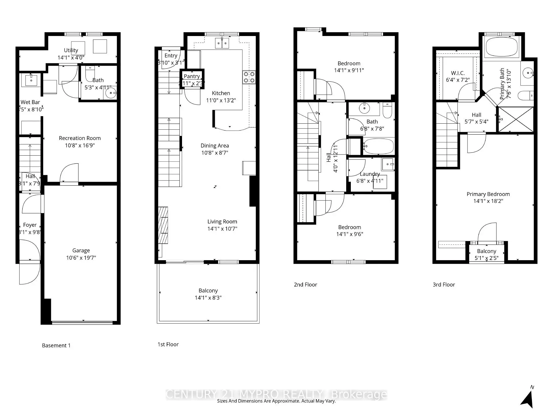
| Room | Size(M) | Description | |
|---|---|---|---|
| Living Rm | 5.97x4.36 | Combined w/Dining, Hardwood Floor, W/O To Balcony |
|
| Dining Rm | 5.97x4.36 | Combined w/Living, Hardwood Floor, Open Concept |
|
| Kitchen | 3.96x3.35 | Overlooks Frontyard, Granite Counters, Ceramic Floor |
|
| 2nd Br | 4.34x3.28 | Overlooks Backyard, Closet, Broadloom |
|
| 3rd Br | 4.34x2.74 | Overlooks Frontyard, Closet, Broadloom |
|
| Primary B | 5.05x4.37 | 5 Pc Bath, W/O To Balcony, Walk-In Closet(s) |
| Bathroom | Pieces | Level | |
|---|---|---|---|
| 1xBath | 4 pcs | Second |
|
| 1xBath | 5 pcs | Third |
|
| 1xBath | 3 pcs | Ground |
Property Summary
Located close to the intersection of Finch Ave E & Willowdale Ave, 175B Finch Ave E is a 3 bedrooms 3 washrooms Freehold Townhouse. The unit has a Single Attached Parking Space. The property has many nice features including On Demand Water Heater. Living Room Rm, Dinning Room Rm and Kitchen are on the Main floor.School Information
Elementary Schools
-
Home schoolDistance to school: 0.6 km (~12 min walk)
-
Home schoolDistance to school: 0.6 km (~11 min walk)
Secondary Schools
-
Home schoolRank: 474/746 (Score: 5.5) 5 year average: 436/746 (Score: 5.5)Distance to school: 4.1 km (~12 min drive)
-
St. Josephs Morrow Park (Grade: 9-12)
Catholic School
Distance to school: 1.3 km (~24 min walk) -
Brebeuf (Grade: 9-12)
Catholic AP program school
Rank: 323/746 (Score: 6.3) 5 year average: 372/746 (Score: 5.9)Distance to school: 2.0 km (~36 min walk)





























