Description
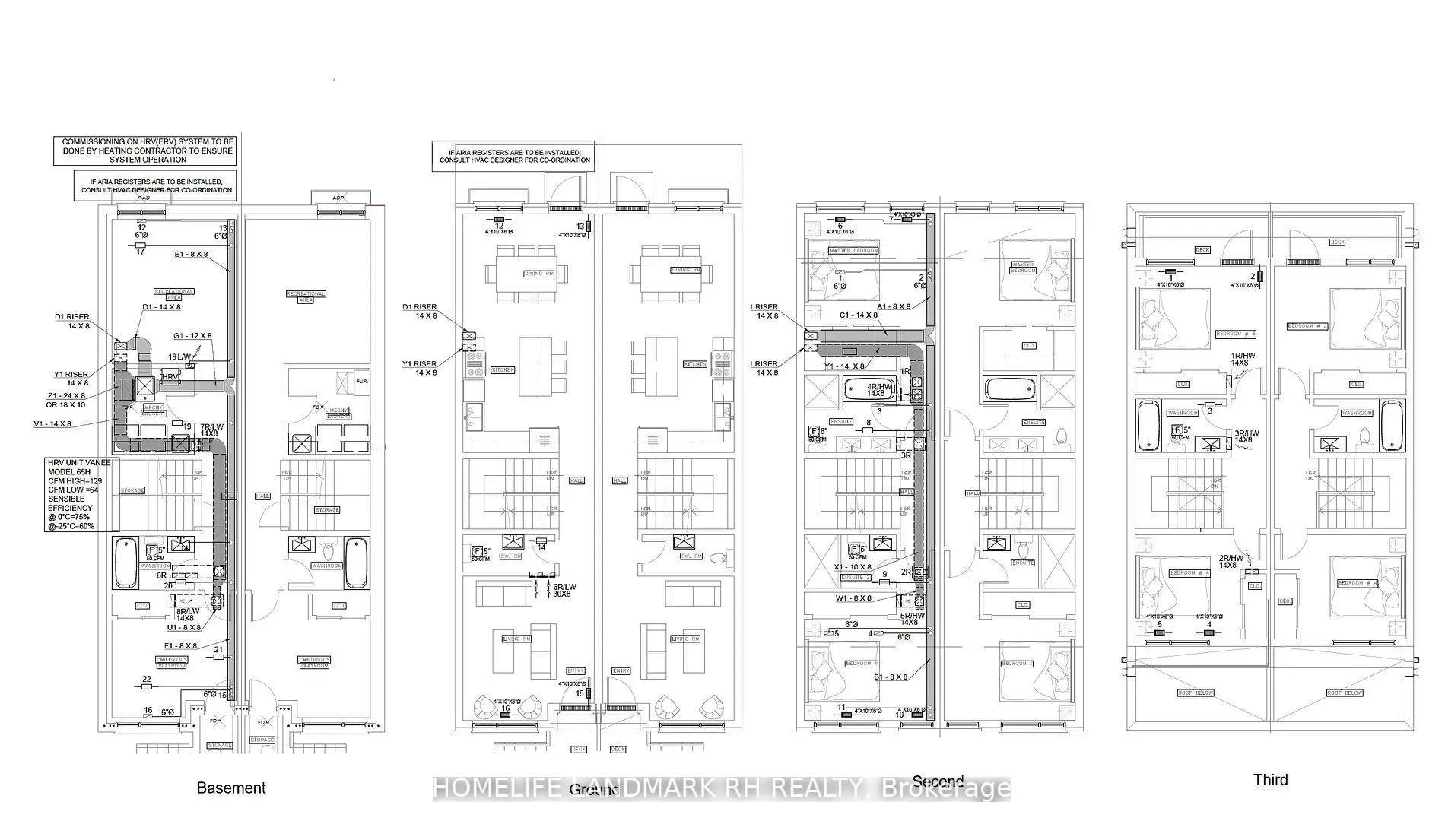
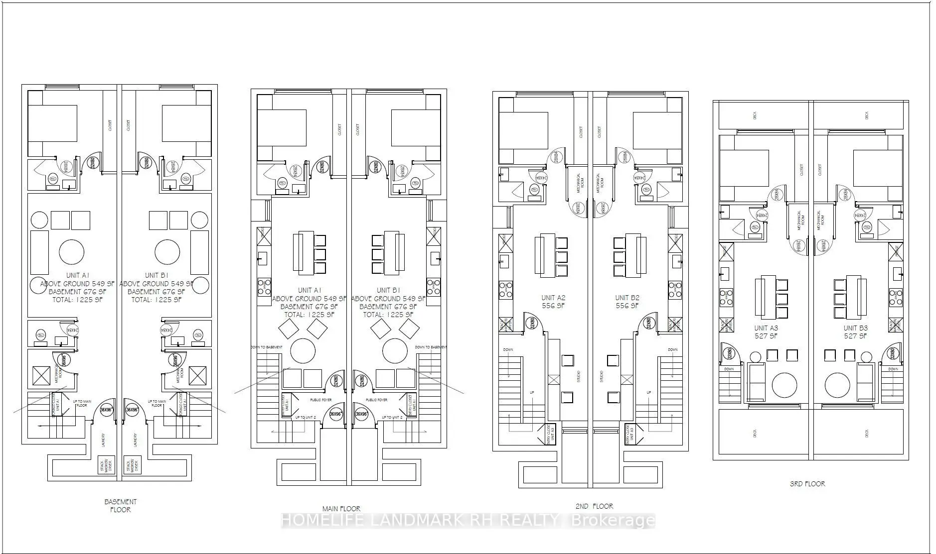
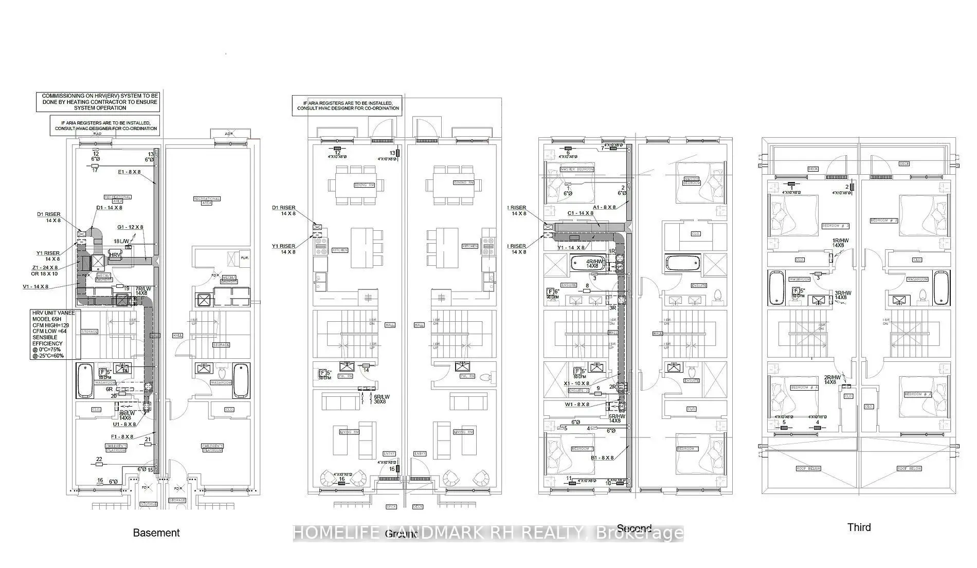
Detached Bungalow In High Demand Location in Downtown East - Dundas / Broadview. Your Dream Home - 2 Semis @ 30' X 75' Feet Lot. Building Permit Ready with Drawing: 9' Ceiling On Main, 8.5' on the 2nd & 3rd Floor. 8' in the Bsmt. Also has potential to change to multiplex up to 6 units (new Toronto zoning). Steps to Public Transit & Shopping. Close To VVP & All Amenities. Good For End User & Investor. ** Drawings Provided By Seller, Just For Reference** Property is not livable, it's being Sold " As Is Where Is".
Features
- Facing: North

- Bedrooms:

- Bathrooms:

- Garages:

- Kitchens:

Details
- Lot size: 30.00 x 75.00 Feet

- Space: 700-1100

- Tax: $ 6779.24

- E12753728

- Listing contracted with: HOMELIFE LANDMARK RH REALTY
Property Summary
Located close to the intersection of Broadview and Dundas, 70 Allen Ave is a bedrooms washrooms Detached. The property has many nice features including None. .School Information
- Dundas Junior Public School (Grade:JK-5)
- Queen Alexandra Middle School (Grade:6-8)
- Riverdale Collegiate Institute (Grade:9-12) 111/739
- Holy Name Catholic School (Grade:JK-8) 1409/3037
- Dundas Junior Public School (Grade:JK-5)
- Queen Alexandra Middle School (Grade:6-8)

























