Description
Welcome to 120 Lake Woods Drive located in the prestigious Camelot Estates. The home is situated on over 6 acres of land, and includes a main residence as well as secondary quarters perfect for a nanny suite, multi generational living or even rental income. The main residence comes with a professionally upgraded and custom kitchen with top of the line appliances including built in units. In addition to the two car garages, a separate stand alone utility garage is affixed to the property offering more storage space and uses. Practice your chipping and putting at the backyard putting green while enjoying the tranquility of the property. The opportunities to make your dreams come true with this home are endless.
Features
- Facing: South

- Bedrooms: 4

- Bathrooms: 4

- Garages: 8

- Kitchens: 1

Details
- Lot size: 830.21 x 235.94 Feet

- Space: 3500-5000

- Tax: $ 10652.00

- N12343558

- Listing contracted with: SUTTON GROUP-ADMIRAL REALTY INC.
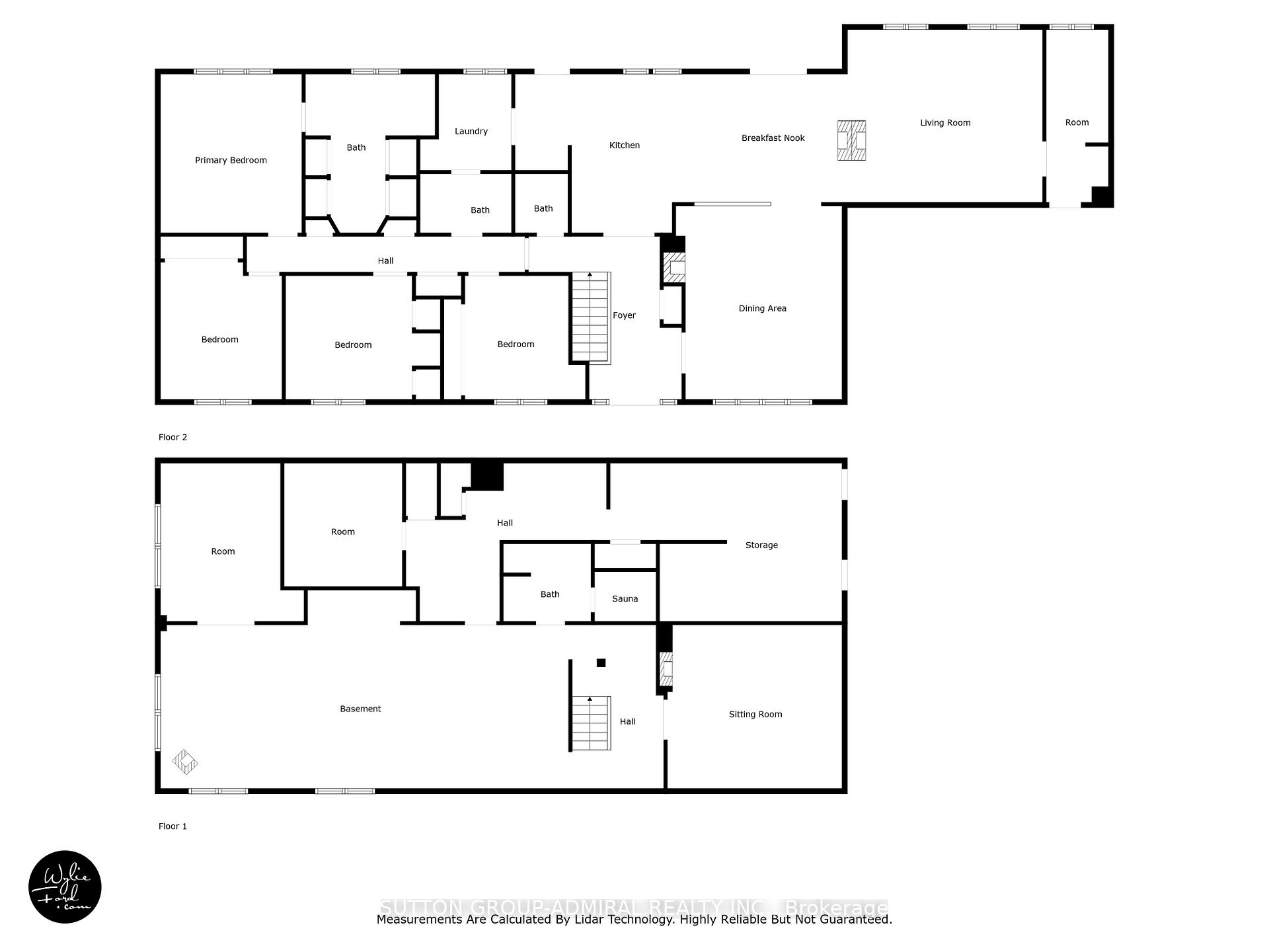
| Room | Size(M) | Description | |
|---|---|---|---|
| Primary B | 4.46x3.96 | Hardwood Floor, Ensuite Bath, Walk-In Closet(s) |
|
| Br | 3.61x3.38 | Hardwood Floor |
|
| 2nd Br | 3.74x3.49 | Hardwood Floor |
|
| 3rd Br | 3.48x2.93 | Hardwood Floor |
|
| Foyer | 4.50x1.93 | Tile Floor |
|
| Dining Rm | 5.40x4.34 | Hardwood Floor, Fireplace |
|
| Living Rm | 5.06x4.83 | Hardwood Floor, Fireplace |
|
| Laundry | 2.71x1.93 | ||
| Kitchen | 6.74x3.70 | Tile Floor, Quartz Counter |
|
| Mud Rm | 4.86x1.70 | ||
| Living Rm | 4.47x4.40 | Fireplace |
|
| Exercise | 11.30x4.40 | Fireplace, Vinyl Floor |
| Bathroom | Pieces | Level | |
|---|---|---|---|
| 2xBaths | 4 pcs | Main |
|
| 1xBath | 2 pcs | Main |
|
| 3xBaths | 2 pcs | Main |
|
| 1xBath | 4 pcs | Basement |












































