Description
Detached two-story home in the heart of Corso Italia with potential to build an income generating laneway suite. The home's striking exterior facade features designer Shou Sugi Ban wood siding, added in 2021 using a traditional charring process that creates a durable, long-lasting, and beautifully preserved finish. From there you step inside to a welcoming entryway leading to the living and dining areas, complete with luxury vinyl flooring throughout. The spacious kitchen features porcelain flooring, quartz countertops, a centre island, and a convenient stackable washer/dryer closet in addition to a separate basement laundry room. The kitchen's back wall showcases an extra large window/sliding door that walk out to a south-facing backyard. Main floor windows have contemporary roller blinds, some motorized. The second floor offers warm hardwood flooring throughout and three well-sized bedrooms. The primary bedroom includes a walk-out to a private south-facing balcony. The finished basement, complete with luxury vinyl flooring, includes a separate entrance from the backyard, its own laundry room, a bedroom/living area, and a separate kitchen. Just a two-minute walk to St. Clair for easy access to public transit, restaurants, coffee shops, parks and recreation/community centre. With its bright spaces, flexible layout, and vibrant neighbourhood, this home would be a wonderful place for you and your family to settle in and truly feel at home. EXTRAS*** Seller will provide architectural, plumbing and HVAC drawings for building a laneway suite above the garage. Permits were previously approved by the city and can be reapplied for anytime by the buyer. In 2021 seller replaced all windows, added new privacy fence, upgraded electrical panel to 200 amps, installing new wiring while replacing all knob & tube. All work was properly performed with permit. New garage door & opener 2025. Seller also re-insulated home through the Canada Greener Homes Program.
Features
- Facing: South

- Bedrooms: 3

- Bathrooms: 2

- Garages: 2

- Kitchens: 1

Details
- Lot size: 18.00 x 120.00 Feet

- Space: 1100-1500

- Tax: $ 5377.00

- W13046700

- Listing contracted with: ROYAL LEPAGE REAL ESTATE SERVICES LTD.
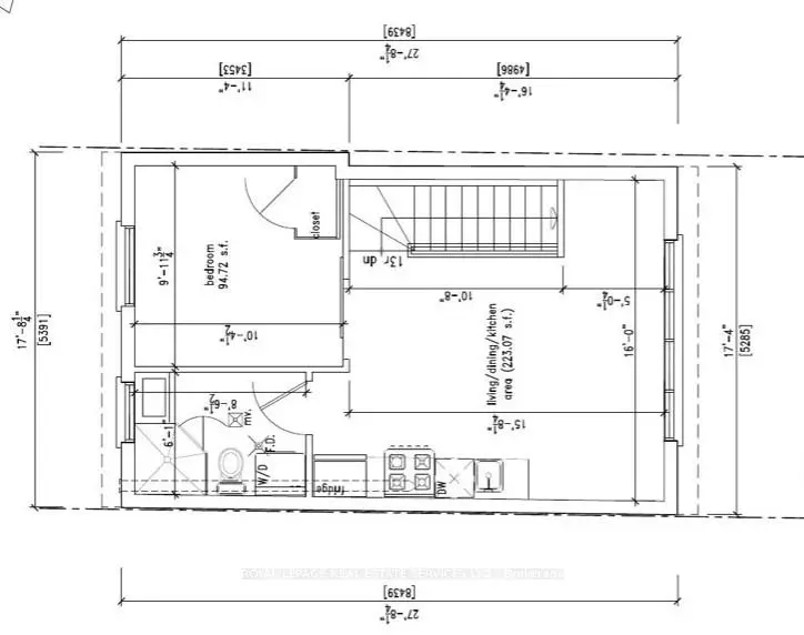
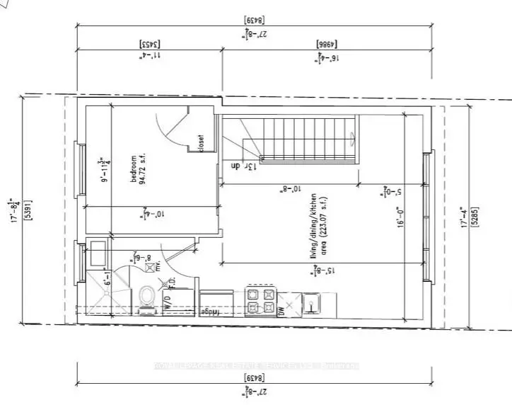
| Room | Size(M) | Description | |
|---|---|---|---|
| Living Rm | 3.35x2.75 | Vinyl Floor, Large Window |
|
| Dining Rm | 3.66x3.15 | Vinyl Floor, B/I Bookcase |
|
| Kitchen | 5.11x3.96 | Sliding Doors, Porcelain Floor, Quartz Counter |
|
| Foyer | 3.58x1.04 | Vinyl Floor |
|
| Br | 4.04x3.40 | Hardwood Floor, W/O To Balcony, Sliding Doors |
|
| 2nd Br | 3.96x3.33 | Hardwood Floor |
|
| 3rd Br | 3.56x2.39 | Hardwood Floor |
|
| Kitchen | 4.80x3.66 | Vinyl Floor, Walk-Out |
|
| Br | 6.76x2.49 | Vinyl Floor, Combined w/Living |
|
| Laundry | 2.27x1.31 |
| Bathroom | Pieces | Level | |
|---|---|---|---|
| 1xBath | 4 pcs | Second |
|
| 1xBath | 3 pcs | Basement |
Property Summary
Located close to the intersection of St. Clair Ave & Dufferin St, 97 Ascot Ave is a 3+1 bedrooms 2 washrooms Detached. The unit has a Double Detached Parking Spaces. The property has many nice features including Auto Garage Door Remot. Living Room Rm, Dinning Room Rm, Kitchen and Foyer are on the Main floor.School Information
- Rawlinson Community School (Grade:JK-8) 2170/3037
- Oakwood Collegiate Institute (Grade:9-12) 727/739
- Western Technical-Commercial School (Grade:9-12)
- Stella Maris Catholic School (Grade:JK-8) 2364/3037
- Rawlinson Community School (Grade:JK-8) 2170/3037
- J R Wilcox Community School (Grade:JK-8) 1277/3037
















































