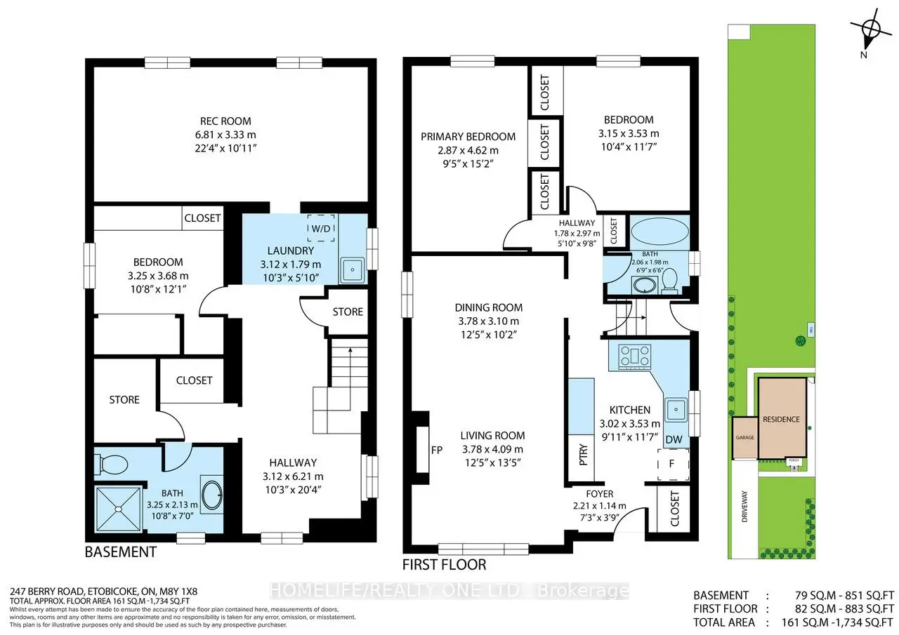
Description
Rare 45 x 287 ft ravine lot backing onto Berry Creek Park - one of only a handful of properties like this in the area. A true nature retreat in the city offering exceptional privacy and outstanding redevelopment potential (subject to municipal approvals) for builders/investors, or those looking to build a custom dream home in a high-demand neighbourhood. Located in prime Stonegate-Queensway, this well-maintained 2+1 bedroom, 2-bath bungalow sits on a premium ravine lot and includes a garage plus parking pad for 2 more cars. The main level features refinished hardwood floors throughout and a bright, open-concept living and dining area with gas fireplace. Most windows and all doors are newly-installed. The renovated kitchen offers stainless steel appliances, Quartz countertops, and a large pantry cabinet. The renovated lower level, with newer laminate flooring, is ideal for an in-law or nanny suite. It includes a spacious recreation room with above-grade windows, a finished bedroom with storage, a 3-piece large bath, and an open-concept laundry area. Families will appreciate walkable access to Park Lawn Junior Middle School and nearby parks. Minutes to the Gardiner Expressway, Humber River, and Mimico Creek Trail.
Features
- Facing: North

- Bedrooms: 2

- Bathrooms: 2

- Garages: 1

- Kitchens: 1

Details
- Lot size: 45.00 x 287.00 Feet

- Space: 700-1100

- Tax: $ 5527.46

- W12843962

- Listing contracted with: HOMELIFE/REALTY ONE LTD.
| Room | Size(M) | Description | |
|---|---|---|---|
| Living Rm | 6.96x3.65 | Hardwood Floor, Gas Fireplace, Combined w/Dining |
|
| Dining Rm | 6.96x3.65 | Hardwood Floor, Open Concept, Combined w/Living |
|
| Kitchen | 3.25x2.87 | Quartz Counter, Pantry, Stainless Steel Appl |
|
| Primary B | 4.49x2.84 | Large Window, Hardwood Floor, Closet |
|
| 2nd Br | 3.45x3.07 | Hardwood Floor, Large Window, Closet |
|
| Recreatio | 6.58x3.20 | Laminate, Renovated |
|
| Br | 3.38x3.48 | Laminate, Renovated, Closet |
|
| Laundry | 7.46x2.92 | Laminate, Open Concept |
| Bathroom | Pieces | Level | |
|---|---|---|---|
| 1xBath | 4 pcs | Main |
|
| 1xBath | 3 pcs | Basement |
Property Summary
Located close to the intersection of Berry Rd and Prince Edward, 247 Berry Rd is a 2+1 bedrooms 2 washrooms Detached. The unit has a Single Attached Parking Space. The property has many nice features including In-Law Suite and Carpet Free. Living Room Rm, Dinning Room Rm, Kitchen, Primary B and second bedroom are on the Main floor.School Information
- Park Lawn Junior Middle School (Grade:7-8) 766/3037
- Etobicoke Collegiate Institute (Grade:9-12) 330/739
- Martingrove Collegiate Institute (Grade:9-12) 281/739
- St. Mark Catholic School (Grade:JK-8) 630/3037
- St. Josaphat Catholic School (Grade:JK-8) 194/3046
- Islington Junior Middle School (Grade:JK-8) 1048/3037
- Second Street Junior Middle School (Grade:JK-8) 1409/3037
















































