Description
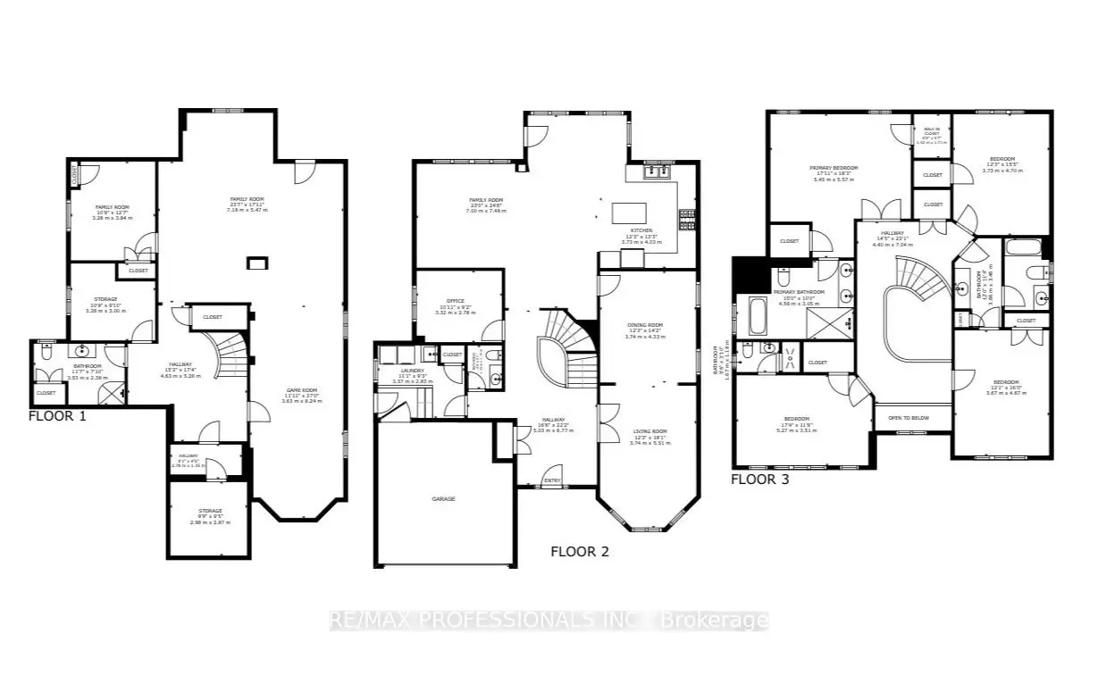
A perfect family home on a large (50 x 150) lot in the desirable Chestnut Hills neighbourhood. This 4 Bedroom home is meticulously maintained and has been in the same family for 25 years. Built in 2000, this custom all-brick home boasts over 3200 of above grade sq feet + 1500 sq feet in the lower level. The main floor features hardwood flooring throughout, a welcoming foyer with spiral oak staircase, formal dining and living room, a separate office/den(+) and large open concept kitchen & family room overlooking the landscaped yard with towering/mature trees. Powder room and large laundry area on main floor with separate exits to garage and side yard. The upper level features 4 large bedrooms + 3 full bathrooms. The primary bedroom features his and hers walk-in closets and a 5-piece ensuite bathroom with heated flooring. The 2nd and 3rd bedrooms feature large closets and access to a large jack and jill 4-piece washroom. The 4th bedroom features a 3 piece ensuite bathroom - perfect for guests/ in-law or nanny suite. A functional and efficient layout! (see floor plan and virtual tour) The lower level was professionally finished - the perfect man cave! Large rec room/family room area + games room and features a walk-out to yard, additional bedroom with closet, large 3 piece washroom, cold room with sump pump + tons of storage space! *New (2024) Heat Pump- efficient duel system heat & ac + furnace. *All updated insulation in Attic (2024) Conveniently located on Dundas and does sit back from the road offering a large 8+ car driveway with stamped concrete walkways. The setting in the backyard is stunning with large/mature trees, custom three-tiered deck, sand box, fully fenced and landscaped. Located in the luxurious Edenbridge/Humber Valley Community and nestled in the catchment of one of the best school districts in the GTA - close to Our Lady of Sorrows, Kingsway College School, ECI and more. Close to Humbertown Park and Shops, quick access to TTC and GO Transit & more!
Features
- Facing: North

- Bedrooms: 4

- Bathrooms: 5

- Garages: 2

- Kitchens: 1

Details
- Lot size: 50.00 x 150.00 Feet

- Space: 3000-3500

- Tax: $ 12163.00

- W12733620

- Listing contracted with: RE/MAX PROFESSIONALS INC.
| Room | Size(M) | Description | |
|---|---|---|---|
| Living Rm | 5.51x3.74 | Combined w/Dining, Hardwood Floor |
|
| Dining Rm | 4.33x3.74 | Combined w/Living, Hardwood Floor |
|
| Kitchen | 4.03x3.73 | Open Concept, Combined w/Family, Centre Island |
|
| Family Rm | 7.48x7.00 | Open Concept, Combined w/Kitchen |
|
| Office | 3.32x2.78 | Hardwood Floor, Window |
|
| Laundry | 3.37x2.83 | W/O To Garage, W/O To Yard, Ceramic Floor |
|
| Primary B | 5.57x5.45 | Hardwood Floor, 5 Pc Ensuite, His and Hers Closets |
|
| 2nd Br | 4.70x3.73 | Walk-In Closet(s), Hardwood Floor, Semi Ensuite |
|
| 3rd Br | 4.87x3.67 | Double Closet, Hardwood Floor, Semi Ensuite |
|
| 4th Br | 5.27x3.51 | Double Closet, 3 Pc Ensuite, Hardwood Floor |
|
| Recreatio | 7.18x5.47 | Laminate, W/O To Yard, Open Concept |
|
| Game Rm | 8.24x3.63 | Open Concept, Laminate |
| Bathroom | Pieces | Level | |
|---|---|---|---|
| 1xBath | 2 pcs | Main |
|
| 1xBath | 5 pcs | Upper |
|
| 1xBath | 4 pcs | Upper |
|
| 1xBath | 3 pcs | Upper |
|
| 1xBath | 3 pcs | Lower |
Property Summary
Located close to the intersection of Dundas St W and Islington Ave, 4662 Dundas St W is a 4+2 bedrooms 5 washrooms Detached. The unit has a Double Attached Parking Spaces. The property has many nice features including Water Heater Owned, Sump Pump, Central Vacuum, Carpet Free and Auto Garage Door Remot. Living Room Rm, Dinning Room Rm, Kitchen, Family Room Rm, Office and Laundry are on the Main floor; Primary B, second bedroom, third bedroom and fourth bedroom are on the upper floor; Recreation Roomreatio and Game Rm are on the Lower floor.School Information
Elementary Schools
-
Home schoolRank: 1366 out of 3022 (Score: 6.3)Distance to school: 0.9 km (~16 min walk)
-
OUR LADY OF SORROWS (Grade: JK - 8)
Catholic French Immersion school
Rank: 337 out of 3022 (Score: 8.0)Distance to school: 0.8 km (~15 min walk) -
OUR LADY OF PEACE (Grade: JK - 8)
Catholic French Immersion school
Rank: 489 out of 3022 (Score: 5.4) 5 year average: 451/3022 (Score: 5.4)Distance to school: 1.7 km (~30 min walk) -
JOSYF CARDINAL SLIPYJ (Grade: JK - 8)
Catholic French Immersion school
Distance to school: 3.5 km (~10 min drive) -
ST GREGORY (Grade: 5 - 8)
Catholic French Immersion school
Distance to school: 1.8 km (~32 min walk) Secondary Schools
-
Home schoolRank: 129/746 (Score: 7.6) 5 year average: 158/746 (Score: 7.2)Distance to school: 0.6 km (~11 min walk)
-
st. Oscar Romero (Grade: 9-12)
Catholic School
Rank: 714/746 (Score: 2.6) 5 year average: 629/746 (Score: 3.3)Distance to school: 4.5 km (~13 min drive) -
Bishop Allen Academy (Grade: 9-12)
Catholic French Immersion school
Rank: 20/746 (Score: 9.0) 5 year average: 83/746 (Score: 7.7)Distance to school: 2.8 km (~8 min drive)
















































