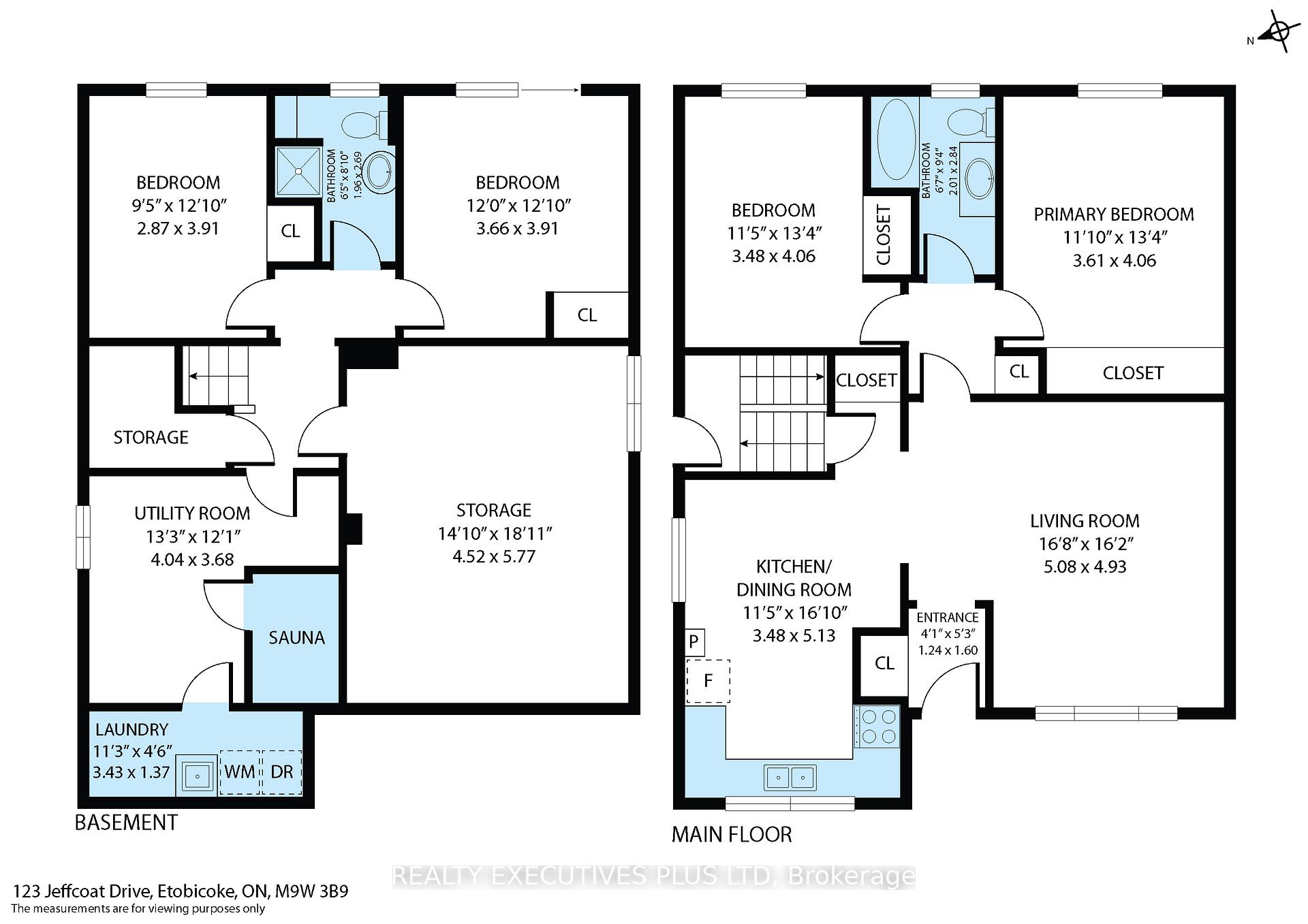
Description
Surrounded by Towering Trees is this Ideal Family home in Rexdale. A Raised Bungalow that backs onto Greenbelt, and is situated on a pie shaped lot Frontage 52' x 140' Rear 92' x 149'. You'll enjoy the Privacy in the Backyard. Large Living room with Laminate Floors and a huge eat-in Kitchen. 4 Bedrooms. There are 2 Bedrooms on the Main Floor complete with a 4-piece bathroom, and 2 Bedrooms on the Ground Floor with a 3-piece bathroom. There are sliding glass doors from the 4th Bedroom with a walk-out to the Backyard. Nice Size Recreation Room. Sauna. There is the potential of an in-Law Suite. Notice there is a brand new Furnace (November 2025). It is within walking distance of West Humber Junior Middle School. This home has been well maintained and looking for a new Owner.
Features
- Facing: South

- Bedrooms: 4

- Bathrooms: 2

- Garages:

- Kitchens: 1

Details
- Lot size: 52.15 x 140.00 Feet

- Space: 1100-1500

- Tax: $ 4359.00

- W12550508

- Listing contracted with: REALTY EXECUTIVES PLUS LTD
| Room | Size(M) | Description | |
|---|---|---|---|
| Living Rm | 5.00x3.71 | Laminate, Overlooks Frontyard |
|
| Kitchen | 4.60x3.45 | Hardwood Floor, Eat-in Kitchen |
|
| Primary B | 4.10x3.60 | Laminate, Overlook Greenbelt, Mirrored Closet |
|
| 2nd Br | 4.12x2.41 | Laminate, Closet, Overlooks Garden |
|
| 3rd Br | 3.57x3.13 | Laminate, W/O To Garden |
|
| 4th Br | 3.95x2.84 | Laminate, Closet |
|
| Recreatio | 5.72x4.52 | Broadloom, Panelled |
|
| Laundry | 2.36x1.49 | Ceramic Floor |
| Bathroom | Pieces | Level | |
|---|---|---|---|
| 1xBath | 4 pcs | Main |
|
| 1xBath | 3 pcs | Ground |









































