Description
Welcome to 2098 Dufferin Street! This beautifully maintained two-storey detached home offers timeless charm and awaits your personal touch. The sun-drenched main floor boasts a spacious living room, a separate dining room, and an eat-in kitchen with a walk-out to an elevated terrace a perfect spot for morning coffee and soaking up the city vibe. Hardwood floors flow throughout LR,DR & upper level. Complemented by three well-appointed bedrooms and a recently renovated four-piece bathroom. A convenient two-piece powder rm` is located on the lower level. The finished basement features a large, inviting recreation room with a sep entrance, ideal for entertaining. Recent updates include a new roof and aluminum in 2020, and new windows in 2021. Enjoy the fully fenced front yard. Located in the heart of the city & conveniently close to Dufferin and Eglinton, the future Eglinton LRT, restaurants, shops, major hwys, and public trans. 2098 Dufferin is ready for you to make it your own.
Features
- Facing: West

- Bedrooms: 3

- Bathrooms: 2

- Garages: 1

- Kitchens: 1

Details
- Lot size: 25.03 x 125.16 Feet

- Space: 1100-1500

- Tax: $ 4215.35

- W12451412

- Listing contracted with: PROPERTY.CA INC.
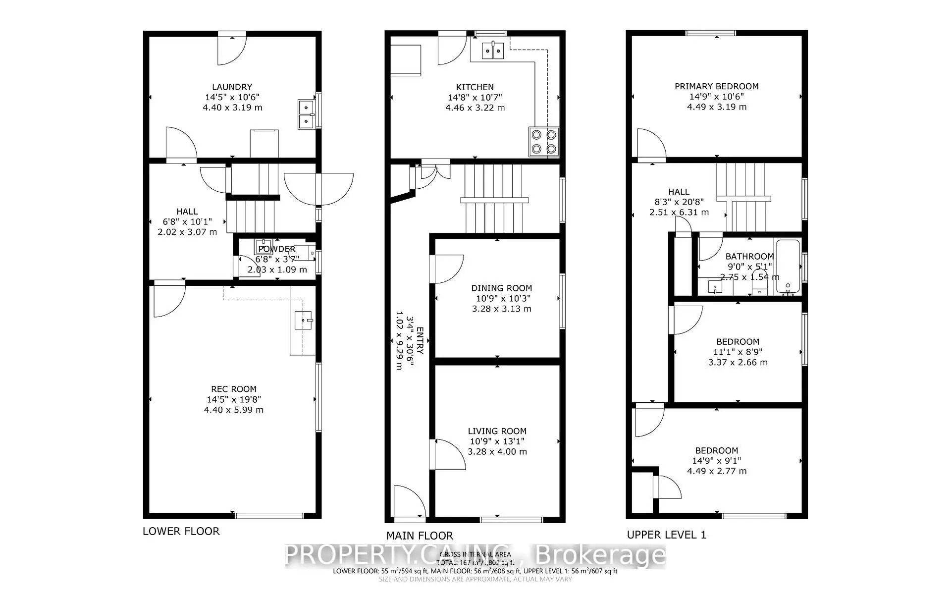
| Room | Size(M) | Description | |
|---|---|---|---|
| Living Rm | 3.28x4.00 | Hardwood Floor, Window |
|
| Dining Rm | 3.28x3.13 | Hardwood Floor, Formal Rm, Window |
|
| Kitchen | 4.46x3.22 | Eat-in Kitchen, W/O To Yard, Window |
|
| Primary B | 4.49x3.19 | Hardwood Floor, Closet, Window |
|
| 2nd Br | 3.37x2.66 | Hardwood Floor, Closet, Window |
|
| 3rd Br | 4.49x2.77 | Hardwood Floor, Closet, Window |
|
| Recreatio | 4.40x5.99 | Finished, Stainless Steel Sink, Window |
| Bathroom | Pieces | Level | |
|---|---|---|---|
| 1xBath | 4 pcs | Second |
|
| 1xBath | 2 pcs | Lower |
Property Summary
Located close to the intersection of Dufferin & Rogers Rd, 2098 Dufferin St is a 3 bedrooms 2 washrooms Detached. The unit has a Single Detached Parking Space. The property has many nice features including Other. Living Room Rm, Dinning Room Rm and Kitchen are on the Main floor; Primary B, second bedroom and third bedroom are on the upper floor; Recreation Roomreatio is on the Lower floor.School Information
Elementary Schools
-
Home schoolRank: 2432 out of 3022 (Score: 4.4)Distance to school: 0.7 km (~13 min walk)
-
Home schoolDistance to school: 0.8 km (~14 min walk)
-
Catholic French Immersion school
Rank: 1165 out of 3022 (Score: 6.6)Distance to school: 0.3 km (~5 min walk) -
ST ALPHONSUS (Grade: JK - 7)
Catholic French Immersion school
Rank: 175 out of 3022 (Score: 8.5)Distance to school: 1.3 km (~24 min walk) -
D'ARCY MCGEE (Grade: 5 - 8)
Catholic French Immersion school
Rank: 67 out of 3022 (Score: 8.2) 5 year average: 55/3022 (Score: 8.0)Distance to school: 0.6 km (~11 min walk) -
HOLY ROSARY (Grade: 8 - 8)
Catholic French Immersion school
Rank: 42 out of 3022 (Score: 9.5)Distance to school: 2.7 km (~8 min drive) Secondary Schools
-
Home schoolRank: 686/746 (Score: 3.5) 5 year average: 523/746 (Score: 4.8)Distance to school: 2.1 km (~6 min drive)
-
st. Oscar Romero (Grade: 9-12)
Catholic School
Rank: 714/746 (Score: 2.6) 5 year average: 629/746 (Score: 3.3)Distance to school: 2.8 km (~8 min drive) -
Loretto (Grade: 9-12)
Catholic School
Rank: 380/746 (Score: 6.0) 5 year average: 457/746 (Score: 5.4)Distance to school: 1.4 km (~25 min walk)
































