Description
Featured by BlogTO as "Like Living in the Future." 60 Hiltz is a custom-built, all-electric home on a wide, quiet, tree-lined street steps from Greenwood Park and Queen East. 3+1 bed, 5 bath, 7 Juliet balconies, covered carport with EV rough-in, over 3,000 sf. Step inside to ~10' ceilings and a bright open kitchen-dining-family room anchored by a honed marble fireplace. Scavolini kitchen with 8-foot quartz island, Gaggenau fridge and induction cooktop, Monogram wall oven, Bosch dishwasher, Faber hood. Up to the second floor: two large bedrooms with two full baths and Scavolini closets, dedicated office, and laundry. The third-floor primary suite opens to CN Tower views, 5-pc ensuite with stone soaking tub, and gorgeous dressing area with custom millwork. Below grade: open-concept 900+ sf level with full bath and 8-foot ceilings - guest suite, media room, gym, or play space. Built for health and comfort: all-electric means zero combustion, no indoor air pollution. HEPA-filtered fresh air 24/7 via backed-up ERV. Passive House-certified triple-pane floor-to-ceiling windows flood every room with light and retain 3X more heat than standard glass. Heated floors throughout. Motorized Hunter Douglas blinds. Built to save: High Performance building envelope and cold-climate heat pump cuts heating and cooling costs vs. code-built homes. German heat pump hot water tank uses 3X less energy than conventional. 16 solar panels power the home and sell surplus to the grid. Rare islanding keeps solar running during outages. 20 kWh battery backs up sump pump, fridge, ERV, WiFi, lighting, HWT, and plug loads. Carport ready for 10 more panels. Built to protect: Bone Structure steel frame, non-combustible brick and metal exterior, laminated security glazing, 7-point locking windows, steel security door. Climate-resilient and break-in resistant. You cannot replicate this build at this price. Riverdale CI and Duke of Connaught catchments. 10 min by bike to the Beaches. Come see it.
Features
- Facing: West

- Bedrooms: 3

- Bathrooms: 5

- Garages: 1

- Kitchens: 1

Details
- Lot size: 36.00 x 80.00 Feet

- Space: 2000-2500

- Tax: $ 10293.28

- E12965658

- Listing contracted with: HARVEY KALLES REAL ESTATE LTD.
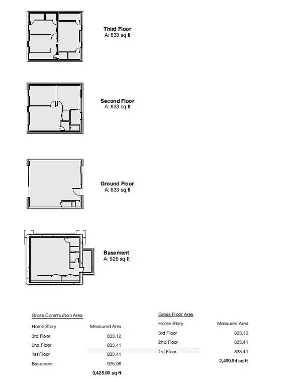
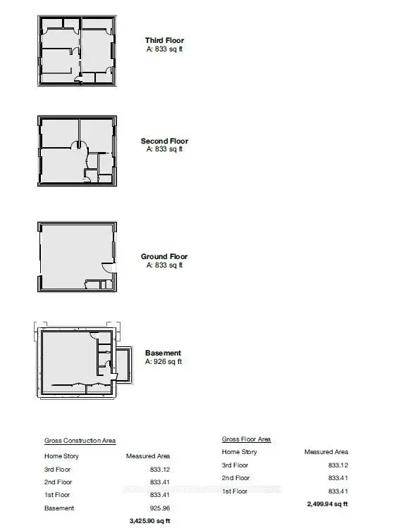
| Room | Size(M) | Description | |
|---|---|---|---|
| Living Rm | 6.33x3.23 | LED Lighting, Hardwood Floor, Fireplace Insert |
|
| Dining Rm | 4.52x3.09 | Hardwood Floor, Heated Floor, Sliding Doors |
|
| Kitchen | 5.09x2.99 | Family Size Kitchen, LED Lighting, Quartz Counter |
|
| Powder Rm | 1.07x1.48 | 2 Pc Bath, Heated Floor, Tile Floor |
|
| 2nd Br | 4.10x3.85 | Hardwood Floor, Heated Floor, Window Floor to Ceil |
|
| 3rd Br | 3.50x4.38 | Hardwood Floor, Heated Floor, Window Floor to Ceil |
|
| Den | 5.40x3.85 | Hardwood Floor, LED Lighting, Window |
|
| Laundry | 1.84x0.97 | Tile Floor, Stainless Steel Sink, LED Lighting |
|
| Bath | 3.33x1.87 | 3 Pc Bath, Tile Floor, Heated Floor |
|
| Bath | 2.32x1.75 | 4 Pc Ensuite, Tile Floor, Heated Floor |
|
| Primary B | 5.09x3.76 | Hardwood Floor, Vaulted Ceiling(s), Walk-In Closet(s) |
|
| Other | 4.47x2.87 | Walk-In Closet(s), Hardwood Floor, B/I Closet |
| Bathroom | Pieces | Level | |
|---|---|---|---|
| 1xBath | 2 pcs | Main |
|
| 1xBath | 3 pcs | Lower |
|
| 1xBath | 3 pcs | Second |
|
| 1xBath | 4 pcs | Second |
|
| 1xBath | 5 pcs | Third |
Property Summary
Located close to the intersection of Greenwood Ave & Queen St East, 60 Hiltz Ave is a 3+1 bedrooms 5 washrooms Detached. The unit has a Single Carport Parking Space. The property has many nice features including Separate Heating Contr, ERV/HRV, Countertop Range, Carpet Free, Built-In Oven and Air Exchanger. Living Room Rm, Dinning Room Rm, Kitchen and Powder Rm are on the Main floor.School Information
Elementary Schools
-
Home schoolRank: 1729 out of 3022 (Score: 5.8)Distance to school: 0.3 km (~6 min walk)
-
ST JOSEPH (Grade: JK - 8)
Catholic French Immersion school
Rank: 1165 out of 3022 (Score: 6.6)Distance to school: 0.4 km (~7 min walk) -
HOLY NAME (Grade: JK - 6)
Catholic French Immersion school
Rank: 687 out of 3022 (Score: 7.3)Distance to school: 2.1 km (~6 min drive) -
ST JOHN TORONTO (Grade: 5 - 8)
Catholic French Immersion school
Distance to school: 3.1 km (~9 min drive) -
ST AGATHA (Grade: 7 - 8)
Catholic French Immersion school
Rank: 1934 out of 3022 (Score: 5.5)Distance to school: 10.1 km (~30 min drive) Secondary Schools
-
Home schoolRank: 41/746 (Score: 8.6) 5 year average: 69/746 (Score: 7.8)Distance to school: 0.8 km (~14 min walk)
-
Notre Dame (Grade: 9-12)
Catholic French Immersion school
Rank: 41/746 (Score: 8.6) 5 year average: 90/746 (Score: 7.7)Distance to school: 3.2 km (~10 min drive) -
st. Patrick (Grade: 9-12)
Catholic AP program school
Rank: 244/746 (Score: 6.9) 5 year average: 222/746 (Score: 6.8)Distance to school: 1.4 km (~25 min walk)
















































