Description
Detached Bungalow In High Demand Location In North York - Willowdale! Build Your Dream Home @ 50 X 155 Feet Large Lot. Building Permit Ready With Drawing ( 4674 S.F + Basement ) , Steps To Park, School & Public Transit. Close To Yonge, Sheppard & Finch, Civic Centre & All Amenities. Good For End User & Investor. ** Drawings Provided By Seller, Just For Reference** ** High Ranking Earl Haig Secondary School ** Steps To Park & Public Transit. Close To Subway Station, Shopping, Library & Restaurants. Mins To Hospital, Hwy401 & 404...
Features
- Facing: North

- Bedrooms: 3

- Bathrooms: 2

- Garages: 1

- Kitchens: 1

Details
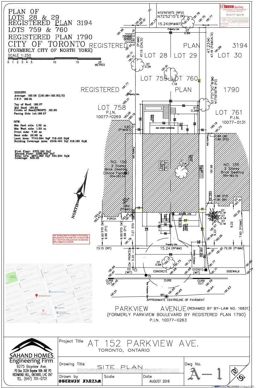
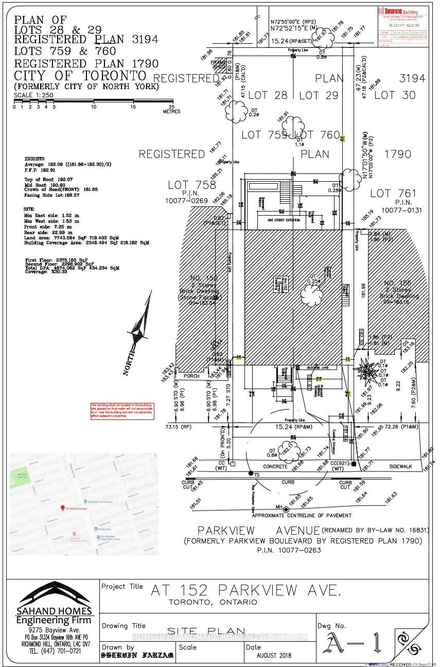
- Lot size: 50.00 x 154.00 Feet

- Space: 700-1100

- Tax: $ 10270.66

- C12796798

- Listing contracted with: HOMELIFE LANDMARK RH REALTY
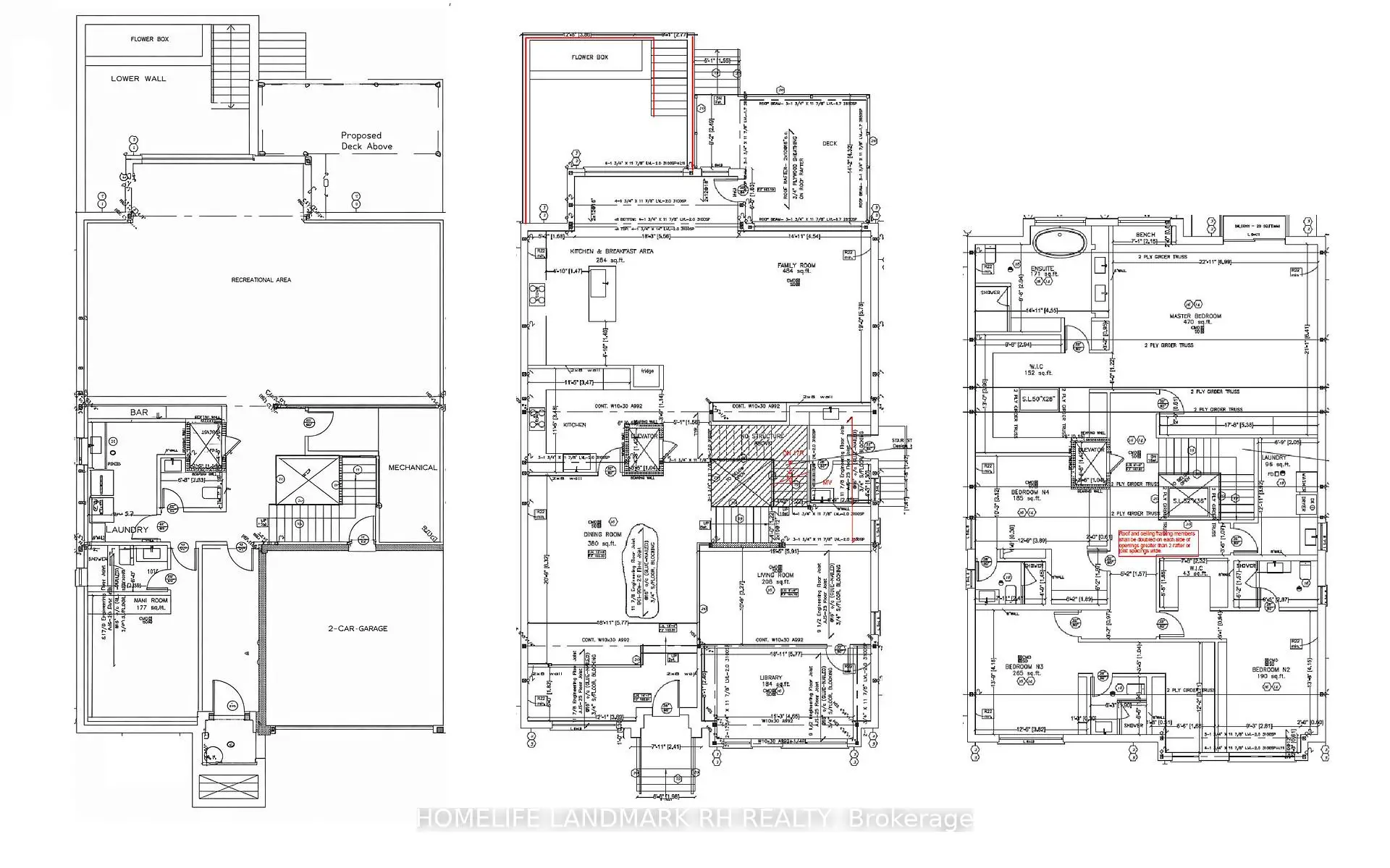
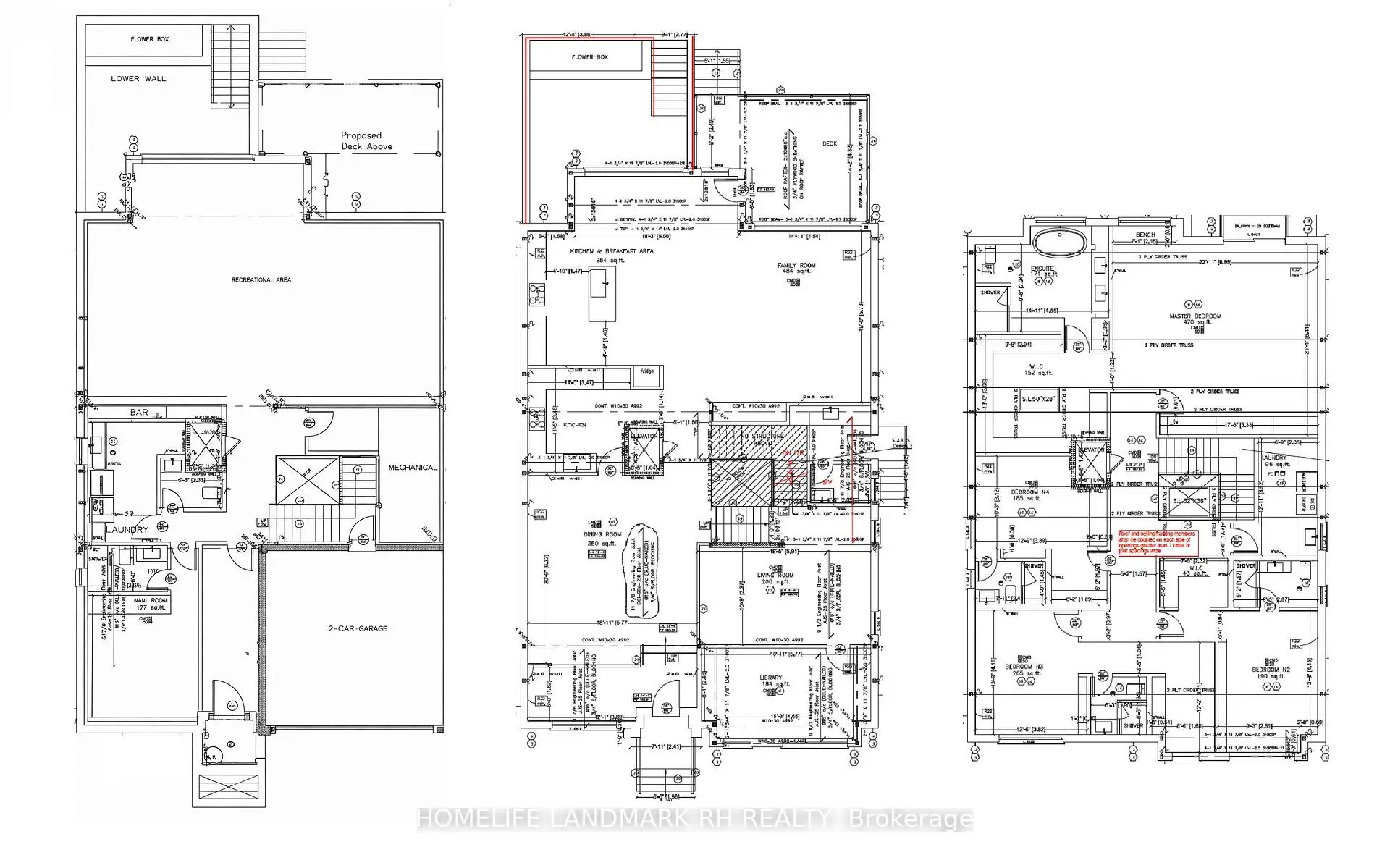
| Room | Size(M) | Description | |
|---|---|---|---|
| Living Rm | 4.83x3.45 | Hardwood Floor, Separate Rm, South View |
|
| Dining Rm | 3.32x3.15 | Hardwood Floor, W/O To Deck, Separate Rm |
|
| Kitchen | 3.27x3.15 | Hardwood Floor, Breakfast Area, Walk Through |
|
| Primary B | 4.03x3.30 | Hardwood Floor, Window, Closet |
|
| 2nd Br | 3.35x3.30 | Hardwood Floor, Window, Closet |
|
| 3rd Br | 3.25x2.60 | Hardwood Floor, Window, Closet |
|
| Recreatio | 3.50x3.25 | Broadloom, Panelled, Above Grade Window |
|
| Laundry | 2.60x1.85 |
| Bathroom | Pieces | Level | |
|---|---|---|---|
| 1xBath | 4 pcs | Second |
|
| 1xBath | 4 pcs | Basement |
Property Summary
Located close to the intersection of Willowdale & Finch, 152 Parkview Ave is a 3 bedrooms 2 washrooms Detached. The unit has a Single Attached Parking Space. The property has many nice features including None. Living Room Rm, Dinning Room Rm and Kitchen are on the Main floor.School Information
Elementary Schools
-
Home schoolRank: 2233 out of 3022 (Score: 4.9)Distance to school: 12.5 km (~38 min drive)
-
ST GABRIEL (Grade: JK - 8)
Catholic French Immersion school
Distance to school: 1.2 km (~22 min walk) -
-
ST MARGARET (Grade: 5 - 8)
Catholic French Immersion school
Rank: 687 out of 3022 (Score: 7.3)Distance to school: 4.5 km (~13 min drive) Secondary Schools
-
Home schoolRank: 404/746 (Score: 5.9) 5 year average: 553/746 (Score: 4.5)Distance to school: 12.1 km (~36 min drive)
-
Cardinal Carter-Arts (Grade: 9-12)
Catholic School
Distance to school: 1.1 km (~19 min walk) -
St. Josephs Morrow Park (Grade: 9-12)
Catholic School
Distance to school: 2.3 km (~7 min drive)





























