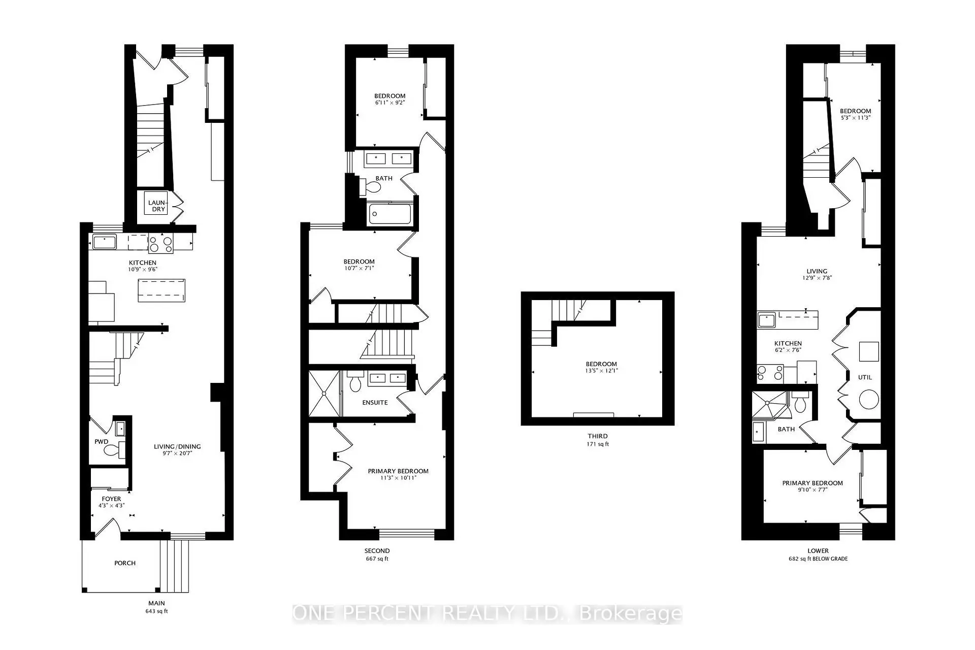
Description
Extensively renovated with intention and quality, this 4 + 2 bedroom, 3.5 - bath Richmond West home is turnkey in the truest sense. Major systems have been newly installed or significantly modernized, including HVAC, 200 AMP electrical service, insulation, windows, roofing membrane, and exterior finishes. Inside, engineered hardwood floors, beautifully updated kitchens and bathrooms, and clean modern lines define bright, well-designed living spaces. A finished attic with skylight adds flexible bonus space -- perfect for a home office, studio, or creative escape. The lower level features a self-contained two-bedroom living area with a separate entrance, complete with full interior waterproofing, sump pump, and egress window -- ideal for extended family, a nanny or guest suite, or those looking for flexibility with potential supplemental income. A true rarity for the area; enjoy private laneway-access tandem parking for two vehicles behind a roll-up garage door, plus a professionally hardscaped backyard and new fencing. Set in the heart of Richmond West / Queen West -- steps to cafés, restaurants, transit, and Trinity Bellwoods Park.
Features
- Facing: North

- Bedrooms: 4

- Bathrooms: 4

- Garages:

- Kitchens: 1

Details
- Lot size: 15.08 x 97.50 Feet

- Space: 1100-1500

- Tax: $ 6153.35

- C12774192

- Listing contracted with: ONE PERCENT REALTY LTD.
| Room | Size(M) | Description | |
|---|---|---|---|
| Kitchen | 3.30x2.90 | ||
| Foyer | 1.30x1.30 | ||
| Living Rm | 6.30x2.90 | Combined w/Dining |
|
| Br | 3.40x3.30 | ||
| 2nd Br | 3.20x2.20 | ||
| 3rd Br | 2.80x2.10 | ||
| 4th Br | 4.10x3.70 | ||
| Living Rm | 3.90x2.30 | ||
| Kitchen | 2.30x1.90 | ||
| Br | 3.00x2.30 | ||
| 2nd Br | 3.40x1.60 |
| Bathroom | Pieces | Level | |
|---|---|---|---|
| 1xBath | 3 pcs | Lower |
|
| 1xBath | 2 pcs | Main |
|
| 1xBath | 4 pcs | Second |
|
| 1xBath | 5 pcs | Second |
Property Summary
Located close to the intersection of Queen St W + Bathurst St, 756 Richmond St W is a 4+2 bedrooms 4 washrooms Freehold Townhouse. The property has many nice features including In-Law Suite, In-Law Capability, Guest Accommodations, Floor Drain, Carpet Free and Accessory Apartment. Kitchen, Foyer and Living Room Rm are on the Ground floor; Living Room Rm, Kitchen, Br and second bedroom are on the Lower floor.School Information
Elementary Schools
-
Home schoolRank: 2642 out of 3022 (Score: 3.8)Distance to school: 0.8 km (~15 min walk)
-
Home schoolRank: 626 out of 3022 (Score: 7.4)Distance to school: 0.2 km (~4 min walk)
-
ST MARY (Grade: JK - 8)
Catholic French Immersion school
Rank: 1807 out of 3022 (Score: 5.7)Distance to school: 0.4 km (~6 min walk) -
HOLY ROSARY (Grade: JK - 8)
Catholic French Immersion school
Rank: 42 out of 3022 (Score: 9.5)Distance to school: 4.4 km (~13 min drive) -
ST VINCENT DE PAUL (Grade: 5 - 8)
Catholic French Immersion school
Rank: 1 out of 3022 (Score: 10.0)Distance to school: 3.1 km (~9 min drive) Secondary Schools
-
Home schoolRank: 219/746 (Score: 7.0) 5 year average: 340/746 (Score: 6.2)Distance to school: 2.3 km (~7 min drive)
-
St. Mary's (Grade: 9-12)
Catholic School IB Program
Distance to school: 2.3 km (~7 min drive) -
















































