Description
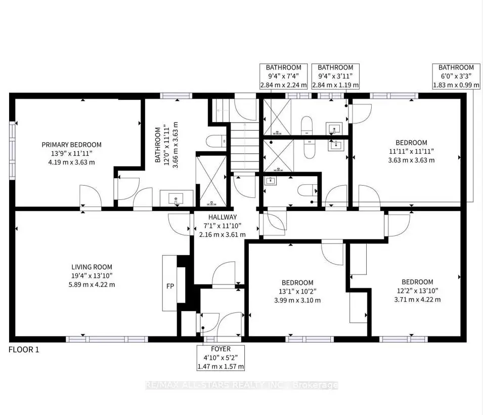
For Sale - 105 Betty Ann Drive, Toronto (Willowdale West)Detached Bungalow | 50' x 135' Lot | 2-Car Built-In Garage + Private Drive Well-maintained detached bungalow located in the desirable Willowdale West neighbourhood. Offering three finished levels, including a functional lower level with a separate side entrance, this home provides flexibility for extended family, work-from-home setups, or multi-generational living.Main Level Bright open-concept living and dining area with recessed lighting Modern kitchen with stainless steel appliances and ample cabinetry Large windows allowing natural light throughout.Four well-sized bedrooms and four updated bathrooms Lower Level Private side entrance with a concrete walk-out to the backyard.Two separate living areas suitable for extended family or guest accommodations.Three additional bedrooms plus a spacious recreation area Shared laundry facilities Features & Upgrades200 AMP electrical service and updated mechanical systems Hard-wired smoke detectors and security system Built-in 2-car garage. Private driveway with parking for up to four vehicles South-facing backyard with landscaped gardens Updated exterior stonework and newly renovated front steps Location Highlights Situated in Willowdale West, steps to Edithvale Park & Community Centre, top-rated local schools, and TTC transit. Convenient access to Yonge Street's shops, restaurants, and amenities. Minutes to Highway 401 and Allen Road. A comfortable and functional home in one of Toronto's most sought-after residential communities. Beautifully Renovated, Like-New Bungalow with 4+3 Bedrooms and 7.5 Bathrooms. Highlights include a separate side entrance, kitchen rough-ins for added flexibility, , and wired carbon monoxide detectors. Enjoy a large, sun-filled, south-facing backyard
Features
- Facing: South

- Bedrooms: 4

- Bathrooms: 7

- Garages: 2

- Kitchens: 1

Details
- Lot size: 50.00 x 135.16 Feet

- Space: 1100-1500

- Tax: $ 8020.86

- C12683520

- Listing contracted with: RE/MAX ALL-STARS REALTY INC.
| Room | Size(M) | Description | |
|---|---|---|---|
| Living Rm | 5.63x4.37 | Combined w/Kitchen, Brick Fireplace, Large Window |
|
| Kitchen | 5.63x4.37 | Combined w/Living, Laminate, Stainless Steel Appl |
|
| Primary B | 4.32x3.71 | B/I Closet, 3 Pc Ensuite, Window |
|
| 2nd Br | 3.65x3.75 | Closet, 3 Pc Ensuite, Window |
|
| 3rd Br | 3.04x2.45 | Closet, Laminate, Window |
|
| 4th Br | 3.69x3.40 | Closet, Laminate, Window |
|
| Living Rm | 3.95x3.89 | 3 Pc Ensuite, Laminate, Window |
|
| Br | 5.49x3.92 | 3 Pc Ensuite, Laminate, Window |
|
| 2nd Br | 3.95x2.95 | 3 Pc Ensuite, Laminate, Window |
|
| 3rd Br | 4.69x3.76 | 3 Pc Ensuite, Laminate, Window |
| Bathroom | Pieces | Level | |
|---|---|---|---|
| 3xBaths | 3 pcs | Main |
|
| 1xBath | 2 pcs | Main |
|
| 3xBaths | 3 pcs | Lower |
Property Summary
Located close to the intersection of Yonge and Park Home, 105 Betty Ann Dr is a 4+3 bedrooms 7 washrooms Detached. The unit has a Double Built-In Parking Spaces. The property's basement is finished and has bedrooms. The property has many nice features including Guest Accommodations, Floor Drain and Carpet Free. Living Room Rm, Kitchen, Primary B, second bedroom, third bedroom and fourth bedroom are on the Ground floor; Living Room Rm, Bedroom, second bedroom and third bedroom are on the Lower floor.School Information
Elementary Schools
-
Home schoolRank: 1868 out of 3022 (Score: 5.6)Distance to school: 0.7 km (~12 min walk)
-
Home schoolDistance to school: 0.6 km (~11 min walk)
-
-
ST ANTOINE DANIEL (Grade: JK - 8)
Catholic French Immersion school
Rank: 1300 out of 3022 (Score: 6.4)Distance to school: 9.2 km (~28 min drive) -
ST MARGARET (Grade: 5 - 8)
Catholic French Immersion school
Rank: 687 out of 3022 (Score: 7.3)Distance to school: 3.7 km (~11 min drive) Secondary Schools
-
Home schoolRank: 219/746 (Score: 7.0) 5 year average: 191/746 (Score: 7.0)Distance to school: 2.3 km (~7 min drive)
-
Cardinal Carter-Arts (Grade: 9-12)
Catholic School
Distance to school: 0.9 km (~16 min walk) -
Loretto Abbey (Grade: 9-12)
Catholic French Immersion school
Rank: 259/746 (Score: 6.8) 5 year average: 205/746 (Score: 6.9)Distance to school: 3.1 km (~9 min drive)











































