Description
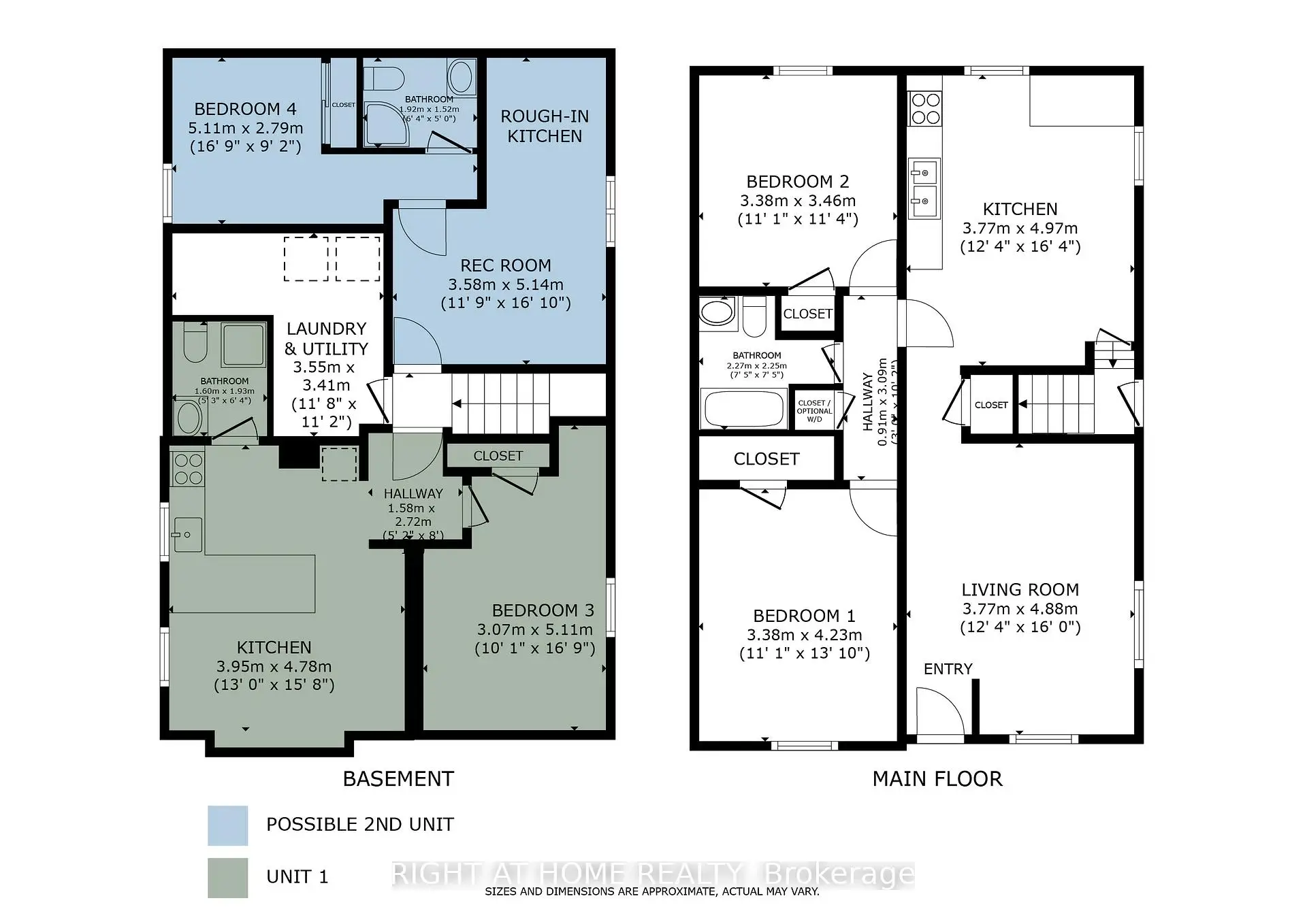
Welcome to 735 Srigley Street, where modern comfort, thoughtful upgrades, and income potential come together in this move-in-ready stunning Newmarket home. Set on a deep 187ft lot in a well-established, family-friendly neighbourhood, this property offers excellent flexibility for today's lifestyle.Inside, the home features a bright, inviting interior with pot lights throughout, hardwood flooring, beautiful tile in the kitchen and entry areas, and high-end electric smart blinds. A tastefully designed feature wall adds a sleek focal point to the main living space. The newly updated main floor kitchen features stainless steel appliances and plenty of natural light. The lower level features a renovated one-bedroom basement unit with quartz kitchen countertops, an updated bathroom, and basement laundry perfect for in-law living or rental use. The basement also has a second one-bedroom, one-bath unit roughed-in for a kitchen and can function as a separate suite or be combined with the other unit, offering excellent flexibility and strong income potential, with the entire basement estimated to generate $3,000-$3,500 per month.Outside, enjoy strong curb appeal and interlocking stone, a three-car driveway, plus a 1 car garage, all set on a huge deep lot. Located just minutes & walking distance from Downtown Newmarket, this home offers easy access to shops, dining, parks, schools, transit, and everyday essentials in a highly sought after neighbourhood.
Features
- Facing: South

- Bedrooms: 2

- Bathrooms: 3

- Garages: 1

- Kitchens: 1

Details
- Lot size: 50.00 x 188.20 Feet

- Space: 700-1100

- Tax: $ 5091.00

- N12895954

- Listing contracted with: RIGHT AT HOME REALTY
| Room | Size(M) | Description | |
|---|---|---|---|
| Living Rm | 12.33x16.00 | ||
| Kitchen | 12.33x16.33 | ||
| Br | 11.08x13.83 | ||
| 2nd Br | 11.08x11.33 | ||
| Bath | 7.42x7.42 | ||
| Utility R | 11.67x11.17 | ||
| Kitchen | 13.00x15.67 | ||
| Bath | 5.25x6.33 | 2 Pc Bath |
|
| 3rd Br | 10.08x16.75 | ||
| Recreatio | 11.75x16.83 | ||
| Bath | 6.33x5.00 | 3 Pc Bath |
|
| 4th Br | 16.75x9.17 |
| Bathroom | Pieces | Level | |
|---|---|---|---|
| 2xBaths | 3 pcs | Basement |
|
| 1xBath | 4 pcs | Main |
Property Summary
Located close to the intersection of Prospect St And Srigley St, 735 Srigley St is a 2+2 bedrooms 3 washrooms Detached. The unit has a Single Detached Parking Space. The property basement is Separate Ent Apartment. The property has many nice features including Primary Bedroom - Main, Sump Pump, Other, In-Law Suite and Accessory Apartment. Living Room Rm, Kitchen, Bedroom, second bedroom and Bath are on the Main floor.School Information
Elementary Schools
-
Home schoolRank: 2196 out of 3022 (Score: 5.0)Distance to school: 0.2 km (~4 min walk)
-
French Immersion school
Rank: 2196 out of 3022 (Score: 5.0)Distance to school: 0.2 km (~4 min walk) -
French Immersion school
Distance to school: 0.6 km (~12 min walk) -
Catholic French Immersion school
Rank: 963 out of 3022 (Score: 6.9)Distance to school: 2.2 km (~7 min drive) -
Catholic Gifted program school
Rank: 626 out of 3022 (Score: 7.4)Distance to school: 18.2 km (~55 min drive) Secondary Schools
-
Home schoolRank: 219/746 (Score: 7.0) 5 year average: 257/746 (Score: 6.6)Distance to school: 0.8 km (~14 min walk)
-
French Immersion school
Rank: 48/746 (Score: 8.5) 5 year average: 44/746 (Score: 8.1)Distance to school: 1.5 km (~26 min walk) -
Arts program school
Rank: 219/746 (Score: 7.0) 5 year average: 257/746 (Score: 6.6)Distance to school: 0.8 km (~14 min walk) -
AP program school IB Program
Rank: 1/746 (Score: 10.0) 5 year average: 2/746 (Score: 9.3)Distance to school: 7.5 km (~23 min drive) -
Catholic Home school
Rank: 259/746 (Score: 6.8) 5 year average: 195/746 (Score: 7.0)Distance to school: 0.5 km (~9 min walk) -
Catholic AP program school
Rank: 259/746 (Score: 6.8) 5 year average: 195/746 (Score: 7.0)Distance to school: 0.5 km (~9 min walk) -
Catholic Gifted program school
Rank: 259/746 (Score: 6.8) 5 year average: 195/746 (Score: 7.0)Distance to school: 0.5 km (~9 min walk)
















































