Description
Priced to sell. Welcome to this beautifully modernized home in the highly sought-after Creditview neighbourhood. Surrounded by mature trees for exceptional privacy, this property truly has it all. Renovated from top to bottom with modern finishes, newer hardwood floors, custom stairs and railings, upgraded washrooms, a designer kitchen with stainless steel appliances, and contemporary light fixtures. Its open-concept layout offers a seamless flow and an undeniable wow factor, complemented by a separate family room for added comfort and flexibility.
Features
- Facing: East

- Bedrooms: 4

- Bathrooms: 4

- Garages: 2

- Kitchens: 1

Details
- Lot size: 37.17 x 102.00 Feet

- Space: 2000-2500

- Tax: $ 8498.00

- W12598106

- Listing contracted with: RE/MAX HALLMARK REALTY LTD.
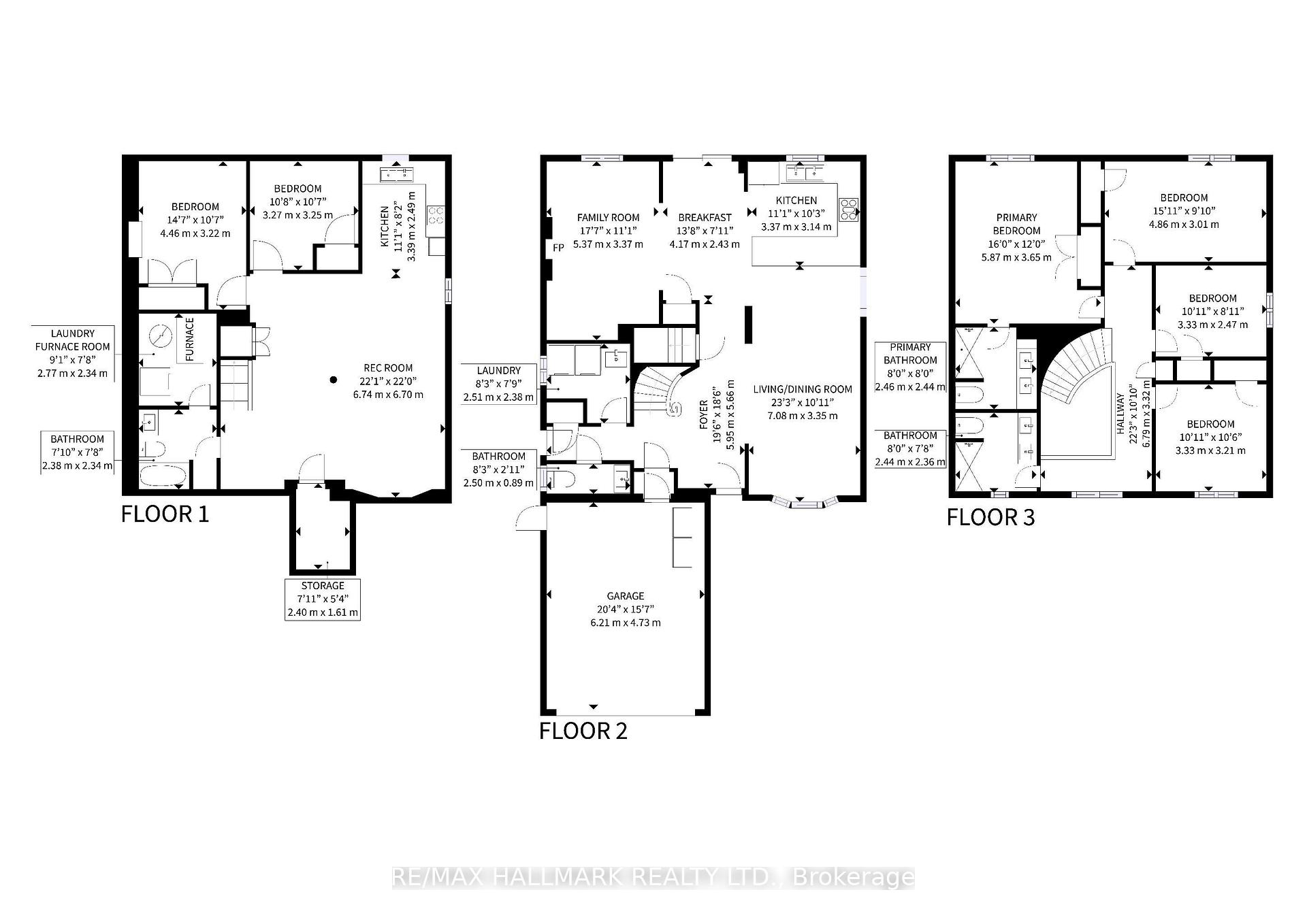
| Room | Size(M) | Description | |
|---|---|---|---|
| Living Rm | 4.73x3.30 | Hardwood Floor, Pot Lights, Open Concept |
|
| Dining Rm | 3.30x2.57 | Hardwood Floor, Window |
|
| Kitchen | 3.45x2.60 | Hardwood Floor, W/O To Pool, Stainless Steel Appl |
|
| Breakfast | 4.10x2.40 | Hardwood Floor, Ceramic Backsplash |
|
| Family Rm | 5.30x3.30 | Hardwood Floor, Fireplace |
|
| Primary B | 4.86x3.80 | Hardwood Floor, 4 Pc Ensuite, Large Window |
|
| 2nd Br | 3.31x3.12 | Hardwood Floor, Closet, Window |
|
| 3rd Br | 3.31x2.75 | Hardwood Floor, Closet, Window |
|
| 4th Br | 4.81x3.01 | Hardwood Floor, Closet, Window |
|
| Recreatio | 6.74x6.70 | Laminate |
|
| Br | 4.46x3.22 | Laminate |
|
| Br | 3.27x3.25 | Laminate |
| Bathroom | Pieces | Level | |
|---|---|---|---|
| 2xBaths | 4 pcs | Second |
|
| 1xBath | 2 pcs | Main |
|
| 1xBath | 3 pcs | Basement |




























