Description
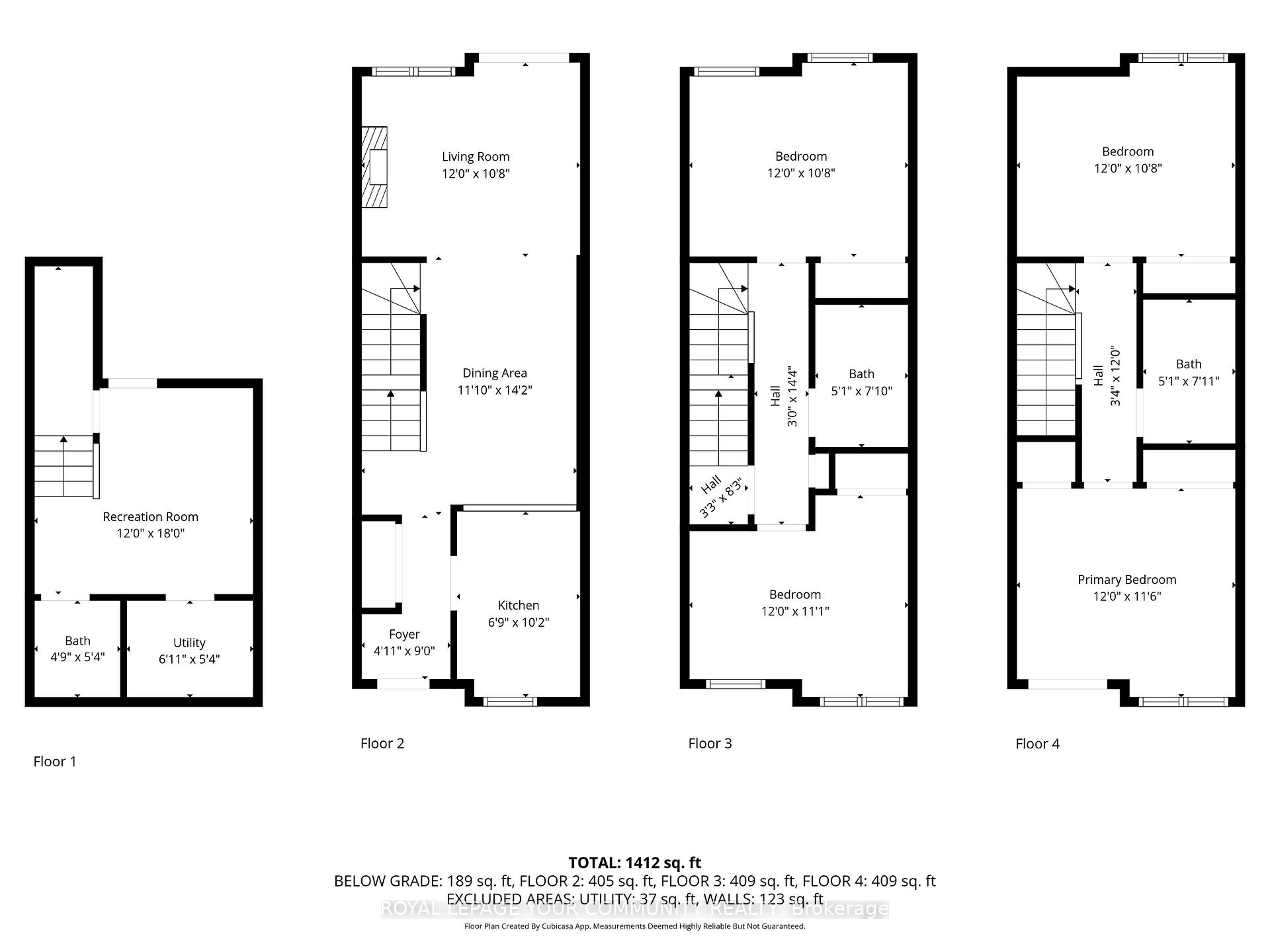
If you've been craving more space without giving up the benefits of condo living, this spacious and sun-filled condo townhouse might be exactly what you've been searching for. Tucked in the highly desirable Mimico, you're just minutes from the GO Station, Metro, Shoppers Drug Mart, and LCBO. You'll love the interior with brand new floors (carpet in May of 2025 and hardwood in April of 2025). Commuters will appreciate the convenience of nearby TTC stops and easy access to the Gardiner Expressway, putting downtown Toronto just 15 minutes by car or two short GO stops away. Peace of mind comes standard with gated entry, 24-hour concierge service, and an in-home security system. Enjoy hassle-free living with all exterior maintenance taken care of -from snow removal and landscaping to gardening and even annual garage and window cleaning. Mimico offers a lifestyle that blends comfort, community, and convenience. Grab a treat from the beloved San Remo Bakery or take a stroll to Humber Bay Shores, where waterfront paths, cafés, and restaurants make for the perfect weekend escape.
Features
- Facing: North

- Bedrooms: 4

- Bathrooms: 3

- Garages: 1

- Kitchens: 1

Details
- Space: 1400-1599

- Age: 16-30
- Maintenance: $ 737.16

- Tax: $ 3695.03

- W12483412

- Listing contracted with: ROYAL LEPAGE YOUR COMMUNITY REALTY
| Bathroom | Pieces | Level | |
|---|---|---|---|
| 1xBath | 4 pcs | Third |
|
| 1xBath | 4 pcs | Second |
|
| 1xBath | 2 pcs | Basement |
Property Summary
Located close to the intersection of Manitoba St and Legion Road N, #11-210 Manitoba St is a 4 bedrooms 3 washrooms Condo Townhouse. The unit has a Single Underground Parking Space. The property has many nice features including Storage, Intercom, Central Vacuum and Other. .School Information
- George R Gauld Junior School (Grade:JK-5)
- John English Junior Middle School (Grade:7-8) 513/3037
- Lakeshore Collegiate Institute (Grade:9-12) 634/739
- Martingrove Collegiate Institute (Grade:9-12) 281/739
- St. Louis Catholic School (Grade:JK-8) 978/3037
- St. Josaphat Catholic School (Grade:JK-8) 194/3046
- Second Street Junior Middle School (Grade:JK-8) 1409/3037
- John English Junior Middle School (Grade:7-8) 513/3037














































