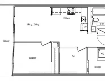
Description
Tastefully renovated 1+1 unit at the Arc Condos! Newer kitchen, newer bathroom, newer floors - AC5 commercial grade laminate floors throughout; newer quartz kitchen counters & renovated cupboards; completely renovated bathroom with newer stand up shower and newer tiled shower walls; completely painted walls and crown mouldings. Conveniently located right on top of Bayview subway station; quick access to 401/DVP; walk outside into Bayview Village Shopping Centre w everything u need right at your doorstep! Unobstructed sunrise east exposure to enjoy your morning coffee on a large cozy balcony! Complete with 1 underground parking spot & 1 storage locker. Enjoy all the condo amenities - pool, hot tub, large gym, large party room, sauna, & 24 hr concierge. Don't miss this fantastic opportunity to own a modern updated condo in a super high demand area!
Features
- Facing: East

- Bedrooms: 1+1

- Bathrooms: 1

- Garages: 1

- Kitchens: 1

Details
- Space: 600-699

- Maintenance: $ 523.00

- Tax: $ 2662.00

- C12859162

- Listing contracted with: META REALTY INC.
| Bathroom | Pieces | Level | |
|---|---|---|---|
| 1xBath | 4 pcs |
Property Summary
Located close to the intersection of Bayview & Sheppard, #406-2885 Bayview Ave is a 1+1 bedrooms 1 washrooms Condo Apt. The unit has a Single Underground Parking Space with a Locker. The property has many nice features including Carpet Free. .ARC
2885 Bayview Ave was developed by real estate developerSchool Information
- Crestview Public School (Grade:JK-5) 265/3064
- Woodbine Middle School (Grade:6-8)
- Georges Vanier Secondary School (Grade:9-12) 374/739
- St. Gabriel Catholic School (Grade:JK-8) 2041/3037
- Dallington Public School (Grade:JK-5) 359/3064
- Cresthaven Public School (Grade:JK-5) 1123/2900
Commute Information
Bayview Subway Station (0.2km)Oriole Go Train Station (1.9km)



























