Description
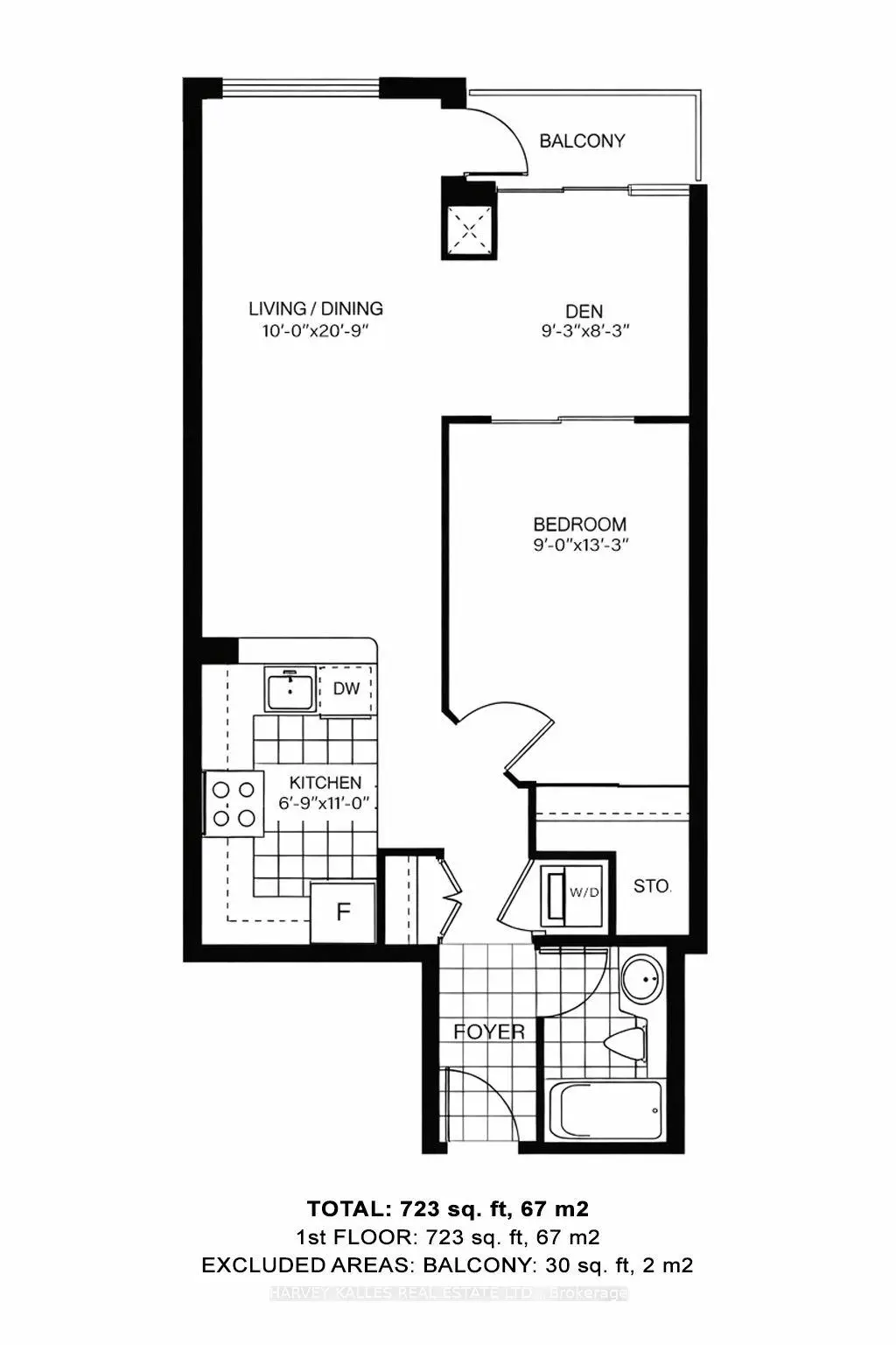
Welcome to The Bellagio - 300 Bloor St EastPrime Downtown Living in a Prestigious, Well-Managed BuildingThis spacious 1+1 bedroom suite offers over 750 sq. ft. of functional living space, complete with parking in one of downtown Toronto's most sought-after addresses. The primary bedroom features sliding doors opening to a versatile den-perfect for a home office, nursery, or cozy reading retreat.The unit is ready for your personal touch and vision. It may need some TLC, but as they say-you can renovate a condo, but you can't renovate the location.Enjoy an unbeatable lifestyle just steps to Yorkville, Rosedale Ravine, world-class shopping, dining, and transit right at your door. The Bellagio is known for its prestigious reputation, excellent management, and outstanding amenities, offering both comfort and long-term value.An incredible opportunity to create your dream space in an A+ location.
Features
- Facing: East

- Bedrooms: 1+1

- Bathrooms: 1

- Garages: 1

- Kitchens: 1

Details
- Space: 700-799

- Maintenance: $ 765.00

- Tax: $ 3408.00

- C12749386

- Listing contracted with: HARVEY KALLES REAL ESTATE LTD.
| Room | Size(M) | Description | |
|---|---|---|---|
| Living Rm | 6.16x3.05 | ||
| Dining Rm | 6.16x3.05 | ||
| Kitchen | 3.26x2.30 | ||
| Primary B | 4.06x2.75 | ||
| Den | 2.83x2.83 |
| Bathroom | Pieces | Level | |
|---|---|---|---|
| 1xBath | 4 pcs | Main |
Property Summary
Located close to the intersection of Bloor and Mt.Pleasant, #305-300 Bloor St E is a 1+1 bedrooms 1 washrooms Condo Apt. The unit has a Single Underground Parking Space. The property has many nice features including Other. Living Room Rm, Dinning Room Rm, Kitchen, Primary B and Den are on the Main floor.The Bellagio
300 Bloor St E was developed by real estate developerSchool Information
- Rosedale Junior Public School (Grade:JK-6) 18/3037
- Deer Park Junior and Senior Public School (Grade:JK-8) 97/3037
- Jarvis Collegiate Institute (Grade:9-12) 651/739
- Our Lady of Lourdes Catholic School (Grade:JK-8) 1119/3037
- Glenview Senior Public School (Grade:7-8)
- Winchester Junior and Senior Public School (Grade:0-8)
- Forest Hill Junior and Senior Public School (Grade:JK-8) 97/3037
- Davisville Junior Public School (Grade:JK-6) 513/3037
Commute Information
Sherbourne Subway Station (0.3km)Union Go Train Station (3km)

























