Description
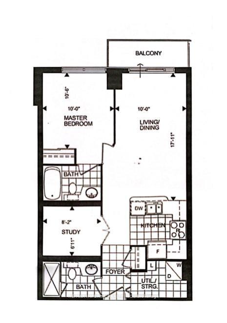
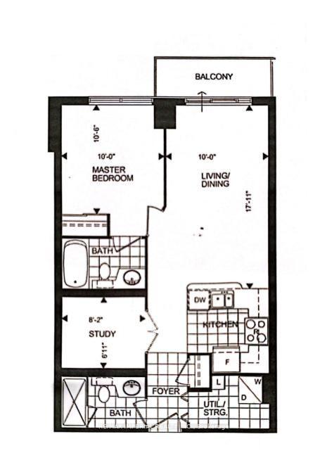
Prime Location At Bayview & Sheppard, ! Best Value! Nice & Quiet Building (Handicapped-Friendly) With Almost 700 S.F, Super Clean Condition, One Bedroom + Den, Two Bathrooms, Modern Kitchen W/ Granite Top/Breakfast Bar, Laminate Flooring, W/Out To Balcony, Den Can Be Used As A 2nd Bedroom, Master Bedroom W/ 4 Pc Ensuite, Double Closet, Walk To Bayview Village Mall With Loblaw, Public Library, Banks & Restaurants, 1Min Walk To Bayview Subway Station, 1 Min Drive Onto Highway 401
Features
- Facing: North

- Bedrooms: 1+1

- Bathrooms: 2

- Garages: 1

- Kitchens: 1

Details
- Space: 600-699

- Age: 16-30
- Maintenance: $ 701.82

- Tax: $ 2389.52

- C12705772

- Listing contracted with: RE/MAX IMPERIAL REALTY INC.
| Bathroom | Pieces | Level | |
|---|---|---|---|
| 1xBath | 4 pcs | Main |
|
| 1xBath | 3 pcs | Main |
Property Summary
Located close to the intersection of Bayview Avenue & Sheppard Aven, #307-19 Barberry Pl is a 1+1 bedrooms 2 washrooms Condo Apt. The unit has a Single Underground Parking Space. The property has many nice features including Other. .The Chelsea
19 Barberry Pl was developed by real estate developer Valfour Developments. The age of the residential building is approximately 22 years. It has about 8 levels and 129 units. The Chelsea offers amenities such as Gym, Concierge, Visitor Parking and Party/Meeting Room. The monthly maintenance fee includes Heat, Water and Air Conditioning. There are total 3 units for sale and 2 for lease in 19 Barberry Pl.School Information
- Crestview Public School (Grade:JK-5) 265/3064
- Woodbine Middle School (Grade:6-8)
- Georges Vanier Secondary School (Grade:9-12) 374/739
- St. Gabriel Catholic School (Grade:JK-8) 2041/3037
- Dallington Public School (Grade:JK-5) 359/3064
- Cresthaven Public School (Grade:JK-5) 1123/2900
Commute Information
Bayview Subway Station (0.2km)Oriole Go Train Station (1.7km)




























