Description
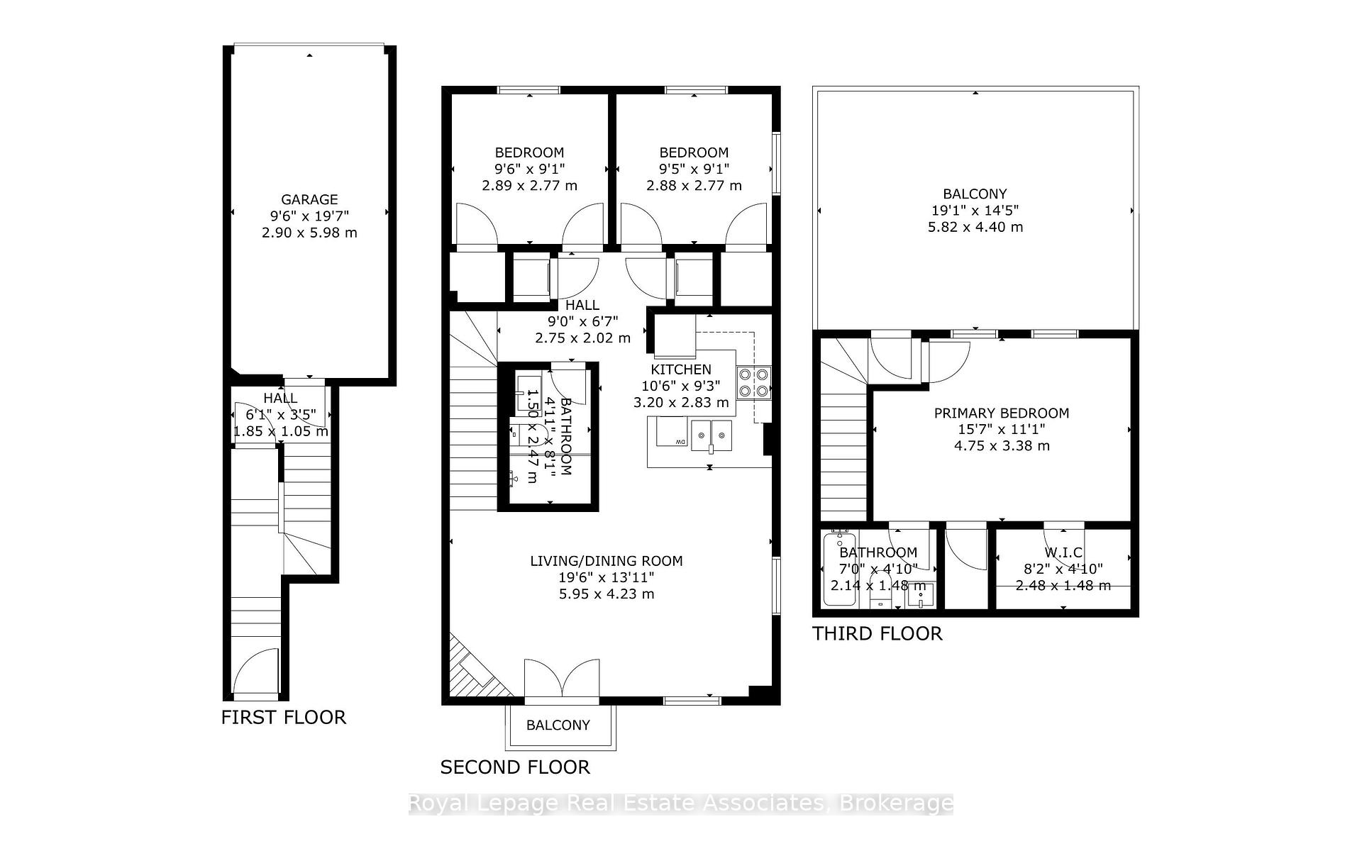
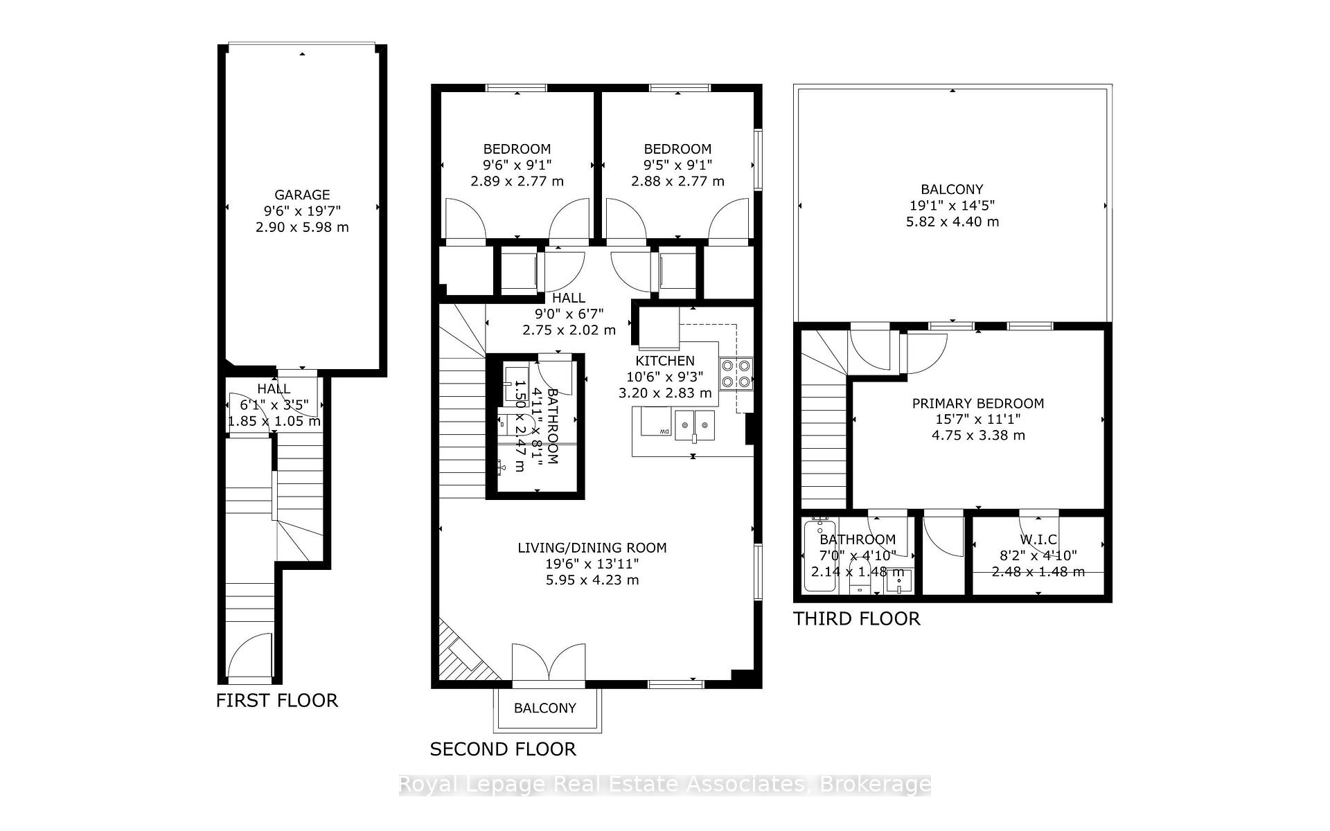
A rare find! This beautiful 3 Bedroom end unit Townhome with a private garage is nestled on a quiet street in trendy King West. This location is hard to beat and is perfect for young couples/families looking to upsize from a condo and stay in the city. Walking distance to BMO Field & Liberty Village, enjoy the bars and restaurants in Queen West, shop and dine on the Ossington Strip, and spend your summers hanging out at Trinity Bellwoods. Featuring a bright, functional layout, this home is designed for both comfort and lifestyle. The open concept main level provides an inviting space for everyday living and entertaining, along with a walkout to a patio and large windows that fill the home with natural light. Two main floor bedrooms offer the flexibility to have a home office, workout space, or bedrooms for the little ones. The entire third floor is dedicated to a private primary bedroom retreat, complete with a beautifully renovated 4 piece ensuite and a spacious walk-in closet with organizers. A standout feature is the large rooftop terrace, your own outdoor escape perfect for relaxing, hosting gatherings, or taking in the city skyline.
Features
- Facing: Ea

- Bedrooms: 3

- Bathrooms: 2

- Garages: 1

- Kitchens: 1

Details
- Space: 1200-1399

- Maintenance: $ 886.87

- Tax: $ 4706.00

- C12628338

- Listing contracted with: Royal Lepage Real Estate Associates
| Room | Size(M) | Description | |
|---|---|---|---|
| Kitchen | 3.20x2.83 | Ceramic Floor, Breakfast Bar, Stainless Steel Appl |
|
| Living Rm | 5.95x4.23 | Hardwood Floor, Gas Fireplace, W/O To Balcony |
|
| Dining Rm | 5.95x4.23 | Hardwood Floor, Combined w/Living, Pot Lights |
|
| 2nd Br | 2.89x2.77 | Hardwood Floor, Walk-In Closet(s), Window |
|
| 3rd Br | 2.88x2.77 | Hardwood Floor, Walk-In Closet(s), Window |
|
| Primary B | 4.75x3.38 | Hardwood Floor, 4 Pc Ensuite, Walk-In Closet(s) |
| Bathroom | Pieces | Level | |
|---|---|---|---|
| 1xBath | 4 pcs | Third |
|
| 1xBath | 3 pcs | Second |
















































