Description
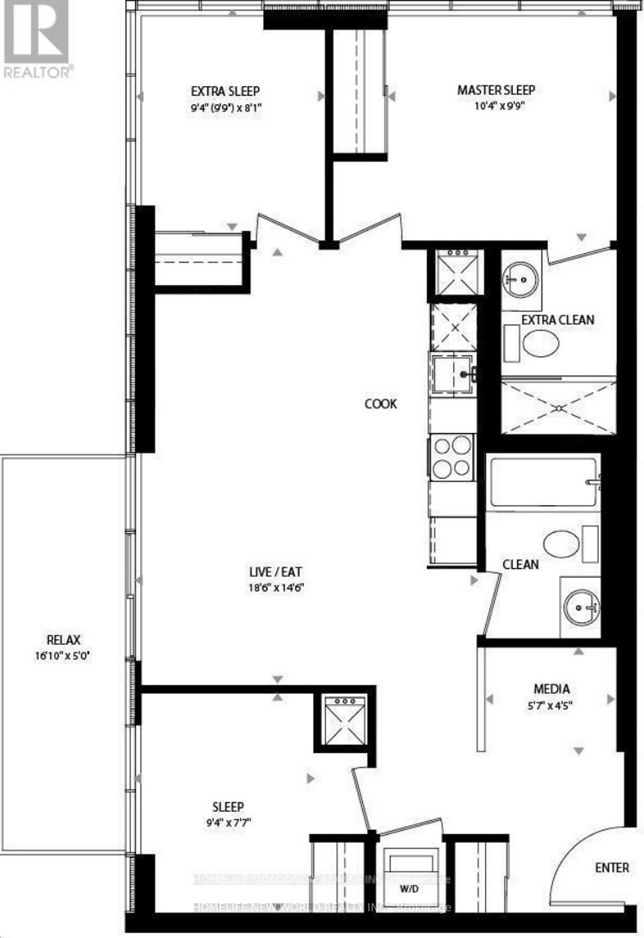
Spacious,Sun-Filled South West Facing 3 Bedrooms + 2 Full Bathrooms + Open Den/Office Unit In Liberty Village, High level with Marvelous Unobstructed/Breathtaking Lake Ontario View. Functional Open Concept Layout.9 Ft Ceiling With Floor To Ceiling Windows Providing Lots of Natural Light. Premium Laminate Floors Throughout,Freshly Painted.Modern Kitchen,Stainless Steel Appliances, Good Size individual Balcony. $9.5K Upgraded By the Builder to receptacle &Secondary feed for cable outlet for wall mounted TV & Backsplash,Laminate Flooring,Kitchen Countertop,Bathroom Countertop/Cabinets, etc.Grand&Spacious Main Lobby With 24 Hr Concierge & Great Amenities. Short Walk to Grocery Shopping, Shops, Restaurants, The Lake & Transit. Fully Equipment Fitness Centre, Outdoor Lounge with Lap Pool, Hot Tub, Rooftop Deck/Garden, BBQ Area, Yoga Studio, Media Room, Party Room and Available Guest Suites.
Features
- Facing: South East

- Bedrooms: 3+1

- Bathrooms: 2

- Garages: 1

- Kitchens: 1

Details
- Space: 800-899

- Age: 0-5
- Maintenance: $ 624.57

- Tax: $ 3454.84

- C12446027

- Listing contracted with: HOMELIFE NEW WORLD REALTY INC.
| Room | Size(M) | Description | |
|---|---|---|---|
| Living Rm | 5.64x4.42 | Laminate, Combined w/Dining, W/O To Balcony |
|
| Dining Rm | 5.64x4.42 | Laminate, Combined w/Living, South View |
|
| Kitchen | 5.64x4.42 | Laminate, Open Concept, Stainless Steel Appl |
|
| Primary B | 3.15x2.98 | Laminate, 4 Pc Ensuite, Large Closet |
|
| 2nd Br | 2.85x2.46 | Laminate, SW View, Closet |
|
| 3rd Br | 2.85x2.31 | Laminate, South View, Closet Organizers |
|
| Den | 1.70x1.35 | Laminate, Open Concept |
| Bathroom | Pieces | Level | |
|---|---|---|---|
| 1xBath | 4 pcs | Flat |
|
| 1xBath | 3 pcs | Flat |


























