Description
Welcome to Spectrum II Condos an urban oasis in the heart of North Yorks coveted Willowdale East neighbourhood! This immaculate 2-bedroom, 2-bath suite offers a spacious, open-concept layout designed for modern living. Enjoy seamless flow from the upgraded kitchen featuring a stylish breakfast bar, stainless steel appliances, water purifier, and elegant counters into a sun-filled living area with floor-to-ceiling windows that frame breathtaking, unobstructed views of the park and city skyline.Engineered laminate flooring runs throughout no carpet anywhere enhancing the clean, contemporary feel. Both bedrooms are generously sized, with the primary suite boasting a glass shower stall and upgraded finishes. Step out onto your private balcony to soak in the tranquil scenery. This suite is flooded with natural light, thanks to expansive windows in the living room and primary bedroom, creating a bright and inviting atmosphere. A dedicated breakfast area offers the perfect spot for morning coffee, while the new AC (2019) ensures year-round comfort.Spectrum II residents enjoy a full suite of amenities: 24-hour concierge, fully equipped gym, sauna, party/meeting room, guest suites, and ample visitor parking. Just steps from AvondalePark, Sheppard-Yonge subway, top restaurants, cafes, and with quick access to Highway 401, this location is unbeatable for both commuters and urban explorers.Experience vibrant city living with the serenity of park views your next chapter awaits atSpectrum II! Dont miss this rare opportunity to own a beautifully upgraded, move-in-ready home in one of North Yorks most desirable communities.
Features
- Facing: East

- Bedrooms: 2

- Bathrooms: 2

- Garages: 1

- Kitchens: 1

Details
- Space: 700-799

- Maintenance: $ 720.93

- Tax: $ 2410.52

- C12221614

- Listing contracted with: HOUSESIGMA INC.
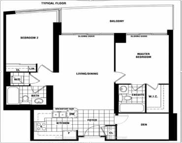
| Room | Size(M) | Description | |
|---|---|---|---|
| Kitchen | 8.01x10.01 | Breakfast Bar |
|
| Living Rm | 19.62x10.01 | Laminate, W/O To Balcony, Combined w/Dining |
|
| Br | 14.01x8.92 | Walk-In Closet(s), Ensuite Bath, Large Window |
|
| 2nd Br | 11.02x8.92 | Double Closet |
| Bathroom | Pieces | Level | |
|---|---|---|---|
| 1xBath | 3 pcs | Main |
|
| 1xBath | 3 pcs |
Property Summary
Located close to the intersection of Yonge and Sheppard and 401, #901-28 Harrison Garden Blvd is a 2 bedrooms 2 washrooms Condo Apt. The unit has a Single Underground Parking Space. The property has many nice features including Water Purifier and Carpet Free. Kitchen, Living Room Rm, Br and second bedroom are on the Main floor.Spectrum Condos
28 Harrison Garden Blvd was developed by real estate developerSchool Information
- Avondale Public School (Grade:JK-8) 1756/3037
- Georges Vanier Secondary School (Grade:9-12) 374/739
- St. Gabriel Catholic School (Grade:JK-8) 2041/3037
- Lester B Pearson Elementary School (Grade:0-8)
- Pleasant Public School (Grade:JK-6) 577/3037




































