Description
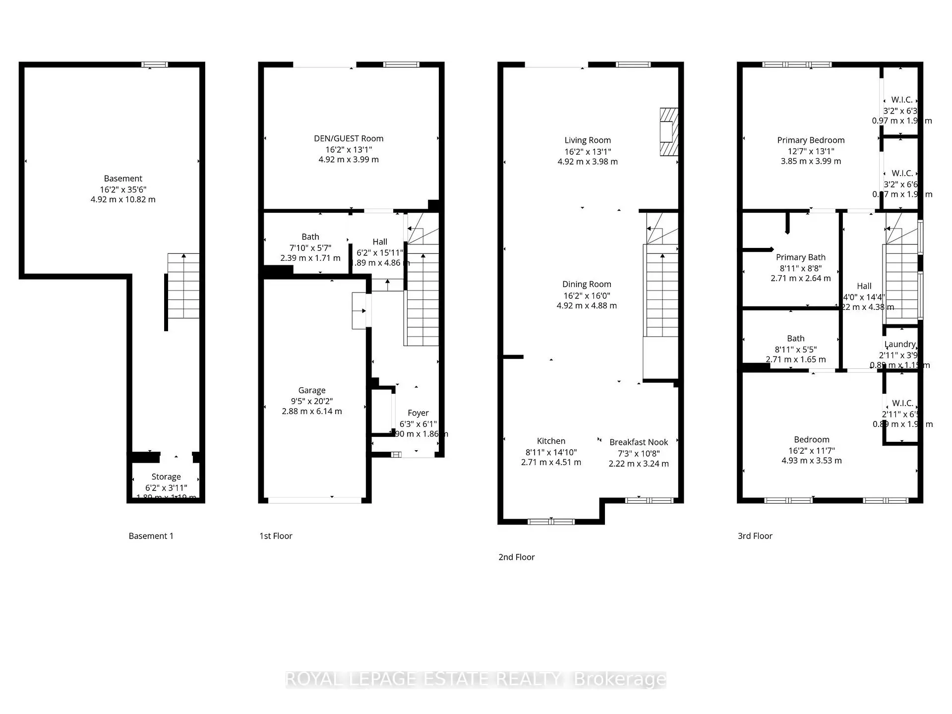
Great New Price! Check out the open house Sat March 21, 2-4pm. Nestled on a quiet street in the sought-after Lakeview pocket, this home backs directly onto Lakeview Golf Course which provides a lush green oasis. On the main floor a welcoming foyer provides convenient access to the garage, with additional driveway parking for guests. This level features a versatile den/bedroom with a walk-out to the backyard, A 4-piece bathroom also adds flexibility for guests or multi-generational living. On the second floor the bright & airy kitchen is beautifully appointed with s.s appliances, quartz countertops, porcelain floors, a luxurious marble backsplash, u/m s.s steel sink, pot lights, & a spacious breakfast nook that can easily function as a cozy family room. The dining area showcases , modern lighting, & gleaming hardwood floors with ample space to host memorable family dinners. Entering the inviting living room, it features custom built-in millwork, a gas fireplace, pot lights - all flowing seamlessly to the sun deck complete with a gas BBQ hookup, ideal for summer entertaining. Upstairs on the third floor the spacious primary retreat offers double step in closets, hardwood floors, & two windows. The primary ensuite includes a stand-up shower, soaking tub, & a quartz-topped vanity w undermount sink. The second bedroom is bright & airy with large windows, hardwood floors, & its own private bathroom featuring porcelain floors, a soaker tub, & vanity with quartz top and undermount sink - offering comfort & privacy for family or guests. Last but not least down to the basement! The unfinished basement includes a cold room and presents a blank canvas to design the additional living space of your dreams - whether a gym, office, recreation room, or in-law suite. This home is ideally positioned within walking distance to Long Branch GO station making commuting effortless. You're also a short drive to Sherway Gardens , Port Credit, Mimico, Lake Ontario, & quick access to the QEW
Features
- Facing: West

- Bedrooms: 2+1

- Bathrooms: 3

- Garages: 1

- Kitchens: 1

Details
- Space: 1800-1999

- Age: 11-15
- Maintenance: $ 270.86

- Tax: $ 4786.79

- W12834220

- Listing contracted with: ROYAL LEPAGE ESTATE REALTY
| Room | Size(M) | Description | |
|---|---|---|---|
| Cold Rm/C | 1.89x1.19 | Concrete Floor |
|
| Common Rm | 4.92x10.82 | Concrete Floor, Window |
|
| Foyer | 1.90x1.86 | Porcelain Floor, Window, Mirrored Closet |
|
| Bath | 2.39x1.71 | 3 Pc Bath, Soaking Tub, Ceramic Sink |
|
| Den | 4.92x3.99 | Walk-Out, Window, Hardwood Floor |
|
| Living Rm | 4.92x3.98 | Gas Fireplace, B/I Shelves, W/O To Sundeck |
|
| Dining Rm | 4.92x4.88 | Combined w/Living, Hardwood Floor, Open Concept |
|
| Kitchen | 2.71x4.51 | Stainless Steel Appl, Quartz Counter, Porcelain Floor |
|
| Breakfast | 2.22x3.24 | Combined w/Kitchen, Porcelain Floor, Window |
| Bathroom | Pieces | Level | |
|---|---|---|---|
| 1xBath | 4 pcs | Ground |
|
| 1xBath | 4 pcs | Third |
|
| 1xBath | 4 pcs | Third |

















































