Description
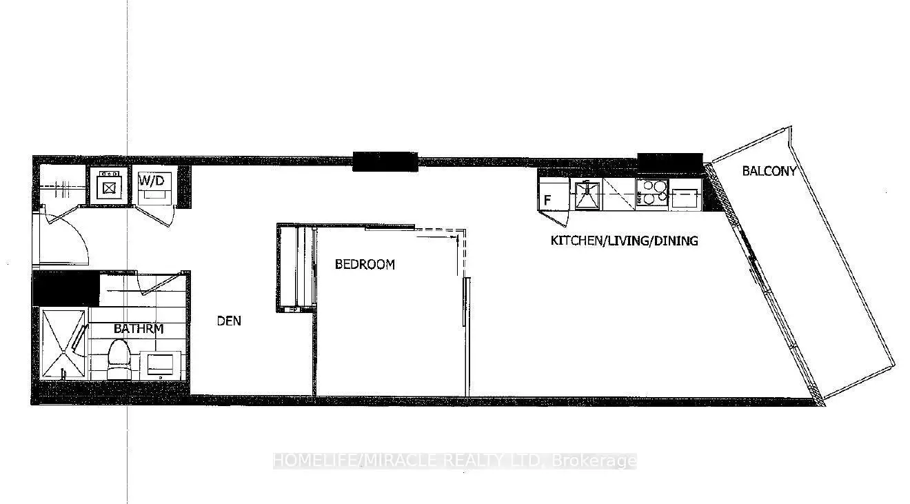
1 Bed + Den In Square One In The Heart Of Mississauga, MCITY Condos. Comes With Den That Can Be Easily Used As Study Room. Stunning Open Concept Kitchen/Dinging/Living To A 80 Sq.Ft. Balcony. Lots Of Natural Light. High Quality Finishing & Touches, Featuring Beautiful Kitchen Backsplash, Appliances, Ensuite Laundry. Spectacular view of CN Tower, Lakeview, Square One. Close to HWY 401
Features
- Facing: East

- Bedrooms: 1

- Bathrooms: 1

- Garages: 1

- Kitchens: 1

Details
- Space: 600-699

- Age: 0-5
- Maintenance: $ 540.54

- Tax: $ 3143.00

- W12778388

- Listing contracted with: HOMELIFE/MIRACLE REALTY LTD
| Room | Size(M) | Description | |
|---|---|---|---|
| Kitchen | 6.06x4.17 | Combined w/Dining, Combined w/Living, Open Concept |
|
| Living Rm | 6.06x4.17 | Combined w/Dining, Combined w/Kitchen, Open Concept |
|
| Dining Rm | 6.06x4.17 | Combined w/Kitchen, Combined w/Living, Open Concept |
|
| Primary B | 2.77x3.20 | ||
| Den | 1.55x1.55 |
| Bathroom | Pieces | Level | |
|---|---|---|---|
| 1xBath | 4 pcs | Main |

















































