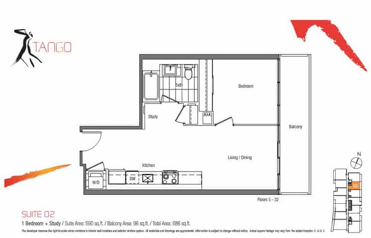
Features
- Facing: East

- Bedrooms: 1+1

- Bathrooms: 1

- Space:500-599

Details
- Garages: 0

- Lockers:Owned

- Possession: Immediate
- C4919688

Available Floor Plan
Tango 1
Built Year: 2014Developer:
ConcordConcord Adex Development Co., Ltd. (Concord Adex) is a subsidiary of Concord Adex Pacific Group Inc. Concord World Expo was established in 1987 and headquartered in Vancouver.
Condo fee includes: Water, Heat, CAC
Amenities include: Gym, Concierge, Party/Meeting Room, Guest Suite, Visitor Parking, Rooftop Deck/Garden

