房屋信息
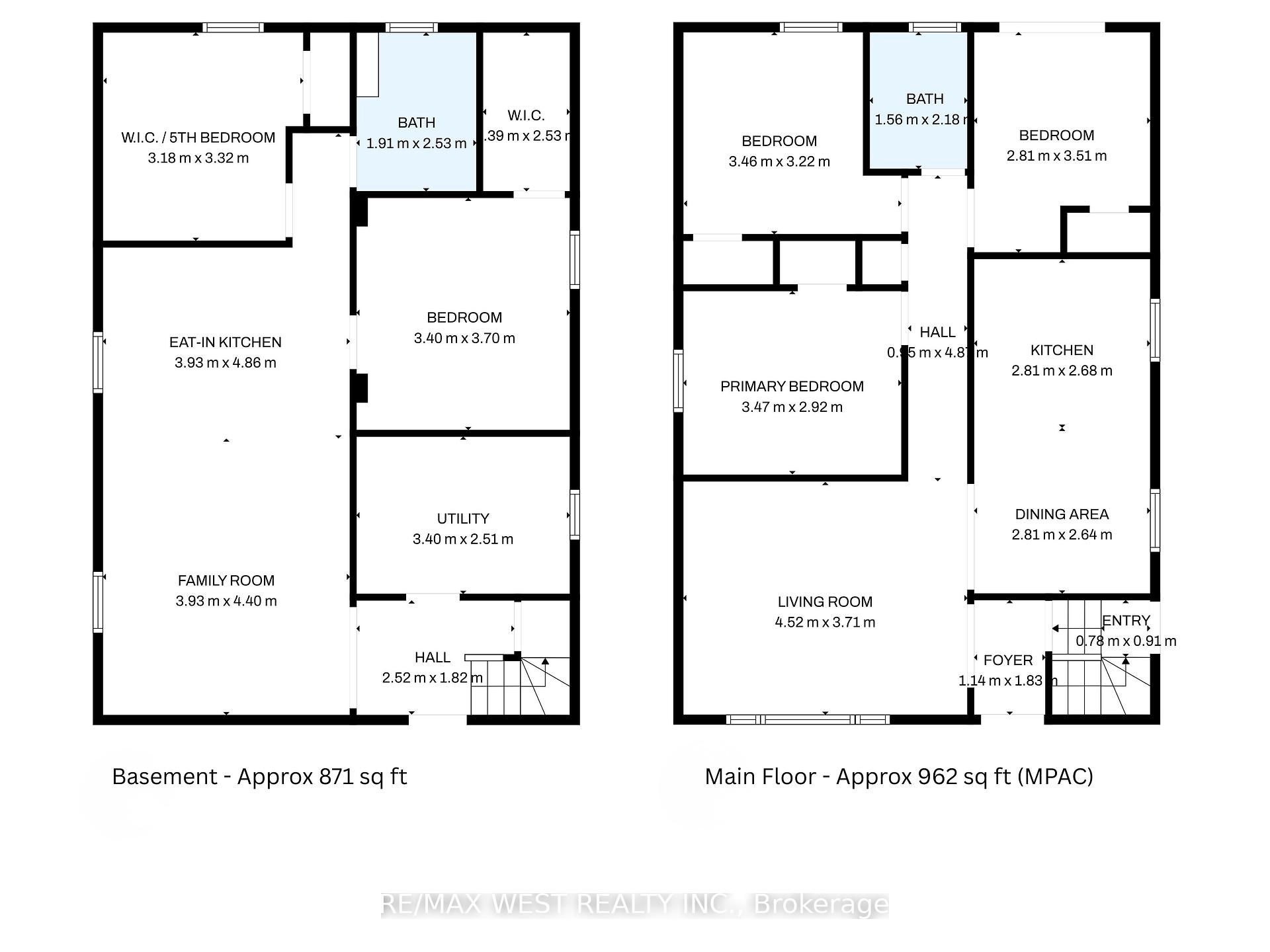
经过翻新和迁入准备,这个奥尔德伍德住宅提供创收水平较低的,另有一个私人入口.刷新后的主要一层为明亮而开放的起居室、翻新后的厨房和3个宽敞的卧室--一个可直接进入私人后院绿洲,并配有地面游泳池。刚安装的更下层新漆的带有全新地层提供了一个完整的内衣套房,配有2个大卧室,厨房和私人侧出入口理想,供大家庭或收入潜力.外出享受"地上"游泳池,"热浴","永久地干"和"户外电视"等适合下班后放轻松或娱乐家人和朋友.这座家园在几分钟内便可快速进入多伦多和皮尔逊机场市中心,紧凑,欢迎的社区是邻居以微笑相迎,儿童自由玩耍,而当地的传统如每年的圣诞游行和街头销售,将每个人聚集在一起.家庭也将欣赏附近的优秀学校和关爱家庭的气氛。靠近sherway花园、Farm Boy、GO公交、公交、公园和湖滨
主要特征
- 朝向: 后院朝南

- 睡房: 3

- 卫生间: 2

- 车库:

- 厨房: 1

重要信息
- 占地面接: 40.00 x 125.00 Feet

- 室内面积: 700-1100

- 地税: $ 5158.00

- W12462471

- Listing contracted with: RE/MAX WEST REALTY INC.
| 房间 | 尺寸(平方米) | 细节描述 | |
|---|---|---|---|
| 客厅 Rm | 4.52x3.71 | 电壁炉, 大窗, 硬木地板 |
|
| 厨房 | 5.32x2.81 | 合并餐饮, 不锈钢电器 |
|
| 卧室 | 3.47x2.92 | 硬木地板 |
|
| 第二间卧室 | 3.46x3.22 | 硬木地板 |
|
| 第三间卧室 | 2.81x3.51 | 硬木地板, 走出式甲板 |
|
| 家庭房 Rm | 3.93x4.40 | 复合地板, 开放式概念 |
|
| 厨房 | 3.93x4.86 | 复合地板 |
|
| 第四间卧室 | 3.40x3.70 | 复合地板, |
|
| 第五间卧室 | 3.18x3.32 | , 橱柜架 |
|
| 电器房 R | 3.40x2.51 | 合并洗衣房 |
| 卫生间 | 卫浴件数 | 所在楼层 | |
|---|---|---|---|
| 1间 | 4件套 | 主层 |
|
| 1间 | 4件套 | Basement |















































