房屋信息
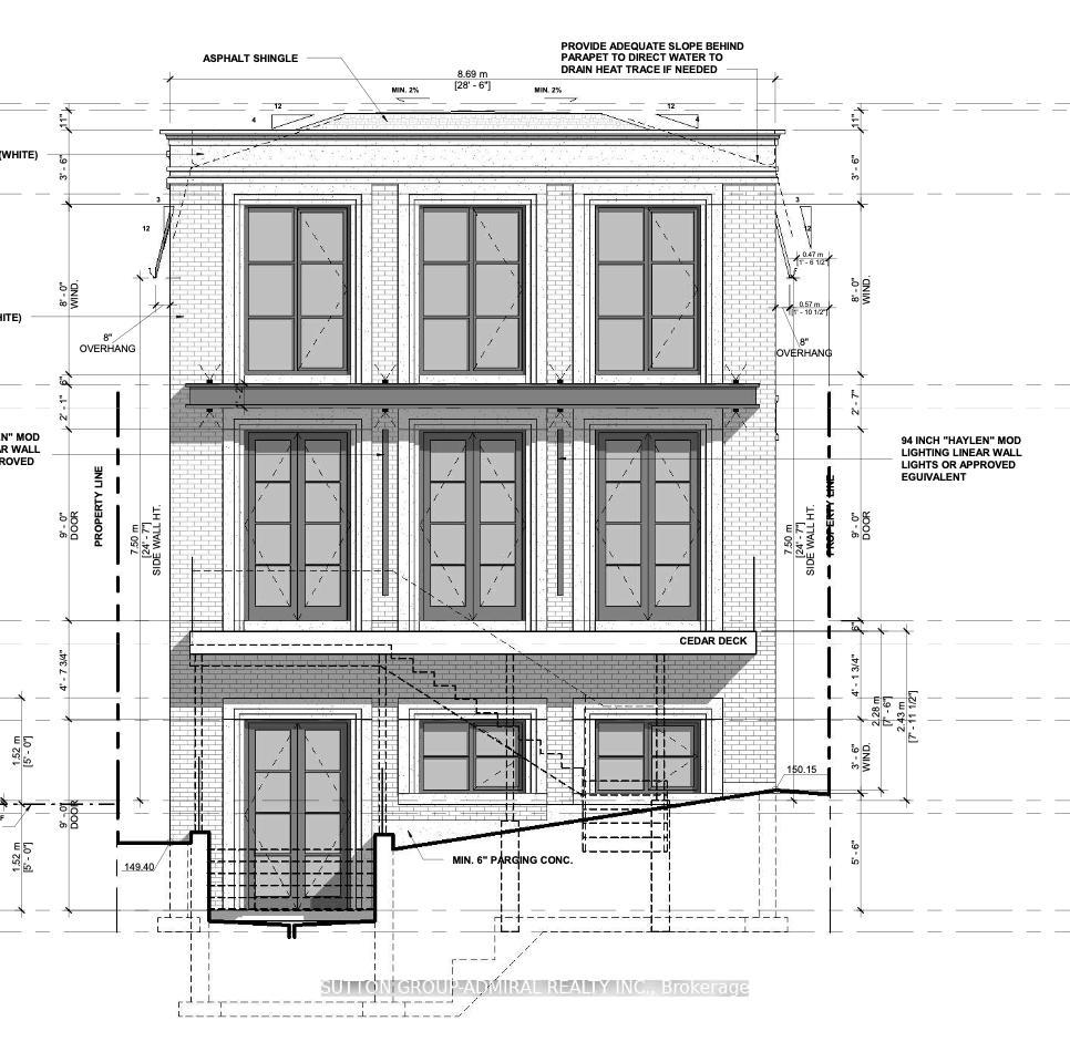
豪华的公寓这座地产是利阿赛德最贪婪的私人地产之一,它拥有一个超广而更深的136英尺地产,没有房屋支撑着它,提供了最绝密的后院绿洲,适合室外娱乐。位于一个安静的、关爱家庭的街道上,只是走一小段路去Bayview 和Mt.Pleasant的活跃商店和餐馆,以及紧随其后的北lea和利赛德校区。住在这个华丽的平房里或者利用已经批准的计划准备建造4,343平方公克。占总生活空间的英尺,使其成为该街区最大的住宅之一. COa通过(6月),取得树证,支付费用,今天一切准备开始项目,或者你可以住或租一段时间.***详情的sEE附件*/ span >
主要特征
- 朝向: 后院朝西

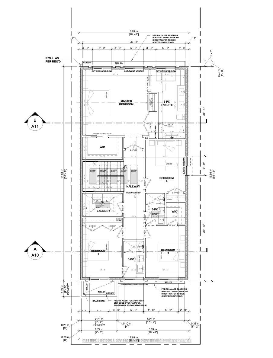
- 睡房: 2

- 卫生间: 2

- 车库: 2

- 厨房: 1

重要信息
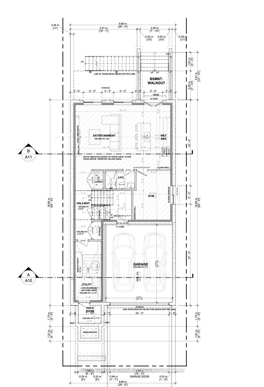
- 占地面接: 33.50 x 136.00 Feet

- 室内面积: 3000-3500

- 地税: $ 8144.00

- C12537832

- Listing contracted with: SUTTON GROUP-ADMIRAL REALTY INC.
| 房间 | 尺寸(平方米) | 细节描述 | |
|---|---|---|---|
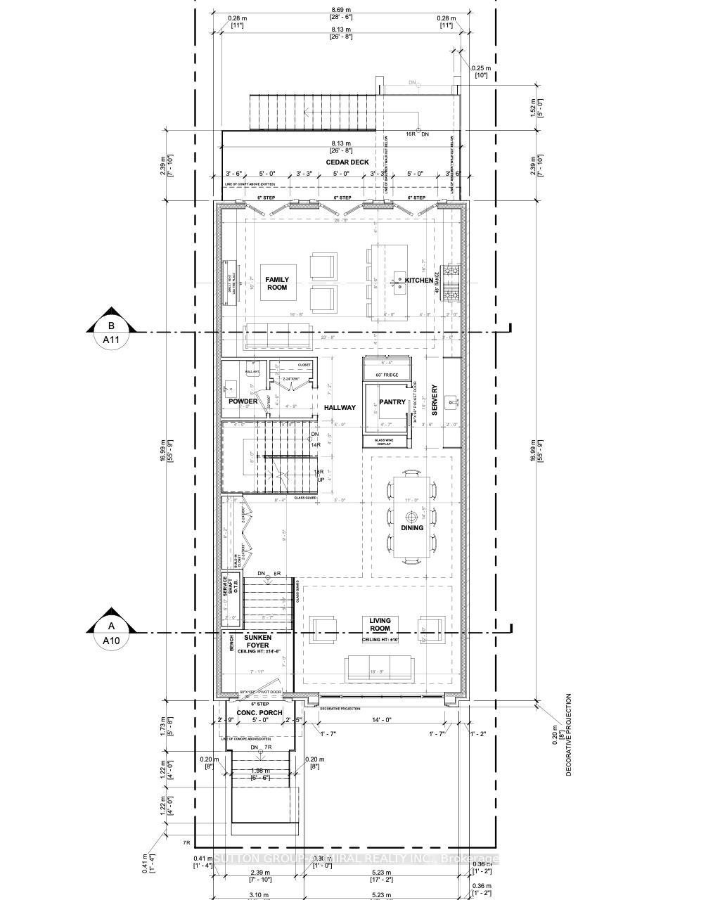
| 客厅 Rm | 4.79x3.47 | ||
| 晚餐室 Rm | 3.20x2.59 | ||
| 厨房 | 3.77x2.83 | ||
| 早餐室 | 3.11x1.10 | ||
| 卧室 | 3.50x3.23 | ||
| 第二间卧室 | 4.12x3.20 | ||
| 家庭房 Rm | 5.10x5.12 | ||
| 娱乐室reatio | 6.09x3.83 | ||
| 洗衣房 | 3.87x6.09 | ||
| 第三间卧室 | 4.13x3.20 | ||
| 第四间卧室 | 4.12x3.20 | ||
| 第五间卧室 | 4.12x3.20 |
| 卫生间 | 卫浴件数 | 所在楼层 | |
|---|---|---|---|
| 1间 | 4件套 | 主层 |
|
| 1间 | 2件套 | Second |
|
| 1间 | 5件套 | Second |
|
| 1间 | 4件套 | Second |
|
| 1间 | 4件套 | Basement |




























